- Thông tin dự án thiết kế biệt thự phố phong cách cổ điển tại Hóc Môn
- Mẫu thiết kế biệt thự phố 8x16m do Kiến trúc Mai Việt thiết kế kiến trúc và nội thất tại Hóc Môn, Tp.HCM
- Chủ đầu tư: A Phương
- Địa điểm :Trần Văn Mười, Xuân Thới Thượng, Hóc Môn, Tp.HCM
- Khái toán phần thô và nhân công hoàn thiện 1.7 tỷ, công trình dự kiến hoàn thành tháng 04.2019
- Chủ đầu tư: A Phương
- Địa điểm :Trần Văn Mười, Xuân Thới Thượng, Hóc Môn, Tp.HCM
- Khái toán phần thô và nhân công hoàn thiện 1.7 tỷ, công trình dự kiến hoàn thành tháng 04.2019
Hình ảnh thiết kế biệt thự phố phong cách cổ điển tại Hóc Môn
.jpg)
Phối cảnh kiến trúc ( Hình thiết kế 3D )
.jpg)
(1).jpg)
Mặt tiền ( Hình thực tế thi công )
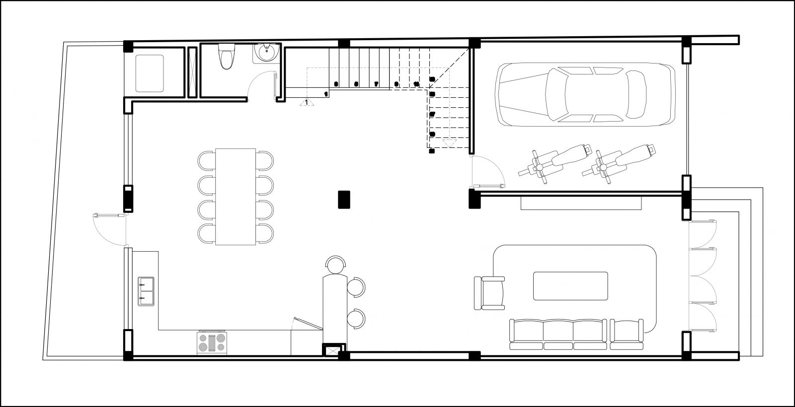
- Bố trí kiến trúc tầng trệt
Nhà biệt thự phố mặt tiền 8m nên phần trước được sử dựng làm mặt bằng kinh doanh, phần còn lại bố trí khu vực nhà ở với Garaoto, bếp - phòng ăn và khu phòng khách.Nội thất được thiết kế theo phong cách bán cổ điển nhẹ nhàng và thanh lịch.
.jpg)
.jpg)
Phối cảnh nội thất phòng khách
.jpg)
.jpg)
Bếp và khu vực phòng ăn
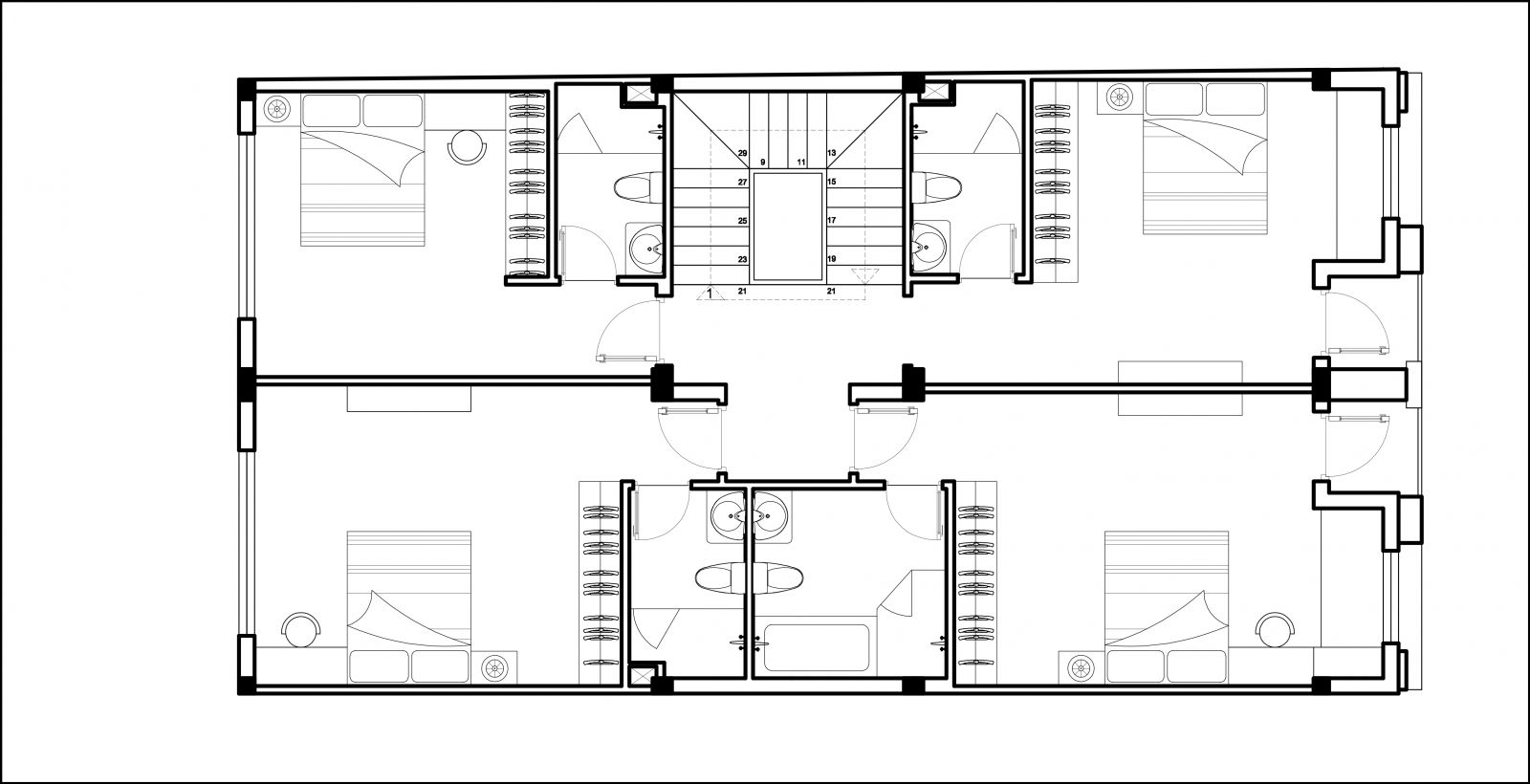
- Bố trí kiến trúc lầu 01-02
Lầu 01 - 02 đường bố trí mỗi lầu có 04 phòng ngủ với Wc nội phòng, nội thất được thiết kế với phong cách bán cổ điển nhẹ nhà và ấm cúng.jpg)
.jpg)
.jpg)
Bố trí nội thất phòng ngủ 01
.jpg)
Bố trí nội thất phòng ngủ 02
.jpg)
.jpg)
Bố trí nội thất phòng ngủ 03
.jpg)
.jpg)
Bố trí nội thất phòng ngủ 04

.jpg)
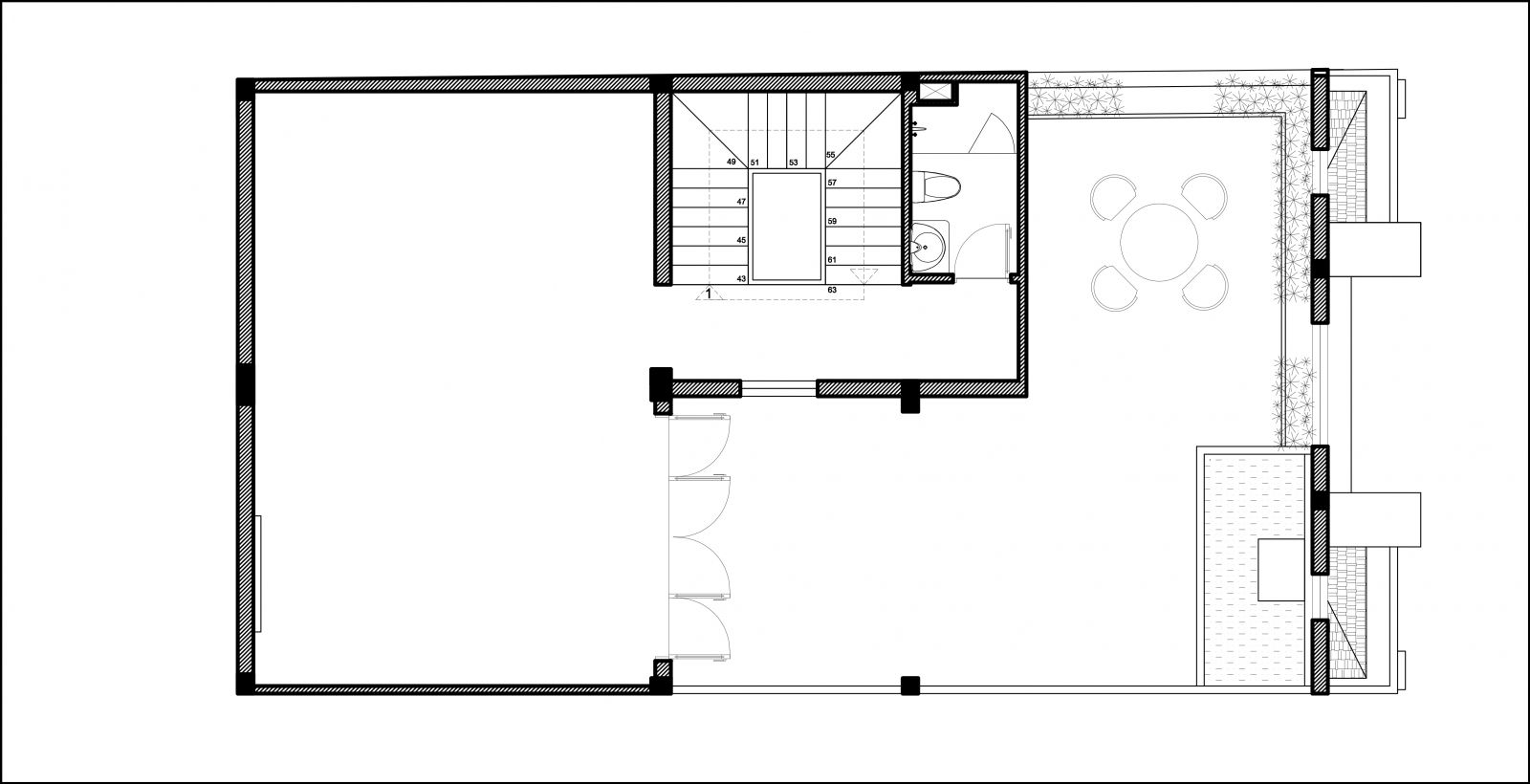
- Bố trí nội thất lầu 03
Lầu 02 được bố trí phía sau là phòng thờ lớn, phía trước được bố trí sân vườn và tiểu cảnh ngoài trời.jpg)
.jpg)
.jpg)
Khu vực sân thượng phía trước ( Hình thiết kế 3D)
.jpg)
Phòng thờ ( Hình thiết kế 3D)
- Thông tin liên hệ
- Hình ảnh thuộc bản quyền của www.maiviet.vn
- Mọi chi tiết xin liên hệ :CÔNG TY CỔ PHẦN THIẾT KẾ NỘI THẤT VÀ XÂY DỰNG MAI VIỆT
- Ðịa chỉ: 190/34 Bùi Văn Ngữ, Phường Hiệp Thành, Quận 12, Tp.HCM
- Website: www.maiviet.vn - www.kinhnghiemxaynha.vn
- Email: info@maiviet.vn - kientrucmaiviet@gmail.com
- Website: www.maiviet.vn - www.kinhnghiemxaynha.vn
- Email: info@maiviet.vn - kientrucmaiviet@gmail.com
- Hotline: 0978 62 63 65
- Zalo: 0988 54 50 40 Nguyễn Duy Quý
- Vp: 028 66 53 55 45

