Thông tin dự án thiết kế và thi công khách sạn tại Hóc Môn
- Mẫu thiết kế khách sạn quy mô 12 phòng trên khuôn viên đất 7x20 do Kiến trúc Mai Việt thiết kế kiến trúc và thi công xây dựng tại Hóc Môn
- Chủ đầu tư: PND Sài Gòn
- Địa điểm : Huyện Hóc Môn - Sài Gòn.
Video công trình khách sạn PND Sài Gòn
Nội dung thiết kế thiết kế và thi công khách sạn tại Hóc Môn
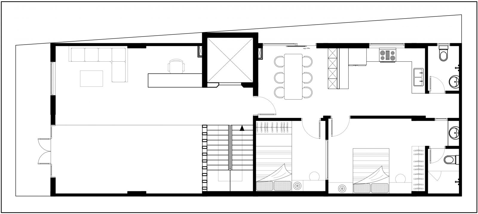
- Tầng 01 với công năng chủ yếu là khu tiếp khách, nhà xe và khu ở nội bộ gia đình với 2 phòng ngủ, bếp và phòng ăn- Mặt bằng bố trí kiến trúc tầng 01
.jpg)
.jpg)
Khu vực phòng ăn được thiết kế sát ô giếng trời với kệ cửa lùa
.jpg)
.jpg)
.jpg)
Phòng ngủ Master
.jpg)
.jpg)
Phòng ngủ con trai
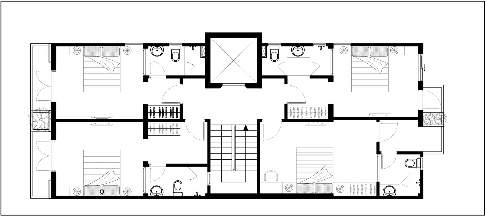
- Bố trí kiến trúc tầng 02 - 04
Tầng 02 được bố trí với công năng làm khách sạn, chia thành 04 phòng với 04 không gian khác nhau và ký hiều từ 01-04.



Mẫu phòng khách sạn 01


Mẫu phòng khách sạn 02


Mẫu phòng khách sạn 03


Mẫu phòng khách sạn 04
- Bố trí kiến trúc tầng 03
Tầng 02 được bố trí với công năng làm khách sạn, chia thành 04 phòng với 04 không gian khác nhau và ký hiều từ 05-08.
.jpg)


Mẫu phòng khách sạn 05


Mẫu phòng khách sạn 06


Mẫu phòng khách sạn 07


Mẫu phòng khách sạn 08
- Bố trí kiến trúc tầng 04
Tầng 02 được bố trí với công năng làm khách sạn, chia thành 04 phòng với 04 không gian khác nhau và ký hiều từ 09-12.

Mẫu phòng khách sạn 09

Mẫu phòng khách sạn 10

Mẫu phòng khách sạn 11

Mẫu phòng khách sạn 12
Thông tin liên hệ
- Hình ảnh thuộc bản quyền của www.maiviet.vn
- Mọi chi tiết xin liên hệ :CÔNG TY CỔ PHẦN THIẾT KẾ NỘI THẤT VÀ XÂY DỰNG MAI VIỆT
- Ðịa chỉ: 190/34 Bùi Văn Ngữ, Phường Hiệp Thành, Quận 12, Tp.HCM
- Website: www.maiviet.vn - www.kinhnghiemxaynha.vn
- Email: info@maiviet.vn - kientrucmaiviet@gmail.com
- Website: www.maiviet.vn - www.kinhnghiemxaynha.vn
- Email: info@maiviet.vn - kientrucmaiviet@gmail.com
- Hotline: 0978 62 63 65
- Zalo: 0988 54 50 40 Nguyễn Duy Quý
- Vp: 028 66 53 55 45

