Thông tin dự án
- Mẫu thiết kế biệt thự vườn 8.5x13m do Kiến trúc Mai Việt thiết kế kiến trúc và thiết kế nội thất tại Ninh Bình
- Chủ đầu tư: A. Nam
- Địa điểm : Ninh Bình
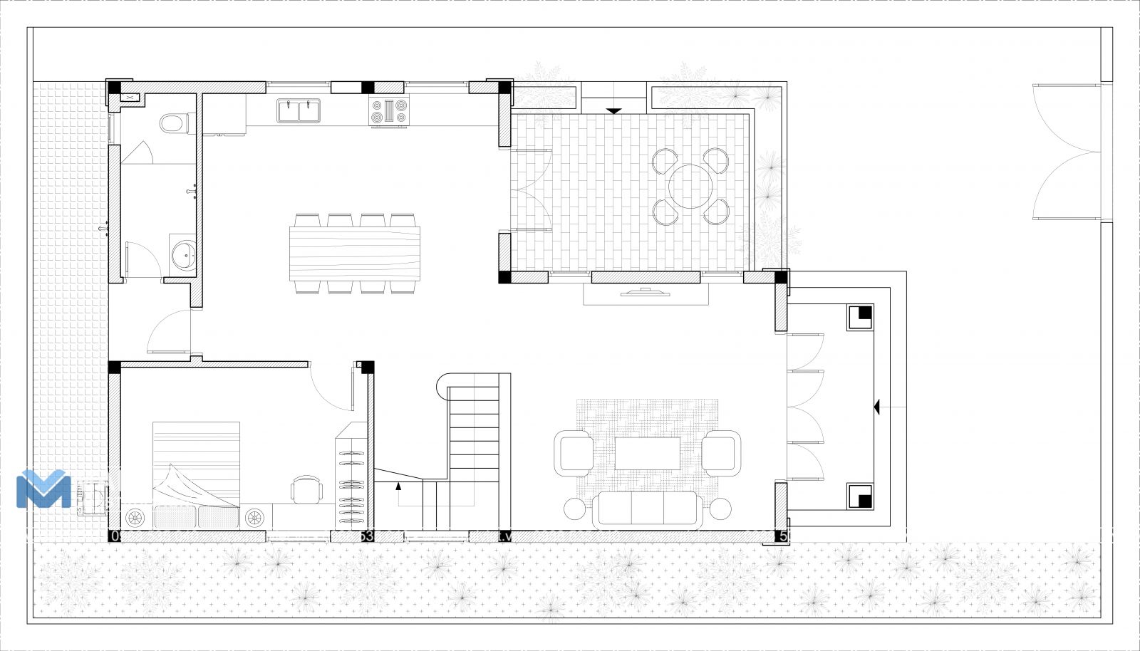
- Bố trí kiến trức tầng 01
Tầng 01 được bố trí với chức năng như khu sinh hoạt chính của gia đình với phòng khách, bếp và 01 phòng ngủ dành cho Ông Bà. Đặt biệt dành 01 phần diện tích khá rộng cho phần sân ngoài trời, có mái che đảm bảo tránh mưa nắng.
Tầng 01 được bố trí với chức năng như khu sinh hoạt chính của gia đình với phòng khách, bếp và 01 phòng ngủ dành cho Ông Bà. Đặt biệt dành 01 phần diện tích khá rộng cho phần sân ngoài trời, có mái che đảm bảo tránh mưa nắng.

Mặt bằng bố trí tầng 01
- Bố trí kiến trức tầng 01
Tầng 02 với 03 phòng ngủ nhưng sử dụng chung 01 Wc, phần diện tích còn lại dành cho không gian thờ cúng
Tầng 02 với 03 phòng ngủ nhưng sử dụng chung 01 Wc, phần diện tích còn lại dành cho không gian thờ cúng



Phối cảnh kiến trúc mặt hông công trình

Phối cảnh kiến trúc mặt đứng chính công trình
- Hình ảnh thuộc bản quyền của www.maiviet.vn
CÔNG TY CỔ PHẦN THIẾT KẾ NỘI THẤT VÀ XÂY DỰNG MAI VIỆT
Hotline: 0978 62 63 65
Hotline: 0978 62 63 65

