hà biệt thự mái Nhật 2 tầng 4 phòng ngủ
Nội dung thiết kế biệt thự mái nhật 2 tầng 4 phòng ngủ
- Địa điểm : Tân Uyên - Bình Dương
- Diện tích : Rộng 7m2 dài 12m6
- Công trình được KIẾN TRÚC MAI VIỆT thiết kế và thi công xây dựng trọn gói
- Tồng giá trị công trình chưa bao bồm phần nội thất là 1.620.000.000 đ
1. Thiết kế tổng thể - Hài hòa và hiện đại
- Căn biệt thự được thiết kế theo phong cách mái Nhật – kiểu mái dốc nhẹ, tầng tầng lớp lớp tạo cảm giác mềm mại nhưng vẫn rất vững chãi và bề thế. Mái Nhật không chỉ mang lại vẻ đẹp thanh thoát, sang trọng mà còn có khả năng chống nóng, thoát nước mưa tốt – rất phù hợp với khí hậu nhiệt đới tại Việt Nam.
- Phối cảnh tổng thể toát lên sự hiện đại và trang nhã, với các mảng tường vuông vức, cửa kính lớn đón sáng tự nhiên, xen kẽ cùng các khoảng xanh được bố trí khéo léo. Căn nhà như một tổ ấm mở rộng ra thiên nhiên, giúp cư dân luôn cảm thấy thư thái, dễ chịu.
Hình ảnh thiết kế tổng thể
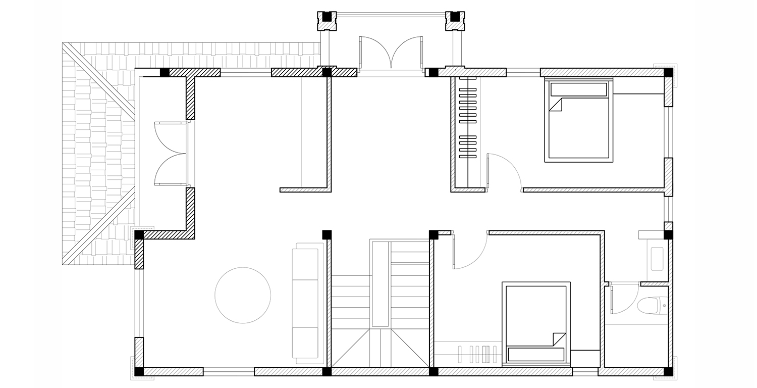
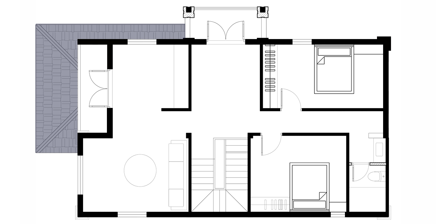
2. Công năng sử dụng - Khoa học và tiện nghi
Ngôi nhà gồm 2 tầng với tổng cộng 4 phòng ngủ, được bố trí hợp lý để đảm bảo sự riêng tư nhưng vẫn kết nối hài hòa giữa các thành viên trong gia đình.
Tầng 1:
-
2 phòng ngủ, phù hợp cho người lớn tuổi hoặc khách đến chơi ở lại qua đêm.
-
Phòng khách rộng rãi, thông thoáng với hệ cửa kính lớn, kết nối trực tiếp với sân vườn – nơi lý tưởng cho các buổi trò chuyện, tiếp khách hay sum họp gia đình.
-
Phòng bếp và phòng ăn thiết kế liên thông, giúp tiết kiệm không gian và tăng tính kết nối trong sinh hoạt hàng ngày.
- Khu vệ sinh chung được đặt vị trí kín đáo nhưng thuận tiện di chuyển.
.jpg)
Tầng 2:
-
2 phòng ngủ với diện tích rộng, mỗi phòng đều có cửa sổ lớn hoặc ban công riêng, đón ánh sáng và không khí tự nhiên.
-
Phòng sinh hoạt chung kết hợp góc làm việc, phòng thờ được bố trí phía trước tạo sự trang nghiêm và kín đáo
- Phòng vệ sinh chung dành cho toàn tầng
3. Không gian sống xanh - Thư thái giữa lòng thiên nhiên
Với ưu tiên “đưa thiên nhiên vào trong từng không gian sống”, ngôi biệt thự được thiết kế với nhiều ô cửa mở, sân vườn tiểu cảnh trước – sau và cả ban công tầng 2. Tất cả tạo nên một bầu không khí mát lành, trong trẻo, mang đến năng lượng tích cực mỗi ngày.

Góc nhìn chính diện nhà
Góc nhìn hông nhà
Hình ảnh thi công thực tế




Mời tham khảo nhiều mẫu biệt thự khác

