Thông tin dự án thiết kế biệt thự phố 2 tầng cổ điển
- Công trình: Biệt thự 02 tầng cổ điển
- Diện tích: Ngang 6.5m sâu 17m
- Chủ đầu tư: C Thủy
- Địa điểm : Bà Điểm - Hóc Môn
Nội dung thiết kế biệt thự 2 tầng cổ điển
Mẫu thiết kế biệt thự 2 tầng cổ điển 2 tầng kích thước 6.5 x 17m là một thiết kế ấn tượng tại Bà Điểm - Hóc Môn. Căn nhà cho ta những cảm nhận về một tổ ấm hạnh phúc đúng nghĩa. Công trình nằm trên khuôn viên đất nở hậu 1 cạnh xéo. Ngôi nhà có thiết kế 2 tầng và mái ngật với kiến trúc cổ điển và nội thất sang trọng. Sự kết hợp hài hòa trong phong cách thiết kế kiến trúc cùng nội thất đã kiến tạo nên một không gian sống đầy sang trọng, tinh tế và giá trị.- Tổng thể căn nhà được thiết kế với khoảng lùi sâu 8 m và khoảng sân rộng làm sân vườn ...

Mặt bằng tổng thể
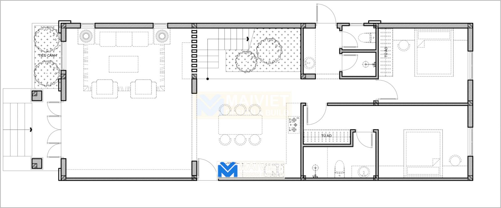
- MẶT BẰNG BỐ TRÍ TẦNG 01
- Tầng 01 được bố trí với phòng khách, bếp liền với phòng ăn, 2 phòng ngủ và 2 khu wc

Mặt bằng tầng trệt
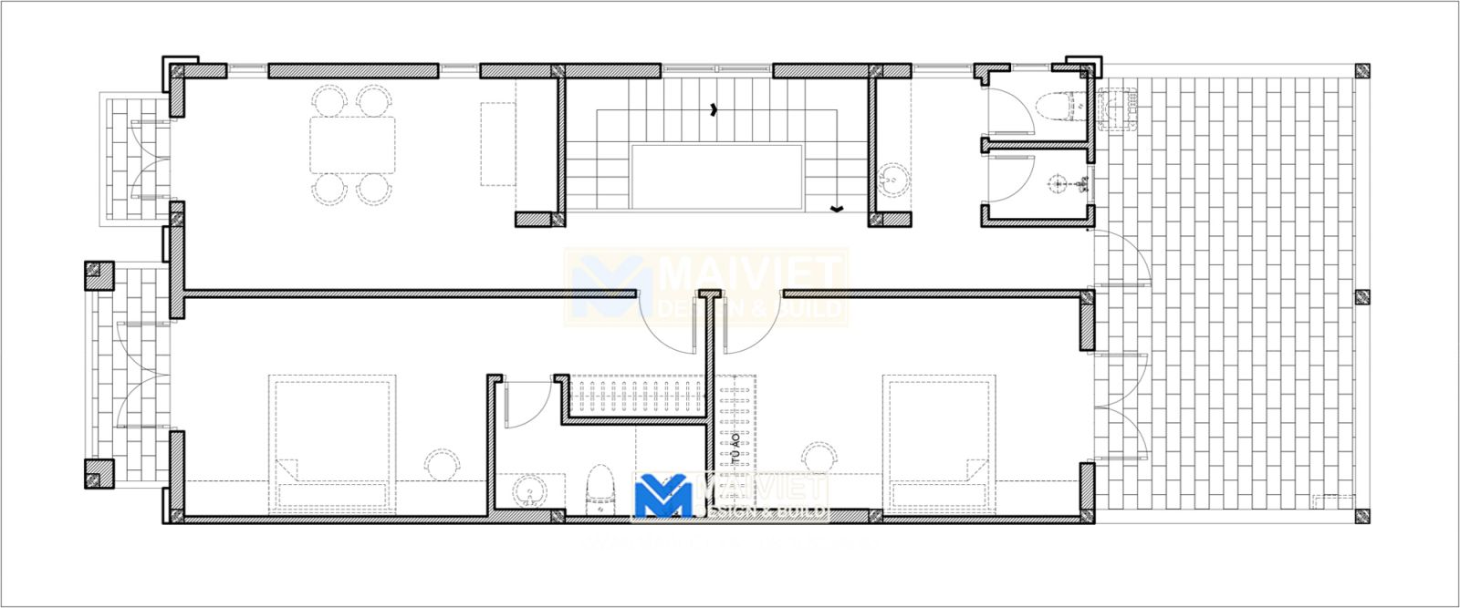
- MẶT BẰNG BỐ TRÍ TẦNG 02
- Tầng 02 được bố trí với phòng thờ và 2 phòng ngủ

Mặt bằng lầu 1

Phối cảnh kiến trúc mặt đứng chính

Phối cảnh thiết kế mặt hông
Mời tham khảo thêm nhiều Mẫu biệt thự 2 tầng khác

