Bạn đang tìm kiếm một giải pháp thiết kế cho ngôi nhà phố có diện tích 5x17m? Mẫu thiết kế nhà phố 3 tầng 5x17m dưới đây là một gợi ý hoàn hảo, kết hợp tinh tế giữa vẻ đẹp kiến trúc hiện đại và giải pháp tối ưu không gian sống.
Với mặt tiền 5m, các kiến trúc sư đã khéo léo tạo nên một tổng thể cân đối và thanh lịch. Công trình nổi bật với gam màu trắng chủ đạo, mang lại cảm giác nhẹ nhàng và sang trọng. Các chi tiết vòm cong mềm mại ở khu vực ban công và cửa sổ không chỉ tạo điểm nhấn thẩm mỹ mà còn mang lại nét duyên dáng, cổ điển nhẹ nhàng cho phong cách hiện đại.
Thiết kế 3 tầng cho phép phân chia công năng rõ ràng, đáp ứng đầy đủ nhu cầu sinh hoạt cho một gia đình. Kích thước 5x17m là một lợi thế để bố trí các không gian chức năng liền mạch, từ phòng khách, bếp ăn ở tầng trệt đến các phòng ngủ riêng tư ở các tầng trên. Hệ thống cửa kính lớn và ban công thoáng đãng giúp ngôi nhà luôn tràn ngập ánh sáng tự nhiên và thông gió tốt.
Đặc biệt, thiết kế cổng và tường rào kiên cố, đồng bộ với phong cách chung của ngôi nhà, vừa đảm bảo an ninh vừa tăng thêm vẻ bề thế. Hệ thống đèn chiếu sáng ngoại thất được bố trí thông minh, giúp công trình thêm phần lung linh và nổi bật khi về đêm.
Mẫu nhà phố 3 tầng 5x17m này chính là lựa chọn lý tưởng cho những ai yêu thích sự tinh tế, hiện đại và mong muốn một không gian sống tiện nghi, tối ưu trên từng mét vuông.

Mặt bằng bố trí kiến trúc

Góc nhìn xéo kiến trúc

Góc nhìn chính diện

Công trình đang trong quá trình thiết kế nội thất
Nội thất tầng 1
.jpg)

.jpg)
.jpg)
Hình ảnh thiết kế nội thất khu vực bếp
Hình ảnh thiết kế wc chung tầng 1
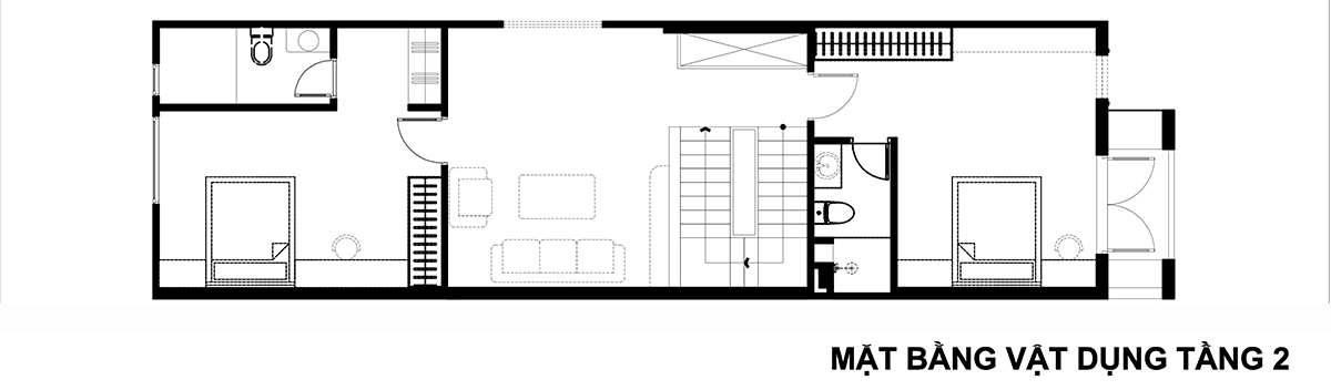
Hình ảnh thiết kế nội thất phòng ngủ tầng 1Nội thất tầng 2

Hình ảnh thiết kế nội thất phòng sinh hoạt chung
Hình ảnh thiết kế phòng ngủ trước tầng 2
Hình ảnh thiết kế phòng ngủ sau tầng 2
Hình ảnh thiết kế wc
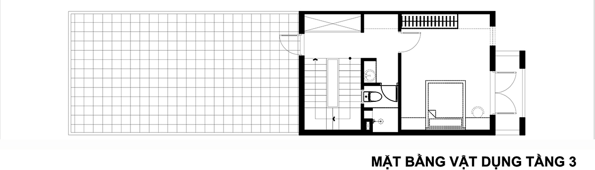
Nội thất tầng 3

Hình ảnh thiết kế nội thất phòng ngủ tang 3
Thiết kế nội thất wc chung
Phòng giặt phơi
