Trong xu hướng kiến trúc hiện nay, các mẫu biệt thự vườn mái nhật 1 tầng 4 phòng ngủ đang trở thành lựa chọn hàng đầu cho những gia đình đa thế hệ. Không chỉ sở hữu vẻ ngoài sang trọng, tinh tế, mẫu thiết kế này còn mang đến không gian sống tập trung, ấm cúng nhưng vẫn đảm bảo sự riêng tư tuyệt đối.
1. Kiến trúc Tân cổ điển – Vẻ đẹp vượt thời gian
Cái nhìn đầu tiên về căn biệt thự này chính là sự vững chãi và thanh thoát. Kiến trúc sư đã khéo léo kết hợp phong cách Tân cổ điển với các đường phào chỉ nhẹ nhàng, lược bỏ những chi tiết rườm rà để tạo nên một diện mạo hiện đại hơn.
-
Hệ cột trụ đồ sộ: Các cột vuông vững chãi ở sảnh chính và sảnh phụ không chỉ có tác dụng chịu lực mà còn tạo nên nét bề thế, uy nghi cho công trình.
-
Màu sắc tinh tế: Tông màu trắng chủ đạo kết hợp cùng hệ mái màu xanh ghi tạo nên sự tương phản sang trọng, giúp ngôi nhà luôn nổi bật giữa không gian sân vườn xanh mát.
Mái Nhật hiện đại: Thiết kế mái Nhật với độ dốc vừa phải, giúp thoát nước tốt và có khả năng chống nóng hiệu quả, rất phù hợp với khí hậu Việt Nam.
Kiến trúc được diễn họa với ánh sáng ban đêm
2. Công năng hoàn hảo: 4 Phòng ngủ tiện nghi
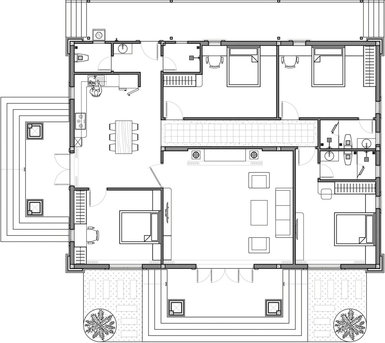
Điểm đắt giá nhất của mẫu biệt thự này chính là cách bố trí mặt bằng công năng. Với diện tích sàn rộng rãi trên một mặt phẳng, việc di chuyển giữa các không gian trở nên thuận tiện hơn bao giờ hết.
-
Phòng khách & Bếp: Thường được thiết kế tách biệt tạo sự riêng tư cho khu vực bếp - ăn.
-
4 Phòng ngủ riêng biệt: Được sắp xếp khéo léo tại các góc của ngôi nhà, đảm bảo mỗi thành viên đều có không gian riêng tư nhưng vẫn dễ dàng kết nối với nhau.
- Hệ thống cửa: Sử dụng khung nhôm kính xingfa cao cấp, giúp đón trọn ánh sáng tự nhiên và gió trời, mang lại nguồn năng lượng tích cực cho gia chủ.
.jpg)
Mặt bằng bố trí nội thất
3. Không gian sống nghỉ dưỡng tại gia
Thay vì phải leo thang mệt mỏi, mọi sinh hoạt trong biệt thự vườn 1 tầng đều diễn ra trên cùng một mặt sàn. Điều này đặc biệt an toàn cho gia đình có người già và trẻ nhỏ. Bao quanh ngôi nhà là khoảng sân vườn xanh mướt, nơi bạn có thể thư giãn sau những giờ làm việc căng thẳng.
Tại sao bạn nên chọn mẫu biệt thự này?
-
Tiết kiệm chi phí vận hành: Dễ dàng vệ sinh, bảo trì và sửa chữa hơn so với nhà cao tầng.
-
Gần gũi thiên nhiên: Thiết kế tối ưu hóa tầm nhìn ra sân vườn từ mọi phòng ngủ.
Phong thủy tốt: Kiến trúc vuông vức, vững chãi giúp thu hút tài lộc và bình an cho gia chủ.






Hình ảnh thiết kế kiến trúc
Mời tham khảo nhiều Mẫu nhà mái nhật 1 tầng khác

