Thông tin dự án
- Mẫu nhà phố trẻ được KIẾN TRÚC MAI VIỆT thiết kế và thi công xây dựng tại Biên Hòa, Đồng Nai
- Chủ đầu tư: Nguyễn Thị Lý
- Địa điểm: Biên Hòa - Đồng Nai
- Công trình khái toán chi phí phần thô 1.600.000.000đ và dự kiến hoàn thành vào tháng 09.2021
Nội dung thiết kế
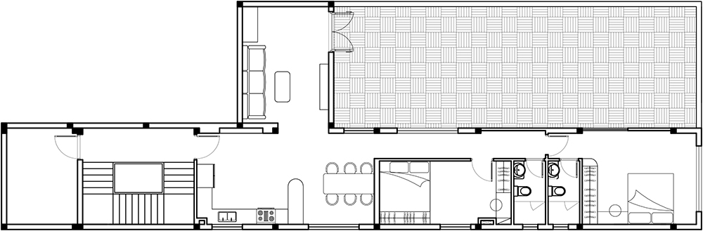
Mặt bằng thiết kế khu nhà ở
.jpg)
.jpg)
.jpg)
.jpg)
.jpg)
.jpg)
.jpg)
.jpg)
.jpg)
.jpg)
Thông tin liên hệ
- Hình ảnh thuộc bản quyền của www.maiviet.vn
- Mọi chi tiết xin liên hệ :CÔNG TY CỔ PHẦN THIẾT KẾ NỘI THẤT VÀ XÂY DỰNG MAI VIỆT
- Website: www.maiviet.vn - www.kinhnghiemxaynha.vn
- Email: info@maiviet.vn - kientrucmaiviet@gmail.com
- Hotline: 0978 62 63 65
- Văn phòng: 028 66 53 55 45

