Thông tin dự án nhà ở kết hợp lớp dạy học
- Mẫu nhà phố mặt tiền 5m được KIẾN TRÚC MAI VIỆT thiết kế và thi công xây dựng tại Hóc Môn
- Chủ đầu tư: C Dung
- Địa điểm: Thới Tam Thôn, Hóc Môn, Tp.HCM
- Công trình với chức năng vừa ở vừa làm phòng dạy học tại gia cho học sinh, với quy mô 1 trệt và 2 lầu.
- Công trình khái toán chi phí phần thô 1.200.000.000đ và dự kiến hoàn thành vào tháng 12.2020
Video công trình
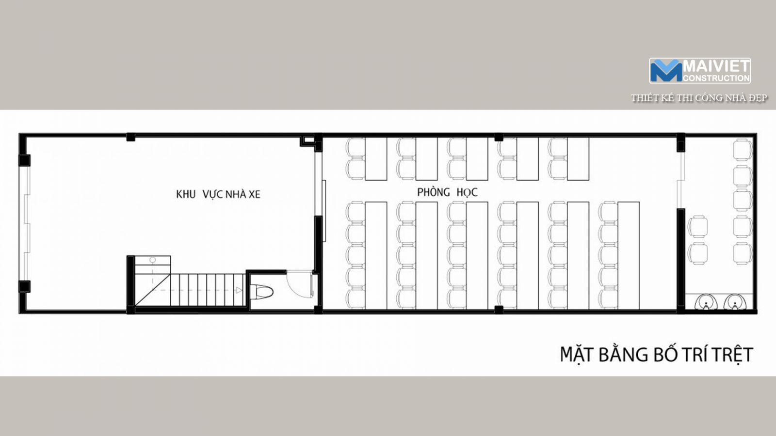
Nội dung thiết kế công trình nhà ở kết hợp lớp dạy học
.jpg)
.jpg)
Phối cảnh kiến trức
.jpg)
.jpg)
Phòng dạy học
.jpg)
.jpg)
.jpg)
.jpg)
.jpg)
Hình ảnh nội thất khu bếp, phòng khách
.jpg)
.jpg)

.jpg)
Phòng sinh hoạt chung
.jpg)
.jpg)
Phòng ngủ 02
.jpg)
.jpg)
Phòng ngủ 03
.jpg)
Thông tin liên hệ
- Hình ảnh thuộc bản quyền của www.maiviet.vn
- Mọi chi tiết xin liên hệ :CÔNG TY CỔ PHẦN THIẾT KẾ NỘI THẤT VÀ XÂY DỰNG MAI VIỆT
- Ðịa chỉ: 190/34 Bùi Văn Ngữ, Phường Hiệp Thành, Quận 12, Tp.HCM
- Website: www.maiviet.vn - www.kinhnghiemxaynha.vn
- Email: info@maiviet.vn - kientrucmaiviet@gmail.com
- Website: www.maiviet.vn - www.kinhnghiemxaynha.vn
- Email: info@maiviet.vn - kientrucmaiviet@gmail.com
- Hotline: 0978 62 63 65
- Vp: 028 66 53 55 45

