Thông tin dự án thiết kế nhà phố 2 tầng 4.5x13m
- Thiết kế nhà phố cổ điển 4.5x13m trên khuôn viên đất 4.5x17m
- Chủ đầu tư: A Lâm
- Địa điểm : P 05 - Tp.Tân An, Tỉnh Long An
- Chi phí hoàn thiện trọn gói 1.450.000.000 đ
.jpg)
Phối cảnh kiến trúc
Nội dung thiết kế nhà phố 2 tầng 4.5x13m
-
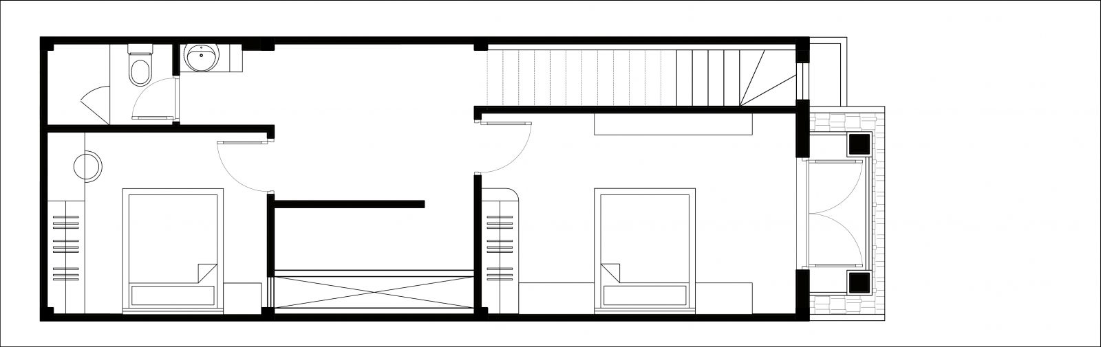
Mặt bằng bố trí tầng 01
- Lối cầu thang lên tầng 02 được bố trí ngay phòng khách





-
Mặt bằng bố trí tầng 02


Thiết kế nội thất phòng ngủ phía sau



