Nội dung thiết kế xây dựng nhà phố nhà phố 3 tầng 2 mặt tiền
- Chủ đầu tư: C Hạnh- Địa điểm : P Hiệp Thành, Tp. Thủ Dầu Một, Bình Dương
- Công trình được KIẾN TRÚC MAI VIỆT thiết kế và thi công xây dựng trọn gói
- Tồng giá trị công trình chưa bao bồm phần nội thất là 2.400.000.000 đ
Hình ảnh thiết kế kiến trúc

Mặt đứng góc nhìn chéo
Mặt đứng chính
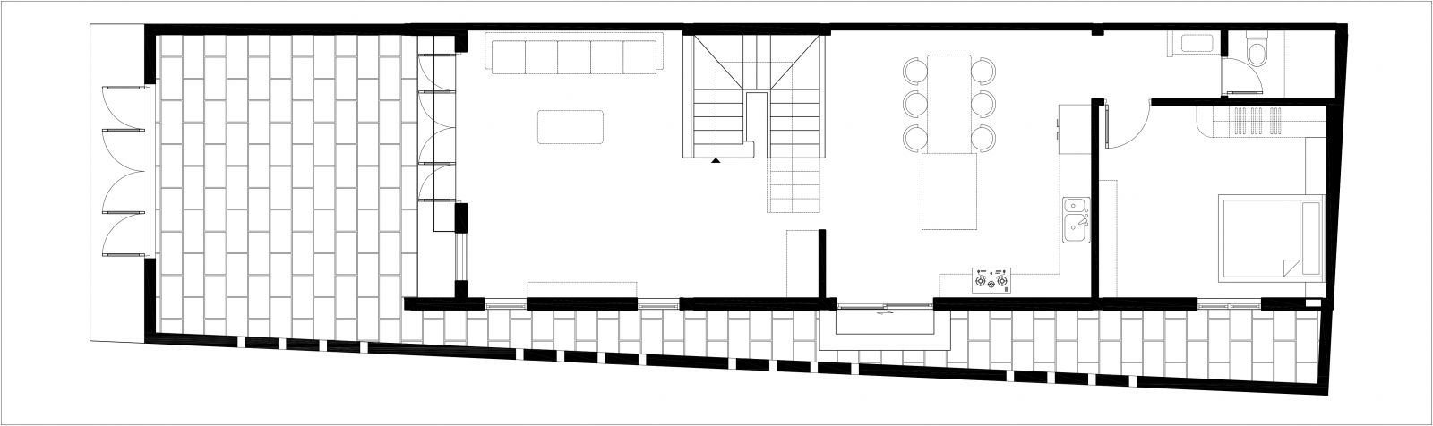
- MẶT BẰNG BỐ TRÍ TẦNG 1
- Tầng trệt được bố trí với phòng khách, không gian thờ - bếp, phòng ăn và 01 phòng ngủ dành cho Ba Mẹ. Khu vực sân trước làm gara xe và và hành lang hông.
Hình ảnh bố trí tầng 01 ( tầng trệt )
Phòng khách.jpg)
Bếp - không gian phòng ăn
Phòng ngủ Ba Mẹ
Không gian wc chung cho tầng trệt-
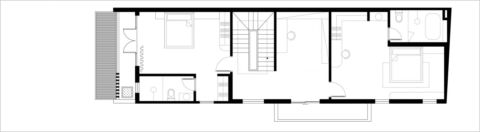
MẶT BẰNG BỐ TRÍ TẦNG 2
- Tầng 2 được bố trí với 2 phòng ngủ lớn có khu wc riêng và 1 phòng làm việc
Mặt bằng bố trí tầng 02
Không gian phòng làm việc
.jpg)
.jpg)
Hình ảnh thiết kế nội thất phòng ngủ con gái ( phòng trước lầu 01 )
.jpg)

.jpg)
Hình ảnh thiết kế nội thất phòng ngủ con trai ( phòng sau lầu 01 )
-
MẶT BẰNG BỐ TRÍ TẦNG 3
- Tầng 2 được bố trí với 1 phòng ngủ lớn có khu wc riêng và khu vực sân sau làm sân chơi có mái che
Mặt bằng bố trí tầng 03

