Mẫu nhà phố 3 tầng 4.5x18m – Thiết kế hiện đại, tối ưu công năng và không gian sống
Trong bối cảnh đô thị ngày càng chật chội, nhu cầu về những căn nhà phố có thiết kế thông minh, tận dụng tối đa diện tích và vẫn đảm bảo sự thông thoáng là vô cùng cấp thiết. Mẫu nhà phố 3 tầng diện tích 4.5m x 18m dưới đây là một ví dụ điển hình cho giải pháp kiến trúc hiện đại, khoa học và phù hợp với nhịp sống đô thị.
1. Thông tin chung:
- Chủ đầu tư: A Phương
- Địa điểm : Lái Thiêu, Tp.HCM
- Công trình được KIẾN TRÚC MAI VIỆT thiết kế và thi công xây dựng trọn gói
Tổng quan kiến trúc căn nhà 4.5x18m
Với diện tích mặt tiền 4.5m, chiều sâu 18m, căn nhà được thiết kế theo phong cách kiến trúc hiện đại – đường nét tối giản, sử dụng vật liệu hiện đại như kính, sắt, bê tông thô và mảng xanh đan xen để mang lại cảm giác nhẹ nhàng, gần gũi.
Căn nhà gồm 3 tầng nổi và sân thượng, với bố cục không gian được phân chia hợp lý theo từng chức năng sử dụng.
Mặt bằng công năng chi tiết
Tầng trệt – Gara ô tô, phòng khách và bếp
Tầng trệt được thiết kế đa năng, kết hợp giữa gara ô tô phía trước và không gian sinh hoạt chung phía sau.
-
Gara ô tô được bố trí ngay lối vào, thuận tiện cho việc di chuyển và đảm bảo an toàn.
-
Phòng khách nằm ở trung tâm, kết nối trực tiếp với khu vực bếp và bàn ăn phía sau, tạo nên một không gian sinh hoạt liên hoàn, thông thoáng.
Gara xe.jpg)
.jpg)


.jpg)
.jpg)
.jpg)
Thiết kế wc trệt
Lầu 1 – Không gian nghỉ ngơi và học tập
.jpg)
Mặt bằng bố trí lầu 01
.jpg)

.jpg)
Thiết kế nội thất phòng con gái.jpg)
.jpg)

.jpg)
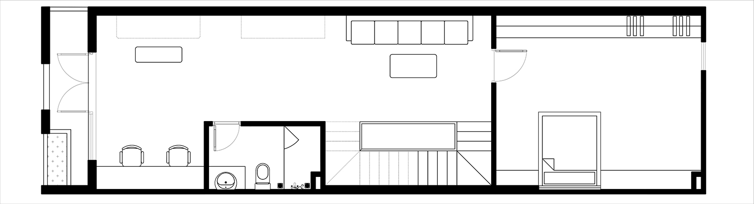
Lầu 2 – Không gian nghỉ ngơi và sinh hoạt riêng tư
.jpg)
Mặt bằng bố trí lầu 02
Cả hai lầu đều được thiết kế với bố cục giống nhau, nhằm tối ưu công năng:
-
Mỗi tầng có 2 phòng ngủ rộng rãi, đảm bảo sự riêng tư cho từng thành viên trong gia đình.
-
2 nhà vệ sinh bố trí hợp lý, thuận tiện sử dụng mà vẫn đảm bảo thẩm mỹ.
-
Phòng sinh hoạt chung là điểm nhấn, nơi các thành viên có thể thư giãn, đọc sách, chơi đùa hoặc trò chuyện cùng nhau.
Không gian tầng lầu tận dụng ánh sáng tự nhiên và thông gió chéo, giúp các phòng luôn sáng sủa và mát mẻ, giảm phụ thuộc vào điều hòa.
.jpg)
Thiết kế nội thất phòng ngủ ( phòng dành cho khách )
Nội thất phòng sinh hoạt chung
.jpg)
Không gian làm việc
Thiết kế wc chung
Tầng thượng – Phòng thờ và sân thượng trước sau
-
Phòng thờ được bố trí ở vị trí cao nhất – yên tĩnh, trang nghiêm và hợp phong thủy.
-
Sân thượng trước và sau tạo nên không gian mở lý tưởng để gia chủ trồng cây, làm vườn nhỏ, khu thư giãn hoặc tổ chức tiệc nhẹ ngoài trời.
Sự hiện diện của khoảng xanh trên cao không chỉ làm dịu không gian mà còn góp phần cải thiện vi khí hậu cho toàn bộ ngôi nhà.



Thiết kế khu vườn trồng rau
Phong cách kiến trúc hiện đại và giải pháp thoáng khí
Điểm nổi bật của căn nhà chính là sự tối giản trong hình khối kiến trúc, màu sắc trung tính kết hợp vật liệu hiện đại như:
-
Kính lớn ở mặt tiền và khu vực cầu thang – giúp tăng cường ánh sáng tự nhiên
-
Lam chắn nắng và ban công xanh – vừa tạo điểm nhấn thẩm mỹ, vừa giúp chống nóng
-
Thông tầng và giếng trời – đóng vai trò quan trọng trong việc thông gió, lấy sáng và kết nối không gian
Cách bố trí thông minh này giúp ngôi nhà luôn thoáng mát, tiết kiệm năng lượng, và tạo cảm giác dễ chịu trong mọi thời điểm trong năm.

Hình ảnh căn nhà khi hệ thống ánh sáng ban đêm được mở

