Ngôi Nhà Phố Hiện Đại 4.5m x 13m: Nét Chấm Phá Tinh Tế Giữa Lòng Đô Thị
Sở hữu diện tích 4.5m x 13m, một kích thước phổ biến trong các khu đô thị hiện nay, mẫu nhà phố 3 tầng này là minh chứng cho giải pháp kiến trúc thông minh, tối ưu không gian sống mà vẫn đảm bảo tính thẩm mỹ vượt trội và công năng tiện nghi. Ngay từ cái nhìn đầu tiên, công trình đã gây ấn tượng mạnh mẽ bởi vẻ đẹp hiện đại, thanh lịch và đầy cá tính.
Điểm Nhấn Kiến Trúc Độc Đáo:
Ngôi nhà nổi bật với phong cách kiến trúc hiện đại, sử dụng các đường nét hình khối mạnh mẽ, dứt khoát nhưng không kém phần duyên dáng. Mặt tiền được thiết kế khéo léo với sự kết hợp hài hòa giữa các mảng tường phẳng sơn trắng chủ đạo, tạo cảm giác rộng rãi và thoáng đãng. Điểm xuyết vào đó là các chi tiết tinh tế:
-
Mảng Tường Cong Mềm Mại: Một nét phá cách độc đáo chính là việc sử dụng các đường cong nhẹ nhàng ở khu vực ban công tầng 1 và tầng 2, tạo sự mềm mại, uyển chuyển cho tổng thể kiến trúc vốn thường thấy sự vuông vức ở nhà phố. Điều này không chỉ tăng tính thẩm mỹ mà còn mang lại cảm giác chào đón, thân thiện.
-
Hệ Lam Đứng Trang Trí: Bên phải mặt tiền, hệ lam đứng màu sẫm kéo dài từ tầng 2 lên đến mái không chỉ là một yếu tố trang trí tạo điểm nhấn thị giác mạnh mẽ, mà còn có tác dụng hỗ trợ che nắng hướng Tây (nếu có) và tăng tính riêng tư cho không gian bên trong.
-
Ban Công Xanh Mát: Các ban công được bố trí hợp lý ở mỗi tầng, không chỉ mở rộng không gian sử dụng mà còn là nơi lý tưởng để gia chủ trồng thêm cây xanh, mang thiên nhiên vào nhà, tạo không khí trong lành và thư thái. Bồn cây được thiết kế sẵn ở ban công tầng 1 và tầng 2 là một minh chứng cho sự chú trọng đến yếu tố này.
-
Cửa Kính Lớn: Hệ thống cửa đi và cửa sổ sử dụng vật liệu kính cường lực khung nhôm xingfa (hoặc tương đương) màu tối, vừa đảm bảo an toàn, cách âm, cách nhiệt, vừa giúp tối đa hóa việc lấy sáng tự nhiên vào các không gian bên trong, đồng thời tạo nên vẻ sang trọng, hiện đại.
-
Mái Bằng Tối Giản: Phần mái bằng được xử lý khéo léo, kết hợp với phần mái che vươn ra ở tầng thượng, tạo nên một tổng thể hài hòa và tăng thêm không gian sử dụng ngoài trời.
-
Màu Sắc Thanh Lịch: Sự kết hợp giữa màu trắng tinh khôi của tường, màu xám ghi của đá ốp tầng trệt, và màu đen của hệ cửa, lan can, lam trang trí tạo nên một bảng màu hiện đại, sang trọng và không bao giờ lỗi mốt. Ánh sáng từ đèn ngoại thất hắt tường cũng góp phần tôn lên vẻ đẹp của công trình khi đêm về.
Tối Ưu Công Năng Cho Cuộc Sống Tiện Nghi:
Với quy mô 3 tầng trên diện tích 4.5m x 13m, ngôi nhà hứa hẹn một không gian sống được bố trí khoa học, đáp ứng đầy đủ nhu cầu sinh hoạt của gia đình hiện đại.
- Tầng Trệt: Thường được ưu tiên cho không gian sinh hoạt chung như phòng khách, khu vực để xe kết hợp bếp và phòng ăn và phòng khách. Các không gian riêng tư lên các tầng trên.
Mặt bằng bố trí tầng trệt
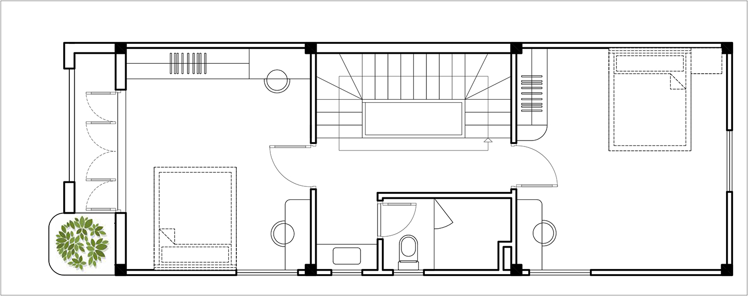
- Các Tầng Lầu: Sẽ là nơi bố trí các phòng ngủ và các không gian phụ trợ khác. Việc có ban công ở mỗi tầng giúp các phòng ngủ đều có thể đón ánh sáng và gió trời.
Mặt bằng bố trí công năng lầu 01
Mặt bằng bố trí công năng lầu 02
.jpg)
Phối cảnh kiến trúc ( phương án 02 )
Lời Kết:
Mẫu nhà phố 3 tầng mặt tiền 4.5m này không chỉ là một công trình để ở, mà còn là một tác phẩm kiến trúc thể hiện gu thẩm mỹ tinh tế của gia chủ. Với thiết kế thông minh, hiện đại và sự chú trọng đến từng chi tiết, ngôi nhà chắc chắn sẽ mang đến một không gian sống lý tưởng, tiện nghi và tràn đầy cảm hứng giữa nhịp sống đô thị sôi động. Đây là sự lựa chọn hoàn hảo cho những ai đang tìm kiếm một tổ ấm vừa đẹp mắt, vừa tối ưu công năng trên một diện tích đất không quá lớn.

