Thông tin dự án nhà ở kết hợp kinh doanh
- Mẫu thiết kế nhà phố 15x18m do Kiến trúc Mai Việt thiết kế kiến trúc và nội thất An Giang.
- Chủ đầu tư: C. Hoa Xuân
- Địa điểm : TT Tri Tôn, Tình An Giang
- Công trình do Kiến Trúc Mai Việt thiết kế nội thất và thiết kế kiến trúc
- Dự kiến thi công hoàn thành vào tháng 02.2020
- Chủ đầu tư: C. Hoa Xuân
- Địa điểm : TT Tri Tôn, Tình An Giang
- Công trình do Kiến Trúc Mai Việt thiết kế nội thất và thiết kế kiến trúc
- Dự kiến thi công hoàn thành vào tháng 02.2020
Nội dung thiết kế nhà ở kết hợp kinh doanh


Phối cảnh kiến trúc bên ngoài ( Hình 3D )
.jpg)
- MẶT BẰNG BỐ TRÍ TẦNG TRỆT
- Tầng trệt được bố trí khu vực kinh doanh với kích thước 10x20m, diện tích còn lại 5x10 dành cho gara xe và 01 phòng ngủ dành cho người giúp việc.
.jpg)
Khu vực Gara xe
.jpg)
Khu vực cầu thang lên lầu tận dụng làm tủ dày và kho
.jpg)
(2).jpg)
Phòng ngủ dành cho người giúp việc
(1).jpg)
.jpg)
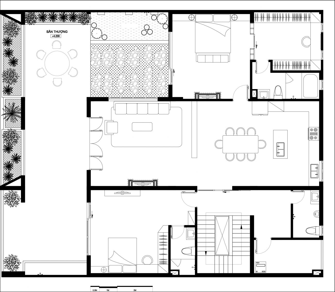
- MẶT BẰNG BỐ TRÍ LẦU 01
- Lầu 1 được bố trí phòng khách, bếp và 02 phòng ngủ, phòng ngủ chính được thiết kế liên thông với khu sân vuồn ngoài trời, là nơi thử giản và tập yoga của gia chủ.
.jpg)
.jpg)
.jpg)
.jpg)
Phối cảnh nội thất phòng khách, phòng ăn, bếp ( Hình 3D )
.jpg)
Phòng wc dành cho khu phòng khách và khu vực bếp
.jpg)
.jpg)
.jpg)
.jpg)
.jpg)
.jpg)
Phối cảnh nội thất phòng ngủ Master ( Hình 3D )
.jpg)
.jpg)
Phối cảnh nội thất phòng ngủ 01 ( Hình 3D )
.jpg)
.jpg)
.jpg)
Phối cảnh thiết kế khu vực sân thượng ( Hình 3D)

