Thông tin dự án Biệt thự 1 tầng 10x20m
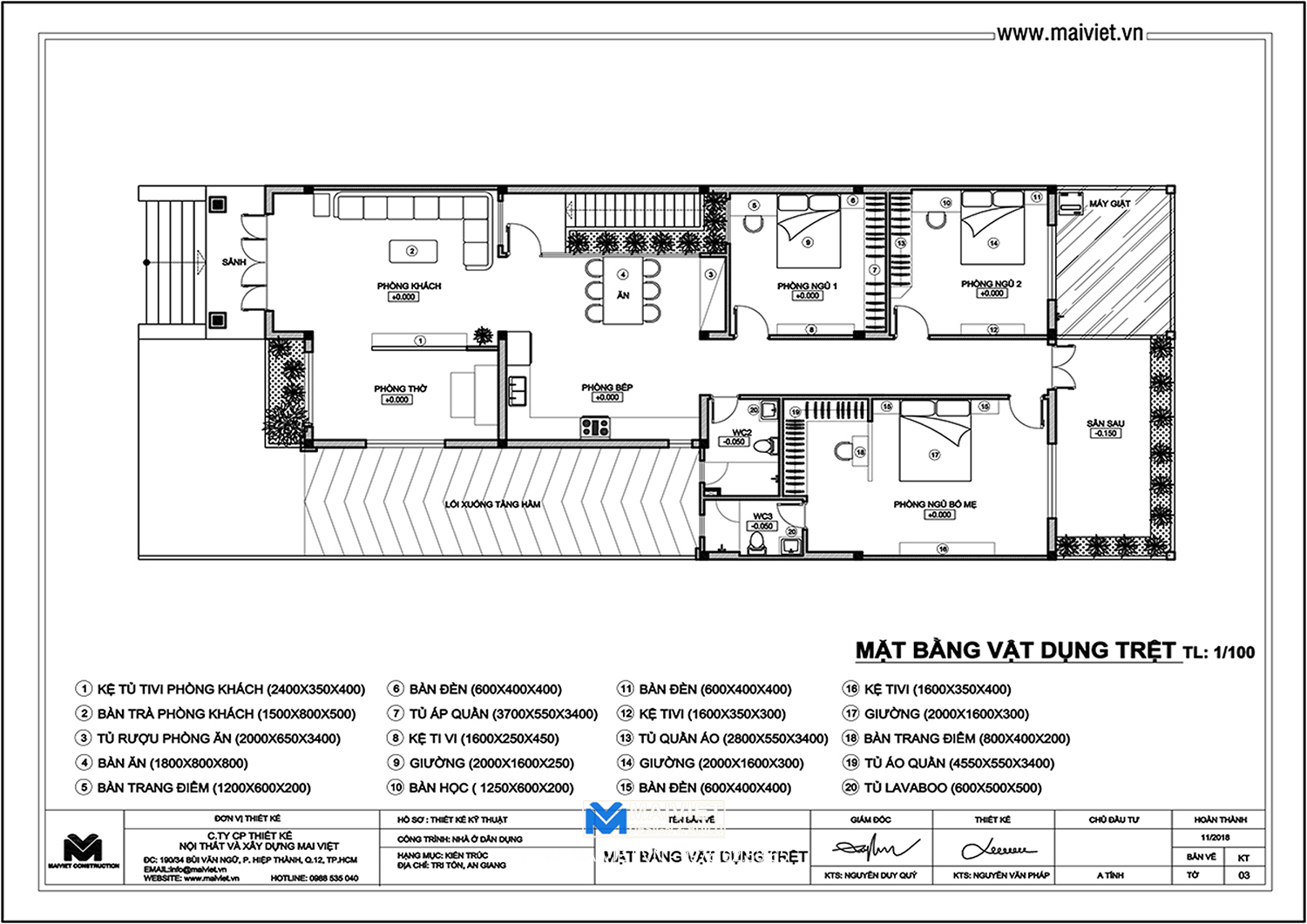
- Mẫu biệt thự hiện đại được xây dựng trên khuôn viên đất rộng 10m và chiều sâu 40m. Công trình tọa lạc trên vị trí đất triền dốc về phía sau nên phần sau nhà được tận dụng làm hầm xe, phòng Karaoke và các phòng chức năng khác như nhà kho...Tầng 1 được bố trí phòng khách phía chính diện cặp bên cạnh là phòng thờ, tạo không gian ấm cúng và riêng tư. 3 phòng ngủ được đưa về phía sau và không gien bếp, phòng ăn là khu vục trung tâm của gia đình.
- Thiết kế biệt thự hiện đại một tầng do KIẾN TRÚC MAI VIỆT thiết kế kiến trúc và nội thất tọa lạc tại Huyện Tri Tôn, An Giang
- Chủ đầu tư: A Tính
- Địa điểm :H. Tri Tôn, An Giang
Hình ảnh thiết kế công trình

Mặt bằng bố trí công năng biệt thự phố 10x20m
Hình ảnh thiết kế kiến trúc biệt thự 1 tầng 10x20

Hình ảnh thiết kế nội thất biệt thự 1 tầng 10x20m

Không gian phòng khách với tông màu xám tạo sự sang trọng và hiện dại

Không gian phòng thờ

.jpg)

Khu vực bếp và phòng ăn


Hình ảnh thiết kế nội thất phòng ngủ Master


Phòng ngủ con trai 01


Thiết kế nội thất phòng ngủ con trai


Thiết kế nội thất phòng Karaoke

Mời quý khách hàng xem thêm công trình tương tự
Mẫu biệt thự 1 tầng mái Thái
Mẫu biệt thự vườn 1 tầng hiện đại 15x20m
Mẫu biệt thự vườn 1 tầng phong cách cổ điển

