Thông tin dự án thiết kế biệt thự 1 tầng mái thái.
- Mẫu thiết kế biệt thự vườn8x20m do Kiến trúc Mai Việt thiết kế kiến trúc và nội thất tại An Giang. Căn nhà được thiết kế theo phong cách hiện đại với lối kiến trúc đơn giản và sang trọng.
- Chủ đầu tư: A Tính
- Địa điểm : Thị trấn Tri Tôn, Tỉnh An Giang
- Công trình dự kiến hoàn thành tháng 08.2019
- Chủ đầu tư: A Tính
- Địa điểm : Thị trấn Tri Tôn, Tỉnh An Giang
- Công trình dự kiến hoàn thành tháng 08.2019
Video công trình
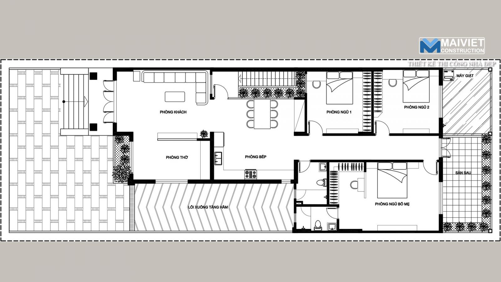
Hình ảnh thiết kế biệt thự 1 tầng mái thái.
.jpg)
.jpg)
.jpg)

.jpg)
.jpg)
.jpg)
.jpg)
.jpg)
.jpg)
.jpg)
.jpg)
.jpg)
.jpg)


Thông tin liên hệ
- Hình ảnh thuộc bản quyền của www.maiviet.vn
- Mọi chi tiết xin liên hệ :CÔNG TY CỔ PHẦN THIẾT KẾ NỘI THẤT VÀ XÂY DỰNG MAI VIỆT
- Ðịa chỉ: 190/34 Bùi Văn Ngữ, Phường Hiệp Thành, Quận 12, Tp.HCM
- Website: www.maiviet.vn - www.kinhnghiemxaynha.vn
- Email: info@maiviet.vn - kientrucmaiviet@gmail.com
- Website: www.maiviet.vn - www.kinhnghiemxaynha.vn
- Email: info@maiviet.vn - kientrucmaiviet@gmail.com
- Hotline: 0978 62 63 65
- Zalo: 0988 54 50 40 Nguyễn Duy Quý
- Vp: 028 66 53 55 45

