Thông tin dự án thiết kế biệt thự hiện đại 3 tầng 8x18m
- Công trình: Nep House
- Chủ đầu tư: Chị Trinh
- Địa điểm : P. Thạnh Xuân - Q.12 - Tp.HCM
Nội dung thiết kế biệt thự hiện đại 3 tầng 8x18m
Mẫu thiết kế biệt thự hiện đại 03 tầng 8x18m là một thiết kế ấn tượng tại quận 12, Tp.HCM cho ta những cảm nhận về một tổ ấm hạnh phúc đúng nghĩa. Nep House nằm trên khu đất có bề rộng mặt tiền 8m với chiều sâu 30m. Ngôi nhà có thiết kế 3 tầng và mái bê tông với kiến trúc hiện đại và nội thất sang trọng. Sự kết hợp hài hòa trong phong cách thiết kế kiến trúc cùng thiết kế nội thất đã kiến tạo nên một không gian sống đầy sang trọng, tinh tế và giá trị.- Tổng thể căn nhà được thiết kế với khoảng lùi sâu 10m và khoảng sân rộng làm sân vườn và sân để xe.
Công năng hiết kế biệt thự hiện đại 3 tầng 8x18m
- Nep House là một tổ ấm dành cho gia đình hai thế hệ, chính vì thế số lượng phòng ngủ cần phải nhiều nhưng vẫn đảm bảo diện tích phòng đủ rộng, thoáng và phải mang tính riêng tư. Công năng chi tiết phân bố bên trong ngôi nhà như sau:
Mặt bằng bố trí công năng tầng trệt
- Tầng trệt được thiết kế với chiều dài 17m, với 01 phòng ngủ lớn dành cho Ba Mẹ, các không gian khác dành cho sinh hoạt gia đình như phòng khách, bếp, phòng ăn...
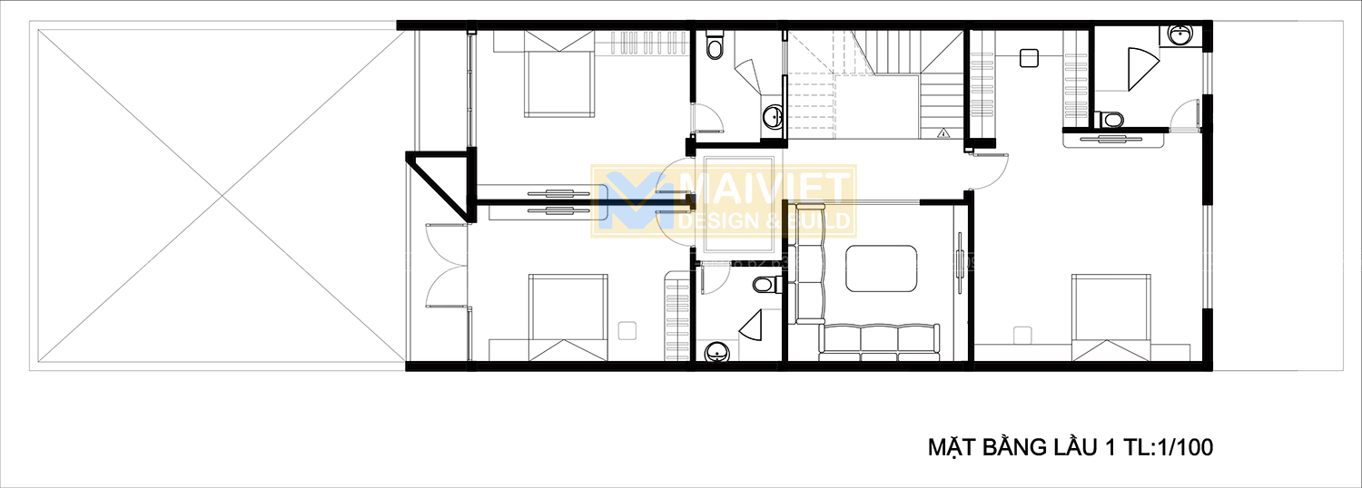
Mặt bằng bố trí công năng lầu 01
- Lầu 01 được bố trí với 03 phòng ngủ và 01 phòng giải trí. Phòng ngủ chính Master được bố trí trải rộng phía sau với diện tích rộng, tiện ích đầy đủ tiêu chuẩn 4 sao
Mặt bằng bố trí công năng lầu 02
- Lầu 02 được bố trí với 1 phòng thờ, 1 phòng ngủ dành cho khách và khu sân thượng phía sau dành cho việc trồng Lan
Hình ảnh thiết kế kiến trúc

