Nội dung thiết kế biệt thự 6.5 x16m
- Biệt thự phố được xây 6.5 x16m trên khuôn viên đất 8x20m, với phần sân bên hông làm nhà để xe và hồ cá coi, khu sân vườn dành nhiều không gian cho cây cối tiều cảnh và khu trồng rau sạch.
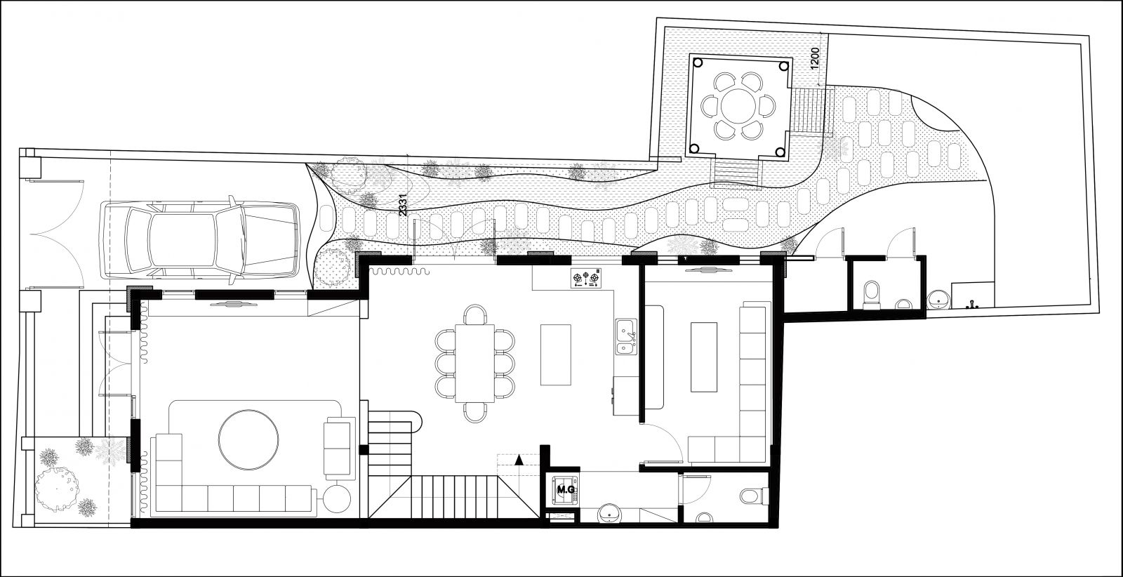
- Tầng trệt được bố trí 1 phòng khách, bếp ăn và phòng giải trí Karaoke.
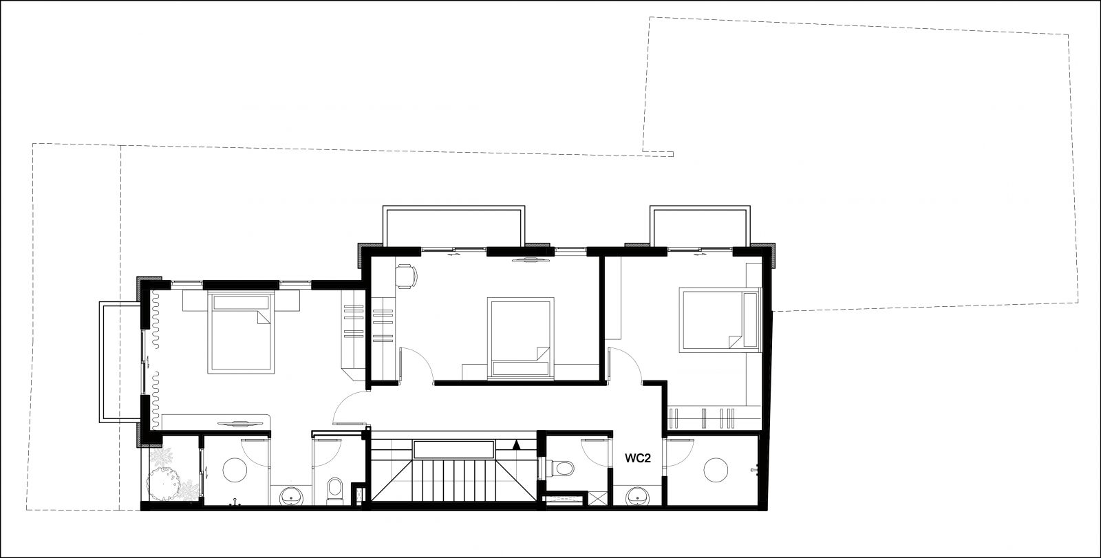
- Lầu 01 được bố trí 03 phòng với 02 Wc, dành cho Ba Mẹ, Con trai và Con gái.
- Lầu 02 được bố trí 01 phòng dành cho khách và 1 khu sân ngoài trời .
- Thiết kế biệt thự phố hiện đại mặt tiền 8m do Kiến trúc Mai Việt thiết kế kiến trúc tại quận 12
- Chủ đầu tư: A.Vinh
- Địa điểm : P. Trung Mỹ Tây, Q.12, Tp.HCM
- Biệt thự có quy mô 1 trệt và 02 tầng lầu do KIẾN TRÚC MAI VIỆT thực hiện, Biệt thự được thiết kế theo phong cách bán cổ điển.
- Tại quận 12 KIẾN TRÚC MAI VIỆT đã thiết kế và thi công xây dựng rất nhiều công trình biệt thự cũng như nhà phố nhưng mẫu thiết kế biệt thự phố mặt tiền 8m đã tạo ra điểm nhận diện với hình thái rất riêng với nhiều biệt thự khác được KIẾN TRÚC MAI VIỆT thiết kế và thi công.
- Ngoài thiết kế và thi công xây dựng tại quận 12 chúng tôi còn cung cấp dịch vụ xin phép xây dựng và hoàn công nhà ở sau xây dựng.
Hình ảnh thiết kế







Khu vực sân vườn với hồ cá coi, chòi lục giác và suối nước
- Mặt bằng bố trí tầng trệt biệt thự mặt tiền 8m.
.jpg)
Hình ảnh 360 độ nội thất tầng trệt
.jpg)

Hình ảnh thiết kế nội thất phòng khách
.jpg)
.jpg)
Khu vực phòng ăn và bếp



Phòng Karaoke dành cho gia đình
.jpg)
.jpg)
- Mặt bằng bố trí kiến trúc lầu 1
.jpg)


Màu sắc chủ đạo của phòng ngủ Master là màu xám, xen kẽ là những nét phào chỉ ốp tường tạo nên sự nhẹ nhàng nhưng không kém phần sang trọng.
.jpg)
.jpg)
.jpg)
Khu vực wc được bố trí bằng những mảng kính lớn ngăn cách các phòng chức năng, hoàn mình với thiên nhiên bằng một ổ cửa lớn tạo sự thông thoáng và khô ráo.
.jpg)
Phối cảnh nội thất phòng ngủ con gái
.jpg)
.jpg)
Phối cảnh nội thất phòng ngủ con trai


Mặt bằng bố trí kiến trúc lầu 2
- Lầu 2 được bố trí với một phòng ngủ dành cho khách và khu sân thượng trước
.jpg)

Phối cảnh nội thất phòng ngủ dành cho khách
Hình ảnh thuộc bản quyền của www.maiviet.vn

