Thông tin dự án biệt thự vườn một tầng mái thái 4 phòng ngủ
- Chủ đầu tư: A Dũng
- Địa điểm : Xã Tân Thới Nhì, Hóc Môn, Tp.HCM
- Khái toán phần thô và nhân công hoàn thiện 1.200.000đ, công trình hoàn thành vào tháng 12/2021
- Địa điểm : Xã Tân Thới Nhì, Hóc Môn, Tp.HCM
- Khái toán phần thô và nhân công hoàn thiện 1.200.000đ, công trình hoàn thành vào tháng 12/2021
Nội dung thiết kế biệt thự vườn một tầng mái thái 4 phòng ngủ
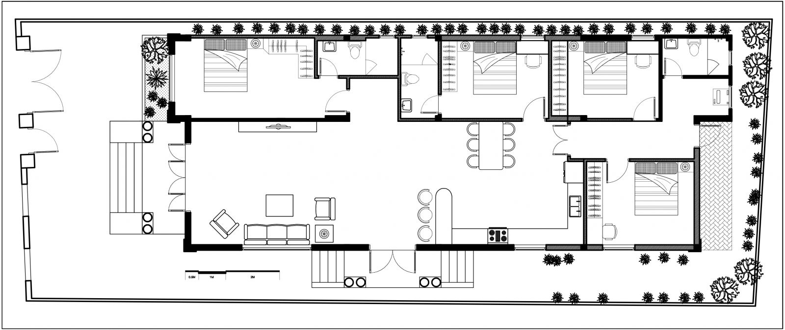
- Mẫu thiết kế biệt thự vườn trên khuôn viên đất 10x20 do Kiến trúc Mai Việt thiết kế kiến trúc và thi công xây dựng tại Hóc Môn- Công trình được thiết kế một tầng với quy mô 3 phòng ngủ dành cho Ba Mẹ và 2 con, các chức năng chung như phòng ăn phòng bếp và phòng khách được thiết kế liên kế tạo không gian thông thoáng cho ngôi nhà.
- MẶT BẰNG BỐ TRÍ KIẾN TRÚC
.jpg)
.jpg)
.jpg)
- Kiến trúc công trình biệt thự vườn một tầng được thiết kế dạng mái thái với các lớp mái chồng lên nhau tạo điểm nhấn cho công trình
.jpg)
.jpg)
.jpg)
.jpg)
.jpg)
.jpg)
.jpg)
.jpg)
Thông tin liên hệ
- Hình ảnh thuộc bản quyền của www.maiviet.vn
- Mọi chi tiết xin liên hệ :CÔNG TY CỔ PHẦN THIẾT KẾ NỘI THẤT VÀ XÂY DỰNG MAI VIỆT
- Website: www.maiviet.vn - www.kinhnghiemxaynha.vn
- Email: info@maiviet.vn - kientrucmaiviet@gmail.com
- Hotline: 0978 62 63 65
- Zalo: 0988 54 50 40 Nguyễn Duy Quý
- Vp: 028 66 53 55 45

