Thông tin dự án biệt thự vườn 8x15m
- Mẫu thiết kế biệt thự vườn 8x15 m trên khuôn viên đất 12x30 do Kiến trúc Mai Việt thiết kế kiến trúc và thi công xây dựng tại quận 12
- Chủ đầu tư: A. Tuyến
- Địa điểm : Khu dân cư Phú Nhuận, P. Thới An, Q.12, Sài Gòn
- Chủ đầu tư: A. Tuyến
- Địa điểm : Khu dân cư Phú Nhuận, P. Thới An, Q.12, Sài Gòn
Video thiết kế công trình
Nội dung thiết kế biệt thự vườn 8x15m
- Mẫu thiết kế biệt thự vườn 8x15 m trên khuôn viên đất 12x30 do Kiến trúc Mai Việt thiết kế kiến trúc và thi công xây dựng tại quận 12

.jpg)
Phối cảnh thiết kế ngoại thất ( Hình thiết kế 3D)


.jpg)
Phối cảnh khu vực sân vườn ( Hình thiết kế 3D )
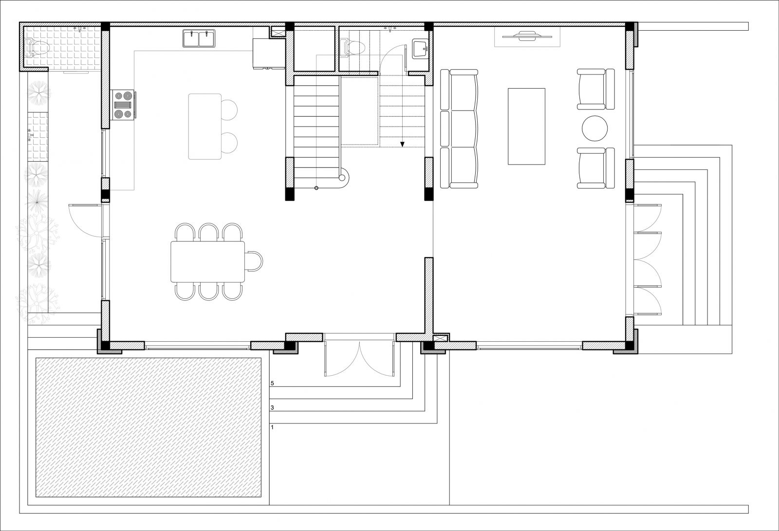
- Bố trí công năng tầng 01
Tầng 01 bố trí với công năng chủ yếu dành cho phòng khách, bếp và phòng ăn. Khuôn viên chủ yếu dành cho việc trồng cây xanh và lối giao thông bên ngoài.
Sát vị trí phòng ăn là thác nước và hồ cá Coi, tạo điểm nhấn và không khí thoáng mát cho phòng ăn.
.jpg)
Tầng 01 bố trí với công năng chủ yếu dành cho phòng khách, bếp và phòng ăn. Khuôn viên chủ yếu dành cho việc trồng cây xanh và lối giao thông bên ngoài.
Sát vị trí phòng ăn là thác nước và hồ cá Coi, tạo điểm nhấn và không khí thoáng mát cho phòng ăn.
.jpg)
Mặt bằng bố trí nội thất tầng 01
.jpg)
.jpg)
.jpg)
.jpg)
Phối cảnh thiết kế nội thất không gian bếp, phòng ăn và không gian phòng khách ( Hình thiết kế 3D)
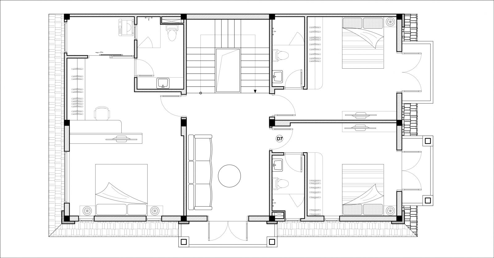
- Bố trí công năng tầng 02
Tầng 02 được bố trí với công năng 03 phòng ngủ và 1 khu sinh hoạt chung vừa đủ đề ngồi đọc sách thư giản...Phòng ngủ Msater được bố trí đầy đủ công năng và chiếm gần 1/2 diện tích tầng 02.
.jpg)
Mặt bằng bố trí nội thất tầng 02
.jpg)
.jpg)
Phối cảnh thiết kế nội thất phòng ngủ 01 ( Hình thiết kế 3D)
.jpg)

Phối cảnh thiết kế nội thất phòng ngủ 02 ( Hình thiết kế 3D)
.jpg)
.jpg)
.jpg)
.jpg)
Phối cảnh thiết kế nội thất phòng ngủ Master ( Hình thiết kế 3D)

Phối cảnh thiết kế nội thất phòng WC ( Hình thiết kế 3D)
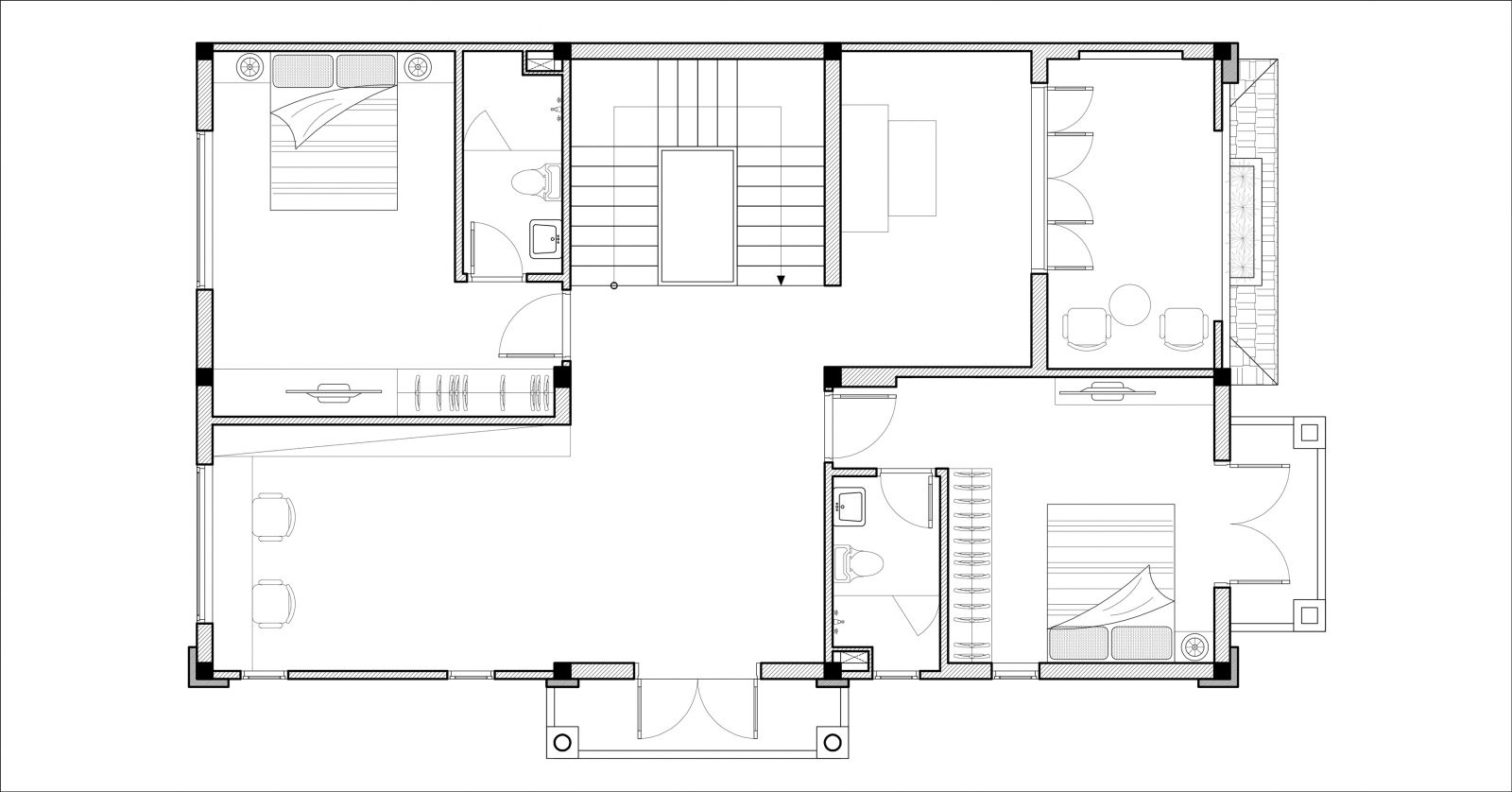
- Mặt bằng bố trí công năng tầng 03
Tầng 03 được bố trí với 02 phòng ngủ, 1 phòng học thư viện dành cho gia đình và không gian thờ cúng.
.jpg)
Mặt bằng bố trí nội thất tầng 03


Phối cảnh thiết kế nội thất phòng ngủ 03 ( Hình thiết kế 3D)

Phối cảnh thiết kế nội thất phòng học, không gian đọc sách ( Hình thiết kế 3D)

Phối cảnh thiết kế nội thất phòng thờ ( Hình thiết kế 3D)
Thông tin liên hệ
- Hình ảnh thuộc bản quyền của www.maiviet.vn
- Mọi chi tiết xin liên hệ :CÔNG TY CỔ PHẦN THIẾT KẾ NỘI THẤT VÀ XÂY DỰNG MAI VIỆT
- Ðịa chỉ: 190/34 Bùi Văn Ngữ, Phường Hiệp Thành, Quận 12, Tp.HCM
- Website: www.maiviet.vn - www.kinhnghiemxaynha.vn
- Email: info@maiviet.vn - kientrucmaiviet@gmail.com
- Website: www.maiviet.vn - www.kinhnghiemxaynha.vn
- Email: info@maiviet.vn - kientrucmaiviet@gmail.com
- Hotline: 0978 62 63 65
- Zalo: 0988 54 50 40 Nguyễn Duy Quý
- Vp: 028 66 53 55 45

