- Huế là vùng đất với nền văn hóa cổ kính lâu đời, với nhiều đền thờ miếu mạo, chính vì vậy phong cách kiến trúc tại Huế cũng có xu hướng Á Đông với nhiều công trình lịch sử văn hóa đồ sợ, cổ kính và rất Á Đông.
- Ngày nay, với sự phát triển kinh tế khá nhanh nên nhu cầu thiết kế xây dựng tại Huế cũng rất phong phú và đa dạng, với đặt trung chính của địa phương có nhiều nhà vườn, quỹ đất dành cho việc xây dựng nhà còn khá nhiều. Với những điều kiện thuận lợi đó nên Mẫu biệt thự vườn 01 tầng tại Huế là hình thức rất phổ biến.
- Những mẫu thiết kế biệt thự vườn 1 tầng tại Huế tuy không đồ sộ và nguy nga như những công trình văn hóa và như những công trình dân dụng vùng khác nhưng cũng tạo được những dấu ấn rất đậm nét.
- Rải rát các khu vực như thành phố Huế, Phong Điền, Quảng Điển, Phú Lộc .... nổi lên nhiều công trình biệt thự 01 tầng rất ấn tượng và đa dạng phong cách. Tuy nhiên, mẫu thiết kế biệt thự 01 tầng mái Thái tại Huế luôn là hình ảnh công trình gây ấn tượng và hào hòa với môi trường kiến trúc, con người và văn hóa xứ Huế nhất.
- Thông tin dự án biệt thự vườn tại Huế.
- Chủ đầu tư: C. Trang
- Địa điểm : Thừa Thiên Huế
- Công trình do Kiến Trúc Mai Việt thiết kế nội thất , thiết kế kiến trúc
- Khái toán phần thô và nhân công hoàn thiện 1.000.000đ và thi công hoàn thành vào tháng 08.2020.
- Nội dung thiết kế biệt thự vườn tại Huế
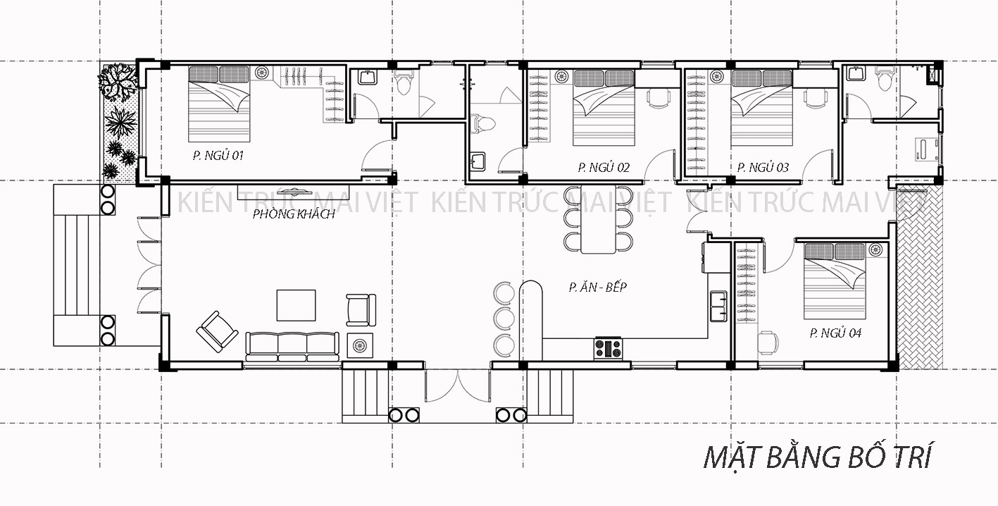
- Thiết kế nhà biệt thự vườn một tầng tại Huế do Kiến trúc Mai Việt thiết kế kiến trúc và thiết kế nội thất tại Huế với kiểu kiến trúc mái Thái- Mẫu biệt thự 1 tầng mái Thái được KIẾN TRÚC MAI VIỆT thiết kế kiến trúc và thiết kế nội thất tại Huế, công trình được thiết kế xây dựng trên khuôn viên đất có chiều rộng 10m và chiều sâu 30m, phần sân trước được bố trí làm sân để xe và sân vườn.
- Công trình có quy mô 1 tầng với 04 phòng ngủ, 04 wv trong đó 02 wc dành cho nội bộ 02 phòng, không gian phòng bếp nối liền không gian phòng khách tạo ra không gia liền kề thông thoáng và rộng rãi
.jpg)
.jpg)
.jpg)
.jpg)
.jpg)
.jpg)

.jpg)

.jpg)

