Thông tin dự án thiết kế nhà phố 5x20 mái Thái
- Mẫu thiết kế nhà phố mặt tiền 5m do Kiến trúc Mai Việt thiết kế và thi công tại quận 12, thành phố Hồ Chí Minh.
- Chủ đầu tư: Nguyễn Minh Đường
- Địa điểm :P. An Phú Đông, Q.12, Sài Gòn
- Công trình do Kiến Trúc Mai Việt thiết kế kiến trúc và thiết kế nội thất, dự kiến thi công hoàn thành vào tháng 7.2020
- Dự toán phần thô và nhân công hoàn thiện là 1.200.000 đ.
- Chủ đầu tư: Nguyễn Minh Đường
- Địa điểm :P. An Phú Đông, Q.12, Sài Gòn
- Công trình do Kiến Trúc Mai Việt thiết kế kiến trúc và thiết kế nội thất, dự kiến thi công hoàn thành vào tháng 7.2020
- Dự toán phần thô và nhân công hoàn thiện là 1.200.000 đ.
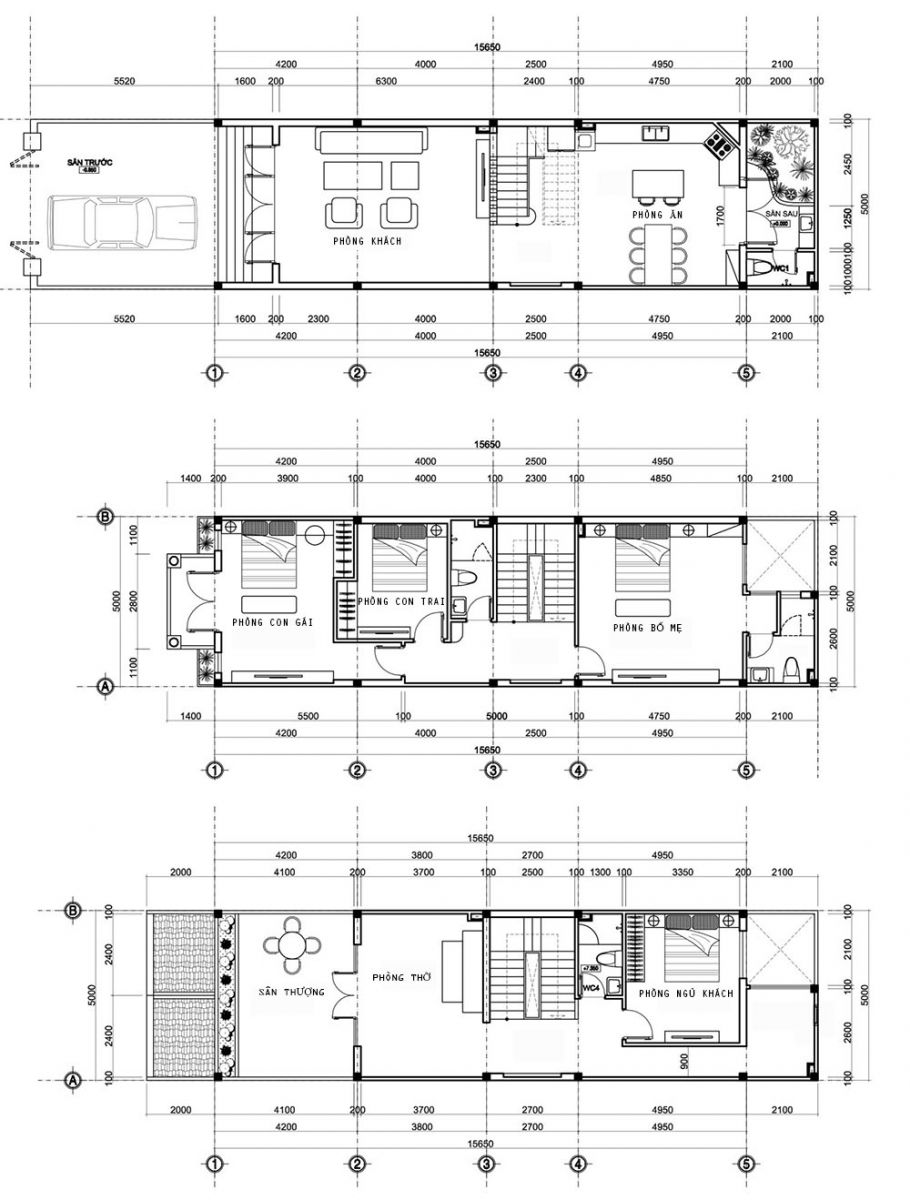
Hình ảnh thiết kế nhà phố 3 tầng 5x20 mái Thái

Phối cảnh kiến trúc ( Hình 3D)
.jpg)

Phòng khách


Không gian bếp, phòng ăn
.jpg)
.jpg)
Phòng ngũ ba mẹ
.jpg)
.jpg)
phòng ngũ con gái
.jpg)
.jpg)
Phòng ngũ con trai
.jpg)
.jpg)
Phòng ngũ khách
.jpg)
.jpg)
.jpg)

