Thông tin dự án thiết kế nhà phố 4 tầng mặt tiền 5m
- Thiết kế nhà phố hiện đại 5x12m trên khuôn viên đất 7x15m
- Chủ đầu tư: Chị Như
- Địa điểm : P Hiệp Thành - Q.12, Tp.HCM
Nội dung thiết kế nhà phố 4 tầng mặt tiền 5m
- Công trình được thiết kế 5x15m trên khuôn viên đất 7x15m với phong cách hiện đại, sử dụng nhiều mảng kính cho mặt tiền để đón ánh sáng buổi sáng cho toàn bộ các phòng phía trước
.jpg)
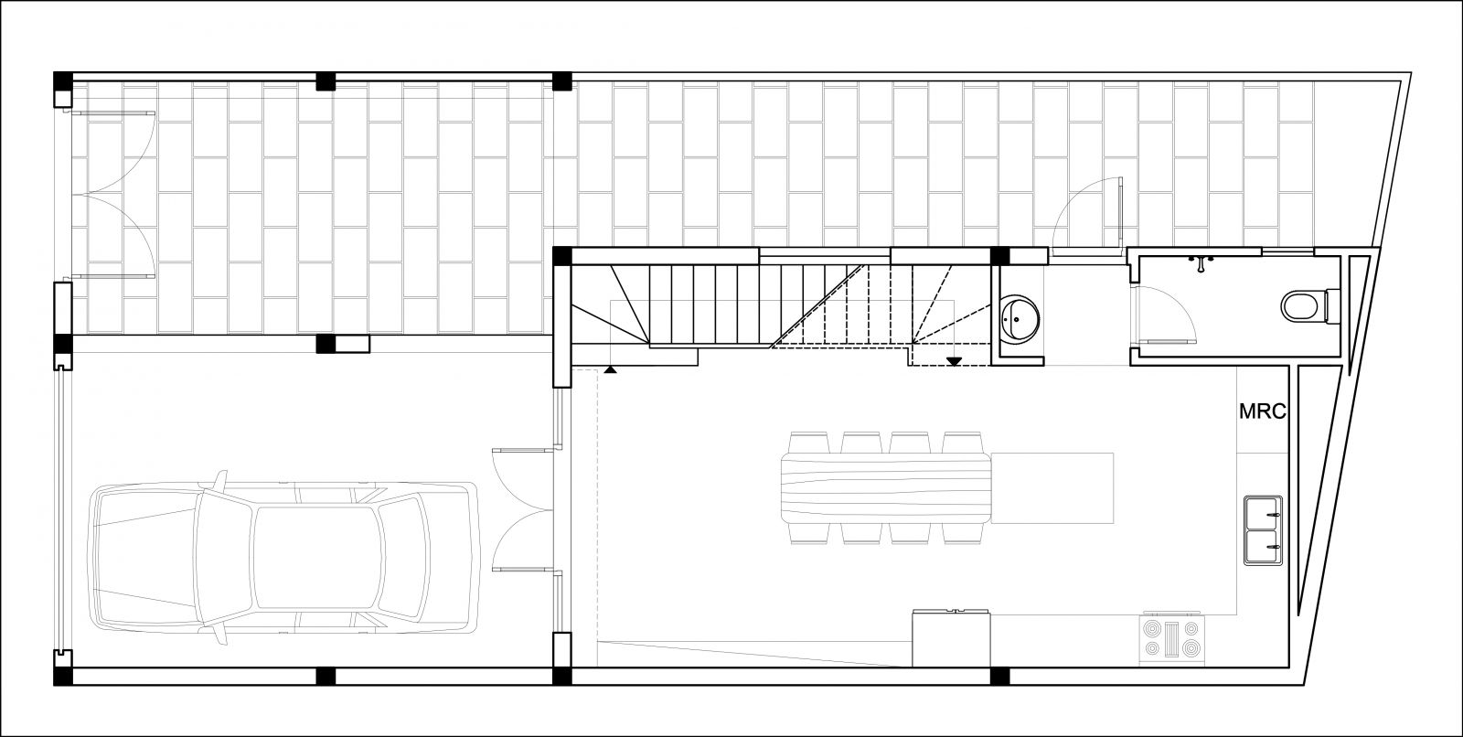
MẶT BẰNG BỐ TRÍ KIẾN TRÚC TẦNG 1
- Tầng 1 được bố trí với sân trước là khu vực nhà xe, bếp và khu phòng ăn lớn

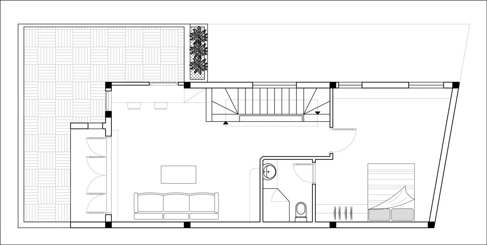
MẶT BẰNG BỐ TRÍ KIẾN TRÚC TẦNG 2
- Tầng 02 được bố trí 01 phòng ngủ với 01 phòng khách lớn phía trước mặt tiền
.jpg)
MẶT BẰNG BỐ TRÍ KIẾN TRÚC TẦNG 3
- Tầng 3 được bố trí 2 phòng ngủ với 2 nhà vệ sinh khép kín

MẶT BẰNG BỐ TRÍ KIẾN TRÚC TẦNG 4
- Tầng 4 được bố trí phòng thờ, nhà kho và khu sân thượng trước sau
.jpg)
.jpg)
Công trình được áp dụng lối kiến trúc hiện đại với nhiều mảng kính và cửa sổ tạo một không gian sáng và thoáng cho căn nhà
Xem thêm mẫu nhà phố mặt tiền 4m
Thiết kế nhà phố 4 tầng mặt tiền 4m
Thiết kế nhà phố 1 trệt, 1 lững và 3 tầng lầu mặt tiền 4m
Mẫu nhà phố 4 tầng 4x15m
Mẫu nhà phố 3 tầng 4x18m

