Giới thiệu công trình: Nhà phố hiện đại 4m x 13m – 3 tầng 1 tum
1. Thông tin chung:
- Chủ đầu tư: A Hưng- Địa điểm : P TTH, Q.12, Tp.HCM
- Công trình được KIẾN TRÚC MAI VIỆT thiết kế và thi công xây dựng trọn gói
- Tồng giá trị công trình chưa bao bồm phần nội thất là 1.650.000.000 đ
-
Diện tích lô đất: 4m x 13m (52m²)
-
Diện tích xây dựng mỗi tầng: ~52m²
-
Tổng diện tích sàn sử dụng: ~200m²
-
Số tầng: 3 tầng + 1 tum
-
Số phòng ngủ: 4 phòng ngủ
Phong cách thiết kế: Hiện đại, tối giản, tối ưu ánh sáng và thông gió
Mẫu mặt tiền chính
2. Bố trí mặt bằng:
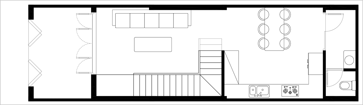
Tầng 1:
- Sân trước để xe 1,5m
- Phòng khách rộng rãi liên thông bếp
- Bếp + bàn ăn
- Nhà vệ sinh chung
- Cầu thang giữa kết hợp giếng trời lấy sáng

Mặt bằng bố trí tầng 1
Tầng 2 - 3:
- 2 phòng ngủ (1 phòng master phía trước có ban công)
- 2 nhà vệ cho mỗi phòng
- Hành lang thông tầng thông thoáng

Mặt bằng bố trí tầng 2,3
Tầng tum:
- Phòng thờ
- Khu giặt phơi
- Sân thượng (có thể làm vườn nhỏ, chỗ thư giãn ngoài trời)
3. Điểm nổi bật trong thiết kế:
-
Tối ưu hóa không gian: Diện tích 4x13m được khai thác triệt để, tạo nên không gian sống tiện nghi cho gia đình 4–6 người.
-
Ánh sáng & thông gió: Thiết kế giếng trời kết hợp khoảng mở ban công, cửa sổ lớn giúp không gian luôn thông thoáng, tiết kiệm điện năng.
-
Phong cách hiện đại: Sử dụng vật liệu nhẹ, kính, màu trung tính và gỗ để tạo cảm giác rộng rãi và ấm cúng.
-
Công năng linh hoạt: Các phòng ngủ được bố trí hợp lý, đáp ứng nhu cầu sinh hoạt, nghỉ ngơi và làm việc tại nhà.
4. Hình ảnh thiết kế kiến trúc
Mặt đứng góc nhìn trực diện
Mặt đứng ngóc nhìn chéo
