Nội dung thiết kế xây dựng nhà phố nhà phố 3 tầng 1 tum 5x18m
- Chủ đầu tư: A Tuấn- Địa điểm : H. Bình Chánh, Tp.HCM
- Công trình hoàn thành vào tháng 02/2024
- Công trình được KIẾN TRÚC MAI VIỆT thiết kế và thi công xây dựng trọn gói
- Tồng giá trọ công trình bao bồm phần nội thất là 2.550.000.000 đ
Hình ảnh thiết kế công trình
- MẶT BẰNG BỐ TRÍ TRỆT
- Tầng trệt được bố trí với gara lớn và bếp - phòng ăn. Khu vực sân sau sử dụng làm ô thông thoáng và khu wc


- MẶT BẰNG BỐ TRÍ LẦU 1
- Lầu 1 được thiết kế với 1 phòng khách lớn, phòng ngủ dành cho con trai và wc chung cho toàn tầng



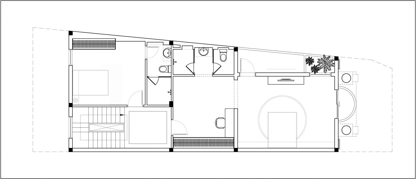
- MẶT BẰNG BỐ TRÍ LẦU 2
- Lầu 1 được thiết kế với 01 phòng ngủ Maeter và 01 phòng ngủ dành cho con, sử dụng 02 wc riêng cho tầng phòng
Mặt bằng bố trí lầu 02


Mời quý khách tham khảo hình ảnh thực tế Thi công xây nhà trọn gói nhà phố cổ điển tại Bình Chánh

