Thông tin dự án
- Mẫu thiết kế nhà phố 5x20m do Kiến trúc Mai Việt thiết kế kiến trúc và thi công xây dựng tại Biên Hòa
- Chủ đầu tư: A. Quý
- Địa điểm : Thống Nhất, Biên Hòa, Đồng Nai
- Công trình do Kiến Trúc Mai Việt thiết kế nội thất , thiết kế kiến trúc
- Khái toán phần thô và nhân công hoàn thiện 1.900.000đ và dự kiến thi công hoàn thành vào tháng 06.2022
- Chủ đầu tư: A. Quý
- Địa điểm : Thống Nhất, Biên Hòa, Đồng Nai
- Công trình do Kiến Trúc Mai Việt thiết kế nội thất , thiết kế kiến trúc
- Khái toán phần thô và nhân công hoàn thiện 1.900.000đ và dự kiến thi công hoàn thành vào tháng 06.2022
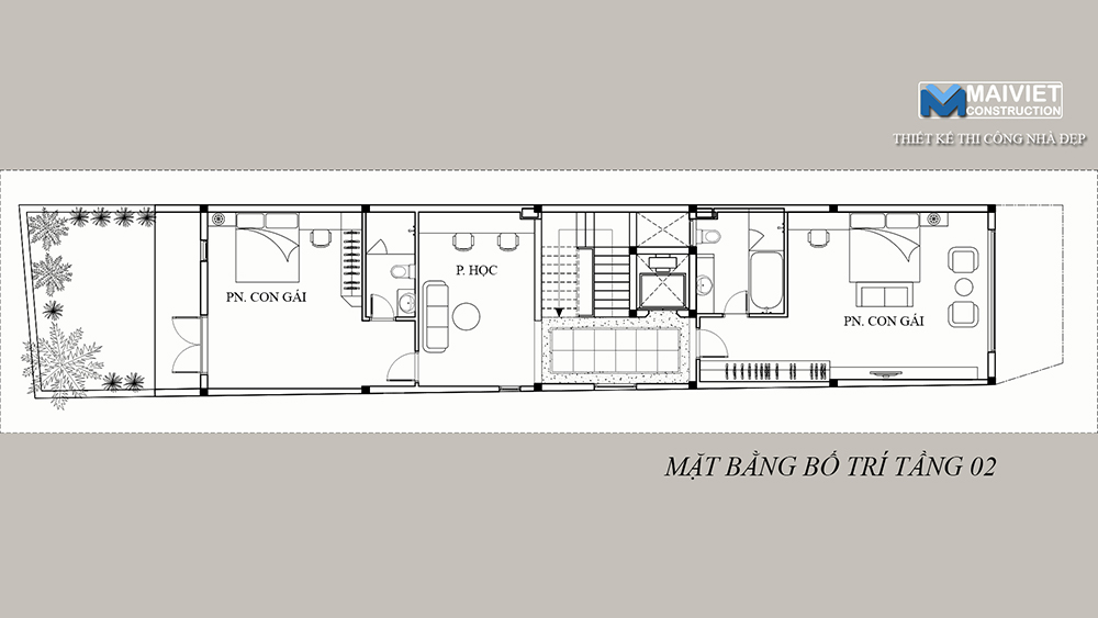
Hình ảnh thiết kế công trình


.jpg)
.jpg)
.jpg)
.jpg)

.jpg)
.jpg)
.jpg)
.jpg)
.jpg)
.jpg)

.jpg)
.jpg)
.jpg)

.jpg)


Thông tin liên hệ
- Hình ảnh thuộc bản quyền của www.maiviet.vn
Mọi chi tiết xin liên hệ :CÔNG TY CỔ PHẦN THIẾT KẾ NỘI THẤT VÀ XÂY DỰNG MAI VIỆT
Ðịa chỉ: 190/34 Bùi Văn Ngữ, Phường Hiệp Thành, Quận 12, Tp.HCM
Hotline: 0978 62 63 65
Vp: 028 66 53 55 45
Website: www.maiviet.vn - www.kinhnghiemxaynha.vn
Email: info@maiviet.vn - kientrucmaiviet@gmail.com
Ðịa chỉ: 190/34 Bùi Văn Ngữ, Phường Hiệp Thành, Quận 12, Tp.HCM
Hotline: 0978 62 63 65
Vp: 028 66 53 55 45
Website: www.maiviet.vn - www.kinhnghiemxaynha.vn
Email: info@maiviet.vn - kientrucmaiviet@gmail.com

