1. Phong cách kiến trúc: Mái Nhật 1 tầng 3 phòng ngủ
Nhà Mái Nhật có độ dốc vừa phải, tản nhiệt tốt, rất phù hợp với khí hậu nóng ẩm của nước ta. Phong cách này mang hơi hướng hiện đại pha lẫn truyền thống, tạo nên vẻ đẹp nhẹ nhàng nhưng vẫn sang trọng.
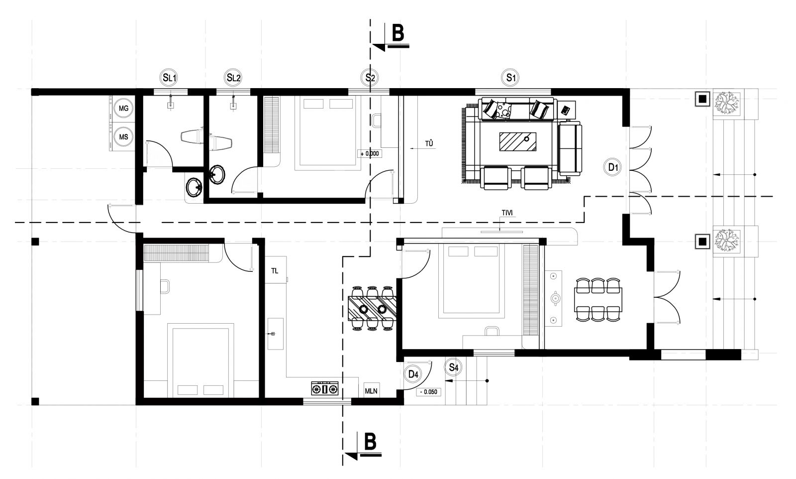
2. Tổng thể mặt bằng công năng nhà Mái Nhật 1 tầng 3 phòng ngủ
Diện tích công trình: Rộng 8m dài 19m
Mặt bằng bố trí nội thất
Mặt bằng tổng thể ( Hình thiết kế 3D )
Bố trí không gian gồm:
-
Phòng khách: 25m², thông thoáng, kết nối trực tiếp với sảnh chính, cửa kính lớn đón sáng tự nhiên. Ké bên là phòng thờ hướng ra phía sân chính
- Phòng bếp + ăn: 22m², bố trí tách biệt với phòng khách, có cửa sổ và cửa hông mở ra sân sau để tạo lối đi riêng.
- Phòng ngủ 1 (Master): 20m², có WC riêng, dành cho vợ chồng.
-
Phòng ngủ 2 & 3: Mỗi phòng khoảng 14m², phù hợp cho con cái hoặc người thân.
-
1 WC: Một WC chung đặt cuối nhà với nhiều cửa và ánh sáng
-
Sảnh chính + hiên: Tạo điểm nhấn cho mặt tiền và chống nắng.
Sân vườn/tiểu cảnh: Diện tích đất rộng nên được bố trí thêm sân trước, sân sau hoặc tiểu cảnh bên hông nhà.


Hình ảnh thiết kế kiến trúc nhìn từ trên cao
3. Thiết kế mặt tiền Nhà Mái Nhật 1 tầng 3 phòng ngủ
-
Màu sắc: Tông sáng như trắng, kem, xám kết hợp mái xanh hoặc mái ghi xám tạo cảm giác sang trọng, thoáng mát.
-
Chất liệu: Gạch thẻ, ốp đá chân tường, cửa nhôm kính giúp hiện đại, bền vững và dễ vệ sinh.
Hệ mái: Mái Nhật đổ bê tông dán ngói hoặc hệ khung kèo lợp ngói Fuji hoặc ngói Nhật truyền thống.


Hình ảnh thiết kế mặt tiền
4. Ưu điểm của nhà Mái Nhật 1 tầng 3 phòng ngủ
-
Tối ưu chi phí: Không cần móng sâu, cầu thang như nhà tầng.
-
Phù hợp gia đình có người lớn tuổi và trẻ nhỏ.
-
Không gian gần gũi thiên nhiên, dễ mở rộng sau này.
5. Dự toán chi phí nhà Mái Nhật 1 tầng 3 phòng ngủ (tham khảo)
-
Với diện tích 150m²:
-
Chi phí xây dựng cơ bản: 1.700.000.000 đ.
-




