Thông tin dự án căn hộ dịch vụ
- Công trình căn hộ dịch vụ được thiết kế với quy mô 1 tầng hầm và 6 tầng nổi do KIẾN TRÚC MAI VIỆT - BIM CONCEPT thi công xây dựng
- Đơn vị thiết kế: Công ty TKXD WINHOUSE
- Chủ đầu tư: Huỳnh Thị Thu Thủy
- Địa điểm : Khu số 4 mở rộng - KĐT mới nam Tuyên Sơn, Khuê Mỹ, Ngũ Hành Sơn, Tp. Đà Nẵng

Thiết kế nội thất căn hộ dịch vụ
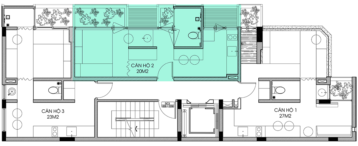
Mặt bằng bố trí căn hộ dịch vụ






Công trình đang thi công....
