THI CÔNG NHÀ PHỐ MẶT TIỀN 4M
Thông tin dự án
- KIẾN TRÚC MAI VIỆT thiết kế và thi công phần thô nhà phố mặt tiền 4m, công trình có quy mô 01 tầng hầm và 06 tầng nổi.
- Chủ đầu tư: Cô Tùng
- Địa điểm : 117/3 Hồ Văn Huê, P.09, Q.03 - Sài Gòn
- Công trình do Kiến Trúc Mai Việt thiết kế nội thất , thiết kế kiến trúc và thi công xây dựng phần thô và nhân công hoàn thiện
- Khái toán phần thô và nhân công hoàn thiện 3.200.000.000 đ và hoàn thành vào tháng 07.2022.
- Chủ đầu tư: Cô Tùng
- Địa điểm : 117/3 Hồ Văn Huê, P.09, Q.03 - Sài Gòn
- Công trình do Kiến Trúc Mai Việt thiết kế nội thất , thiết kế kiến trúc và thi công xây dựng phần thô và nhân công hoàn thiện
- Khái toán phần thô và nhân công hoàn thiện 3.200.000.000 đ và hoàn thành vào tháng 07.2022.
Hình ảnh thực tế thi công
.jpg)
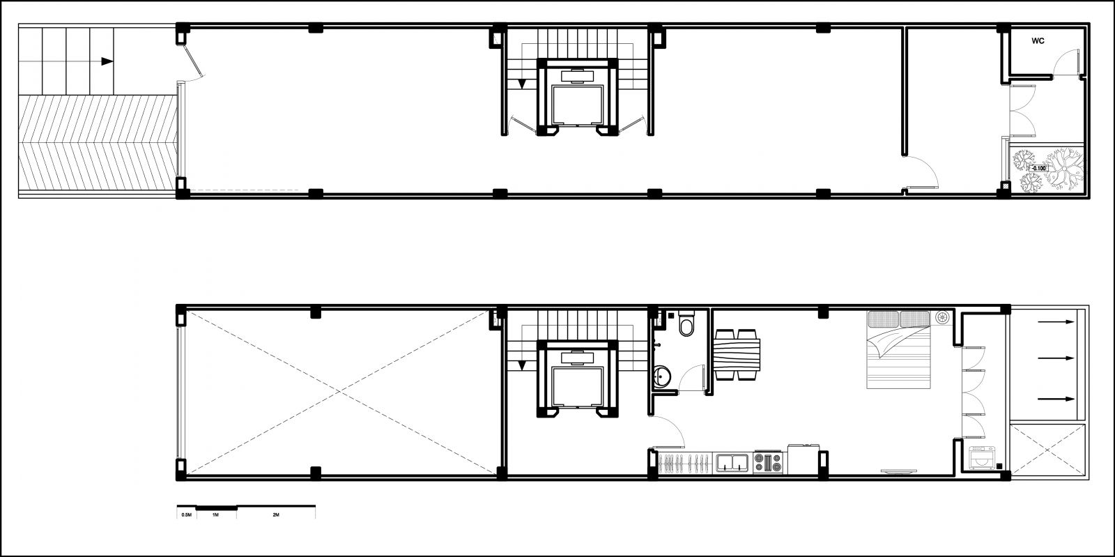
Mặt bằng tầng trệt - tầng lững
.jpg)
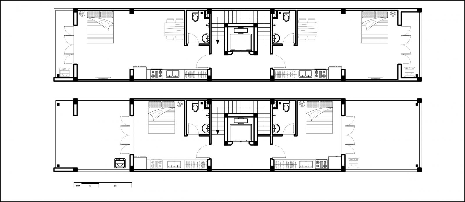
Mặt bằng lầu 01 - 02 - 03 - 04
.jpg)

Công tác thi công tầng hầm.

.jpg)
Công tác thi công sàn các tầng




Công tác thi công hoàn thiện và lắp đặt nội thất


Công tác hoàn thiện mặt tiền

.jpg)
Hình ảnh công trình sau khi bàn giao và đưa vào sử dụng.
Thông tin liên hệ
Hình ảnh thuộc bản quyền của www.maiviet.vn
Mọi chi tiết xin liên hệ :CÔNG TY CỔ PHẦN THIẾT KẾ NỘI THẤT VÀ XÂY DỰNG MAI VIỆT
- Ðịa chỉ: 190/34 Bùi Văn Ngữ, Phường Hiệp Thành, Quận 12, Tp.HCM
- Website: www.maiviet.vn - www.kinhnghiemxaynha.vn
- Email: info@maiviet.vn - kientrucmaiviet@gmail.com
Hotline: 0978 62 63 65
- Website: www.maiviet.vn - www.kinhnghiemxaynha.vn
- Email: info@maiviet.vn - kientrucmaiviet@gmail.com
Hotline: 0978 62 63 65
Vp: 028 66 53 55 45

