Thông tin dự án
- Mẫu thiết kế nhà phố 5x18m do Kiến trúc Mai Việt thiết kế và thi công xây dựng tại quận 12
- Chủ đầu tư: A. Phong
- Địa điểm : KDC Hiệp Thành City, P. Hiệp Thành, Q.12, Tp.HCM
- Công trình có quy mô 1 tầng hầm và 04 tầng nổi do KIẾN TRÚC MAI VIỆT thi công xây dựng phần thô, thiết kế kiến trúc và thiết kế nội thất
- Khái toán phần thô 2.100.000.000đ và dự kiến thi công hoàn thành vào tháng 05.2023.
- Xem toàn bộ thiết kế nhà phố 5x18m
.jpg)
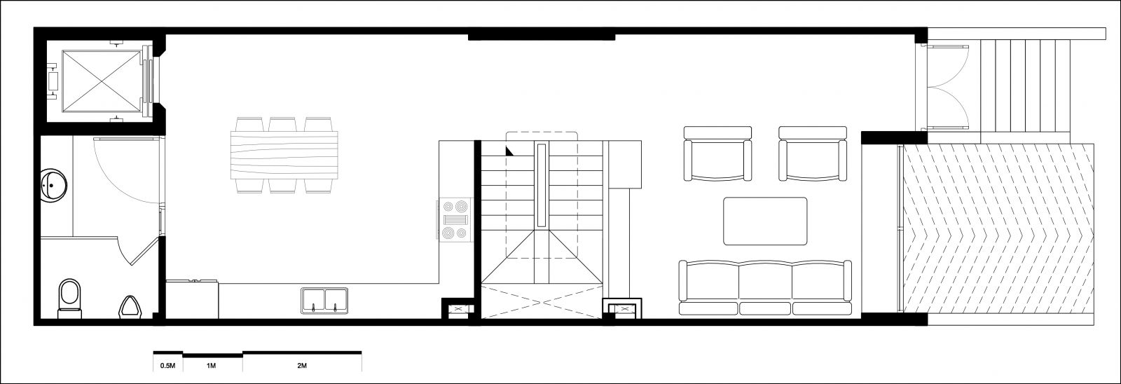
Mặt bằng bố trí tầng trệt
.jpg)
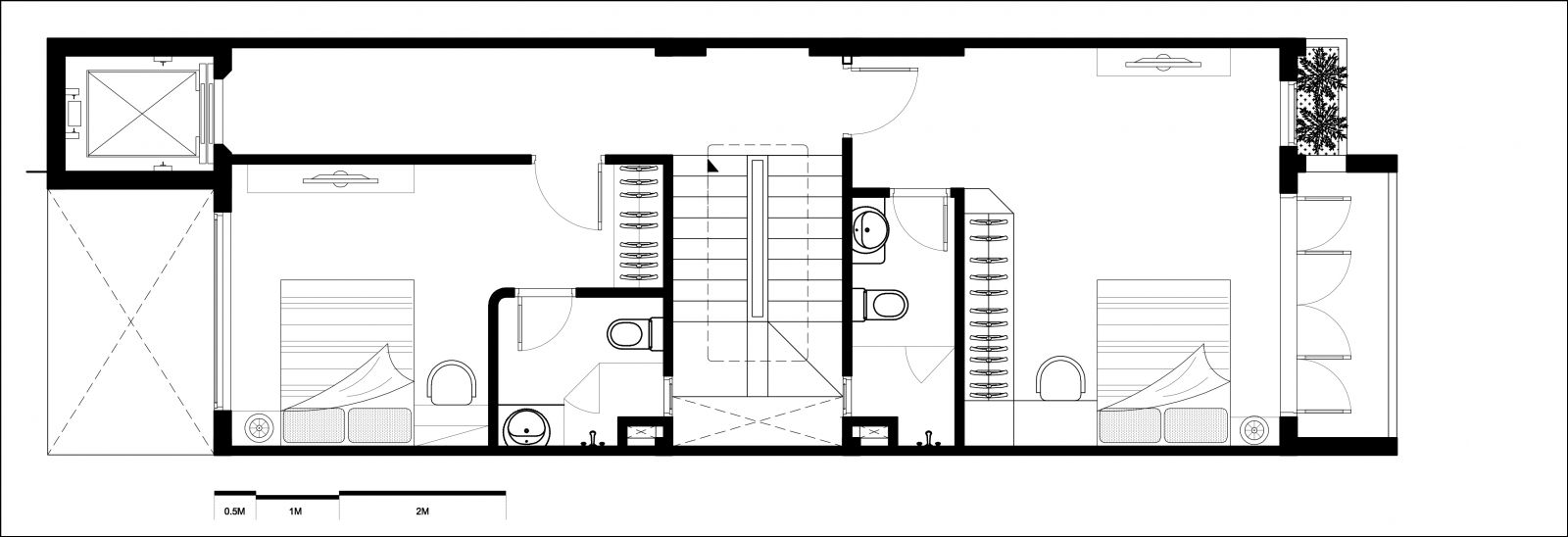
Mặt bằng bố trí lầu 01 - 02
.jpg)
Mặt bằng bố trí lầu 03
.jpg)
Hình ảnh thi công
.jpg)
Công tác bê tông móng hầm

Công tác bê tông sàn

.jpg)
Công tác thi công phần thô

.jpg)
.jpg)

Toàn bộ mặt tiền nhà được áp dụng sơn đá Hòa Bình


.jpg)
.jpg)
.jpg)
.jpg)
Thông tin liên hệ
Hình ảnh thuộc bản quyền của www.maiviet.vn
CÔNG TY CỔ PHẦN THIẾT KẾ NỘI THẤT VÀ XÂY DỰNG MAI VIỆT
Ðịa chỉ: 190/34 Bùi Văn Ngữ, Phường Hiệp Thành, Quận 12, Tp.HCM
Hotline: 0978 62 63 65
Vp: 028 66 53 55 45
Website: www.maiviet.vn - www.kinhnghiemxaynha.vn
Email: info@maiviet.vn - kientrucmaiviet@gmail.com

