Thông tin dự án biệt thự hiện đại 2 tầng H House
- Công trình: BT H House
- Chủ đầu tư: Chị Hạnh
- Tổng mức đầu tư 2.600.000.000đ và được hoàn thành trang 4 tháng xây dựng
- Mẫu thiết kế biệt thự hiện đại 02 tầng là một thiết kế ấn tượng cho ta những cảm nhận về một tổ ấm hạnh phúc đúng nghĩa. H House nằm trên khu đất có bề rộng mặt tiền 21m. Ngôi nhà có thiết kế 2 tầng và mái bê tông với kiến trúc hiện đại và nội thất sang trọng. Sự kết hợp hài hòa trong phong cách thiết kế kiến trúc cùng thiết kế nội thất đã kiến tạo nên một không gian sống tinh tế và giá trị.
- Tổng thể căn nhà được thiết kế với khoảng lùi sâu 2m và khoảng sân rộng làm sân vườn và sân để xe.
Công năng biệt thự hiện đại 2 tầng H House
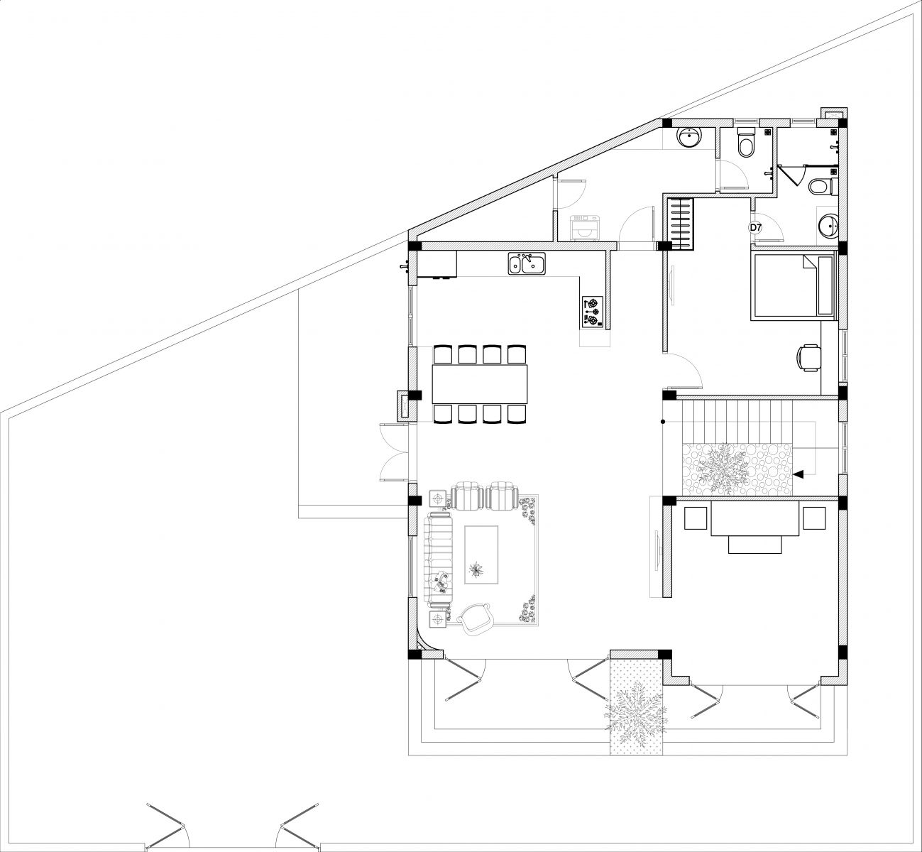
- H House là một tổ ấm dành cho gia đình hai thế hệ, chính vì thế số lượng phòng ngủ cần phải nhiều nhưng vẫn đảm bảo diện tích phòng đủ rộng, thoáng và phải mang tính riêng tư. Công năng chi tiết phân bố bên trong ngôi nhà như sau:MẶT BẰNG BỐ TRÍ TẦNG 01
- Tầng 01 cửa biệt thự hiện đại 2 tầng được thiết kế với 01 phòng thờ nằm phía trước, bếp và không gian phòng khách liên thông nhau tạo thành một khu vực rộng và thoáng. Phòng ngủ bà phía sau với 1 wc khép kín, kho và wc chung đưa về cuối nhà với mái lấy sáng bằng kính phía trên.
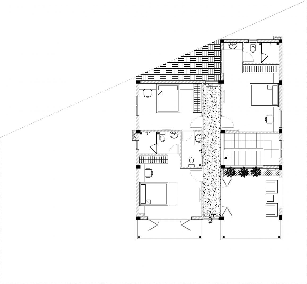
MẶT BẰNG BỐ TRÍ TẦNG 2
Hình ảnh thi công thực tế biệt thự hiện đại 2 tầng






>> Xem thêm những công trình biệt thự hiện đại khác

