Thông tin dự án: Thiết kế biệt thự vườn một tầng tại An Giang
- Biệt thự vườn một tầng được xây dựng với kích thước 15x21m trên khuôn viên đất vườn 40x100m, với phần sân trước tạo dáng bởi bồn hoa và con đường thẳng tắp,hai bên hông làm khu vườn cây ăn trái.- Biệt thự vườn được thiết kế với 03 phòng ngủ lớn dành cho gia đình, khu bếp và phòng ăn là một không gian rộng tạo sự thông thoáng và hiện đại
- Thiết kế biệt thự vườn một tầng hiện đại do KIẾN TRÚC MAI VIỆT thiết kế tọa lạc tại Huyện Châu Thành, Tiền Giang Giang
- Chủ đầu tư: C Nguyệt
- Địa điểm :H. Châu Thành - Tiền Giang

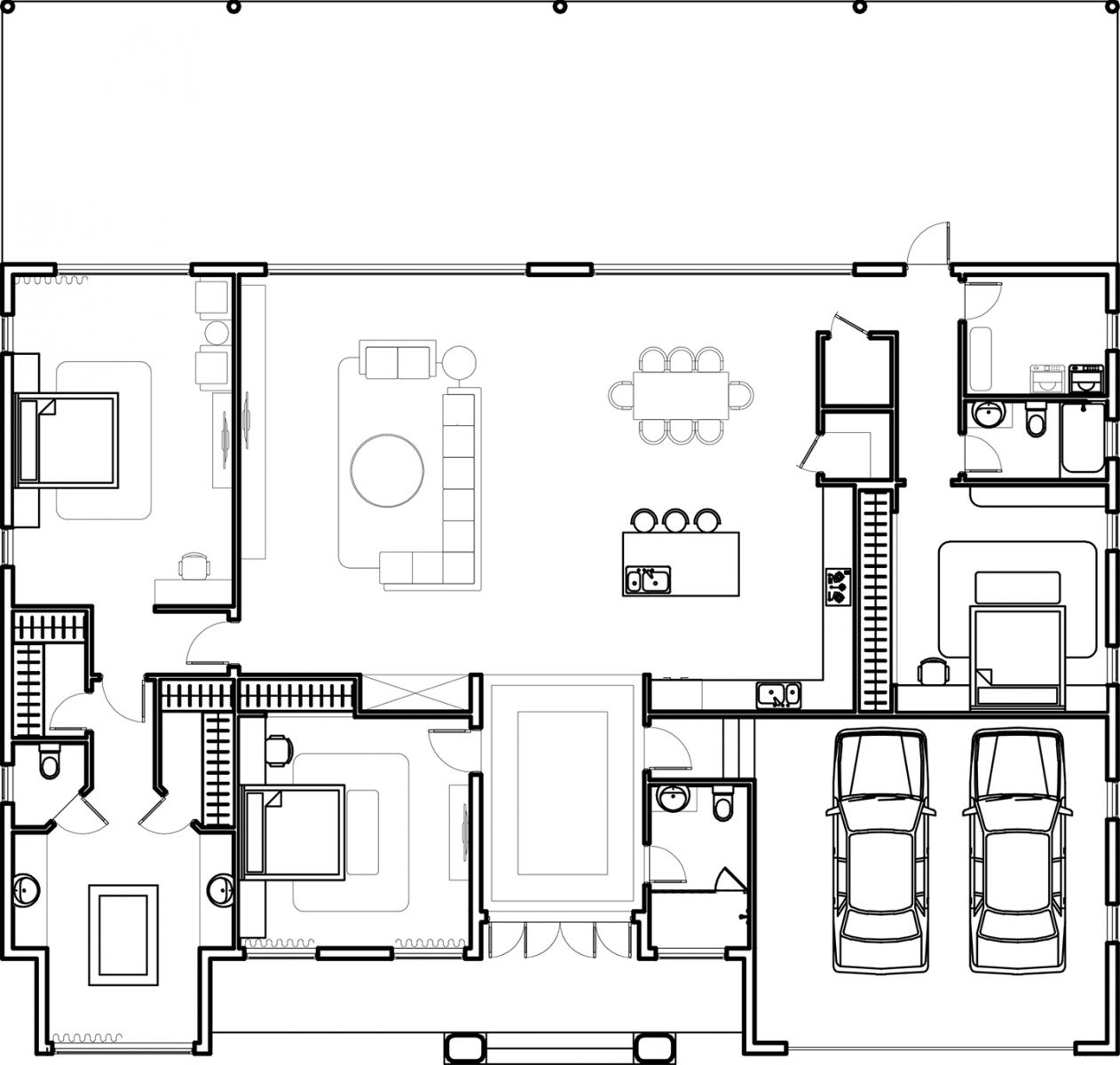
Mặt bằng bố trí Biệt thự vườn một tầng
Hình ảnh thiết kế Biệt thự vườn một tầng tại Tiền Giang

Phối cảnh kiến trúc mặt trước Biệt thự vườn một tầng

Phối cảnh kiến trúc mặt sau Biệt thự vườn một tầng

Phối cảnh kiến trúc mặt hông Biệt thự vườn một tầng
Hình ảnh thiết kế nội thất Biệt thự vườn 1 tầng Tiền Giang
Nội thất phòng khách

Góc nhìn từ sảnh chính nhà
.jpg)
Nội thất không gian bếp - phòng ăn
.jpg)


Nội thất phòng ngủ
1. Nội thất phòng ngủ Master

2. Nội thất phòng ngủ 01


.jpg)
3. Nội thất phòng ngủ 02



Thiết kế wc P02
Hình ảnh thuộc bản quyền của www.maiviet.vn
Xem thêm các mẫu biệt thự 1 tầng khác
THIẾT KẾ BIỆT THỰ VƯỜN MỘT TẦNG TẠI HUẾ
TOP 10 MẪU BIỆT THỰ 1 TẦNG ĐẸP

