Thông tin dự án thiết kế biệt thự 2 tầng mái nhật
- Công trình: PR House
- Chủ đầu tư: A Đại
- Địa điểm : Huyện Phú Riềng - Bình Phước
Nội dung thiết kế biệt thự 2 tầng mái nhật
Mẫu thiết kế biệt thự 2 tầng mái nhật là một thiết kế ấn tượng tại Phú Riềng - Bình Phước. Căn nhà cho ta những cảm nhận về một tổ ấm hạnh phúc đúng nghĩa. PR House nằm trên khu đất có bề rộng mặt tiền 40m với chiều sâu 100m. Ngôi nhà có thiết kế 2 tầng và mái thái với kiến trúc hiện đại và nội thất sang trọng. Sự kết hợp hài hòa trong phong cách thiết kế kiến trúc cùng nội thất đã kiến tạo nên một không gian sống đầy sang trọng, tinh tế và giá trị.- Tổng thể căn nhà được thiết kế với khoảng lùi sâu 40 m và khoảng sân rộng làm sân vườn ...


Hình ảnh thiết kế kiến trúc
Công năng thiết kế biệt thự 2 tầng mái nhật
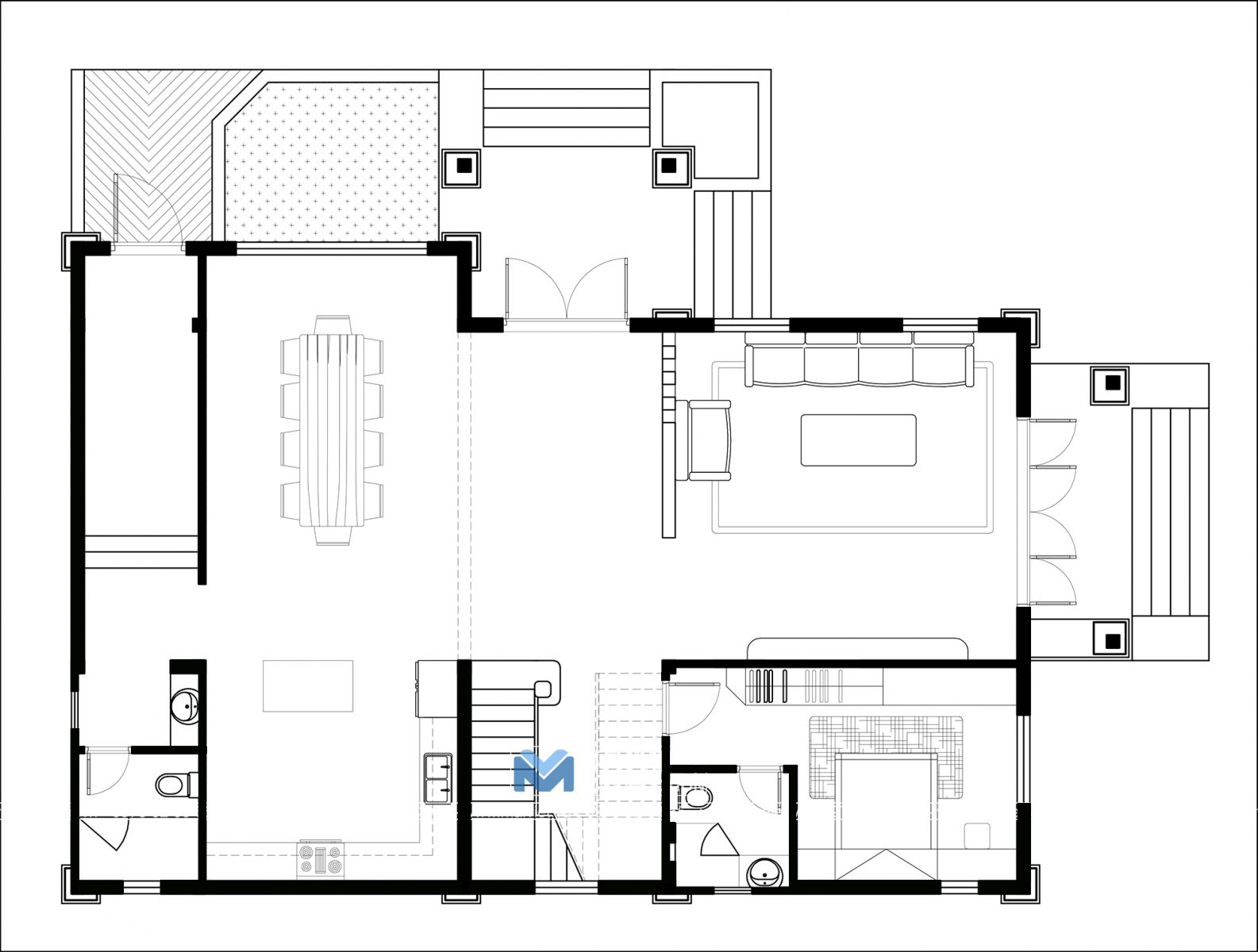
- PR House là một tổ ấm dành cho gia đình hai thế hệ, chính vì thế số lượng phòng ngủ cần phải nhiều nhưng vẫn đảm bảo diện tích phòng đủ rộng, thoáng và phải mang tính riêng tư. Công năng chi tiết phân bố bên trong ngôi nhà như sau:- MẶT BẰNG BỐ TRÍ TẦNG 1
.jpg)


Nội thất phòng khách


Nội thất bếp
.jpg)

Nội thất phòng ăn
.jpg)
Wc chung cho tầng 01
.jpg)


Nội thất phòng ngủ - wc phòng ba mẹ
- MẶT BẰNG BỐ TRÍ TẦNG 2
.jpg)



Phòng sinh hoạt chung

Wc chung cho tầng 02


Nội thất phòng ngủ



Nội thất phòng ngủ


Nội thất phòng ngủ


Nội thất không gian thờ
Bản quyền thuộc về KIẾN TRÚC MAI VIỆT - Mọi sao chép xin liên hệ sổ 0978 62 63 65

