Thông tin dự án biệt thự vườn cổ điển
- Mẫu thiết kế biệt thự vườn 10x20 m trên khuôn viên đất 15x40 do Kiến trúc Mai Việt xây dựng trọn gói tại Bình Dương
- Chủ đầu tư: Chú Hải
- Địa điểm : Tp. Thuận An - Bình Dương
- Chủ đầu tư: Chú Hải
- Địa điểm : Tp. Thuận An - Bình Dương
Video thiết kế công trình
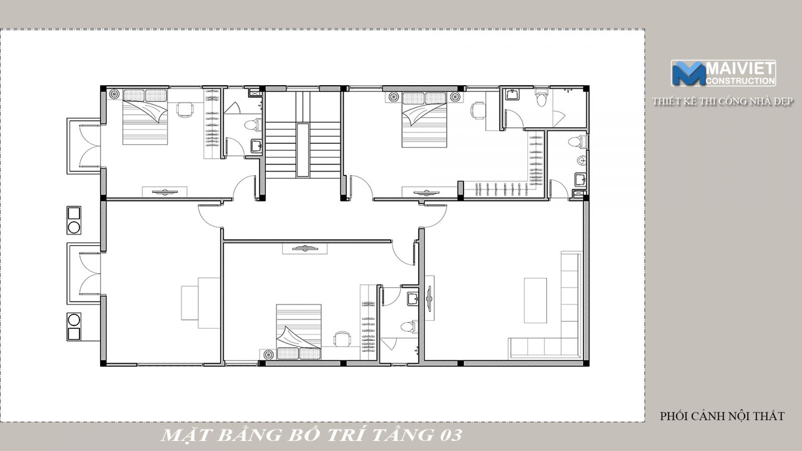
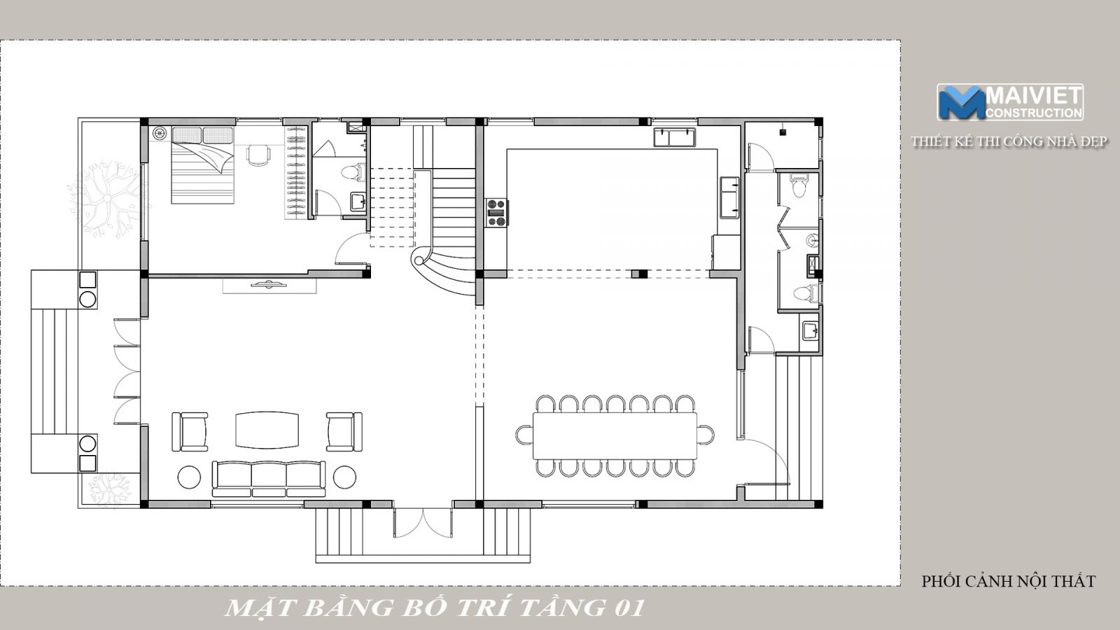
Nội dung thiết kế biệt thự vườn cổ điển
.jpg)
Phối cảnh ban đêm
.jpg)
Phối cảnh kiến trúc ( HÌnh thiết kế 3D )
.jpg)
.jpg)
Nội thất phòng khách
.jpg)
.jpg)
.jpg)
.jpg)
Thiết kế nội thất khu bếp - phòng ăn
.jpg)
.jpg)
.jpg)
.jpg)
.jpg)
.jpg)
.jpg)
.jpg)
.jpg)
.jpg)
Thiết kế nội thất phòng ngủ

Phòng Karaoke
.jpg)

