-
Thông tin dự án
- Mẫu thiết kế biệt thự vườn 8x15m do Kiến trúc Mai Việt thiết kế kiến trúc và thiết kế nội thất tại huyện Hóc Môn
- Chủ đầu tư: Chị Nga
- Địa điểm : TTN, Hóc Môn, Tp.HCM
- Chủ đầu tư: Chị Nga
- Địa điểm : TTN, Hóc Môn, Tp.HCM
-
Nội dung thiết kế
.jpg)
.jpg)
.jpg)
.jpg)
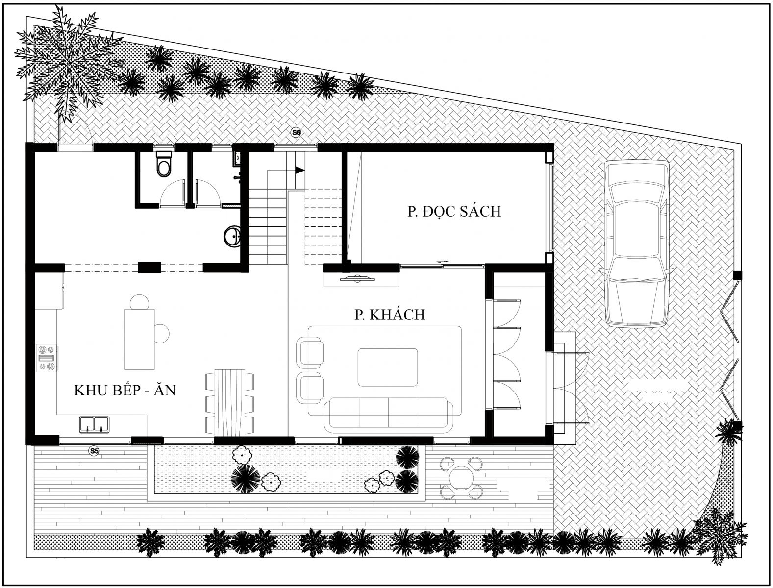
- Mặt bằng bố trí tầng trệt
.jpg)
.jpg)
.jpg)
.jpg)
.jpg)
.jpg)
.jpg)
- Mặt bằng bố trí lầu 1
.jpg)
.jpg)
.jpg)
.jpg)
.jpg)
.jpg)
.jpg)
.jpg)
.jpg)
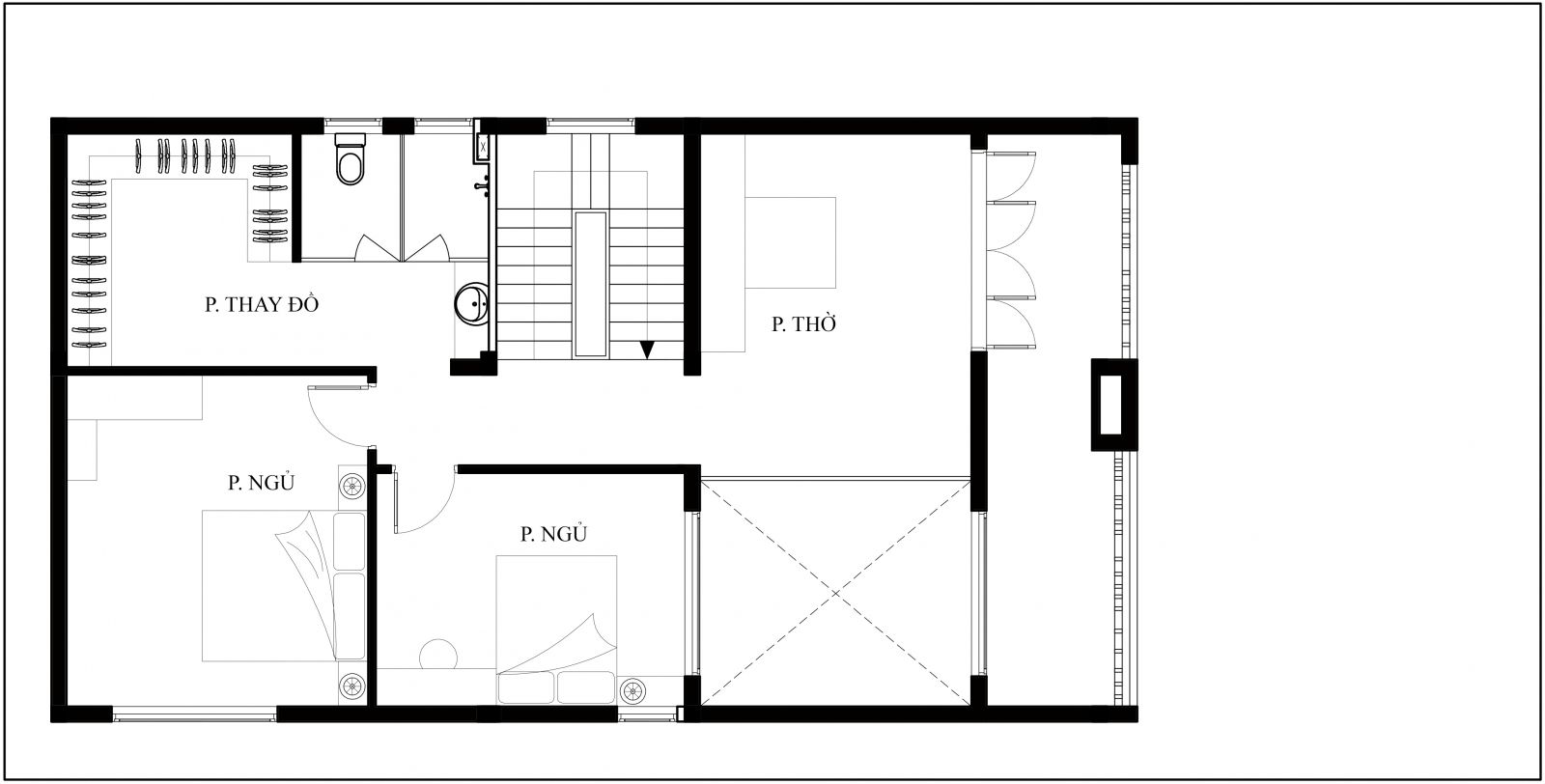
- Mặt bằng bố trí lầu 02
.jpg)
.jpg)
.jpg)
Xem thêm hình ảnh Thi công biệt thự hiện đại

