Thiết kế nhà phố hiện đại 3 tầng 8x18m
- Công trình: BT Tr House
- Chủ đầu tư: A Trình
- Địa điểm : P. Thới An - Q.12 - Tp HCM
Nội dung thiết kế nhà phố hiện đại 3 tầng 8x18m
- Mẫu thiết kế nhà phố hiện đại 03 tầng 8x18m là một thiết kế ấn tượng tọa lạc tại quận 12, TpHCM. Công trình cho ta những cảm nhận về một tổ ấm hiện đại đúng nghĩa. Tr House nằm trên khu đất có bề rộng mặt tiền 8m và chiều sâu đất 30m. Ngôi biệt thự phố có thiết kế 3 tầng và mái bê tông với kiến trúc hiện đại và nội thất sang trọng. Sự kết hợp hài hòa trong phong cách thiết kế kiến trúc cùng hiết kế nội thất đã kiến tạo nên một không gian sống tinh tế và giá trị.Tổng thể căn nhà được thiết kế với khoảng lùi sâu 6m để làm khu vực sân xe và khoảng sân rộng làm sân vườn phía sau nhà.
Công năng nhà phố hiện đại 3 tầng Tr House
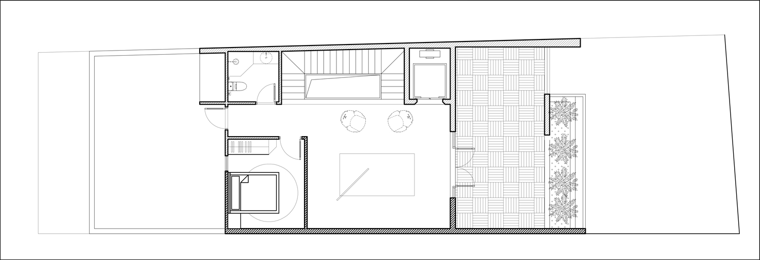
- Tr House là một tổ ấm dành cho gia đình hai thế hệ, chính vì thế số lượng phòng ngủ cần phải nhiều nhưng vẫn đảm bảo diện tích phòng đủ rộng, thoáng và phải mang tính riêng tư. Công năng chi tiết phân bố bên trong ngôi nhà như sau:
- Tầng 01 được thiết kế với chức năng chính là không gian cho thuê kinh doanh với cửa và lối đi riêng, phần còn lại là lối đi dành cho gia đình lên các tầng trên.

- Tầng 02 được thiết kế 2 phòng ngủ , không gian sinh hoạt gia đình bếp và phòng khách gắn kết nhau tạo sự hài hòa và đầm ấm. Không gian phòng thờ được bố tríc tách biệt với không gian sinh hoạt gia đình.

Tầng 02 là không gian giải trí và 01 phỏng ngủ dự phòng dành cho khách, sân thượng trước dành cho việc trồng cây.


Kiến trúc bên ngoài được thiết kế với phong cách hiện đại, tạo điểm nhấn cho người nhìn bằng vẻ khỏe khoắn và tinh tế.
- Cảm ơn Quý khách hàng đã quan tâm đến bài viết giới thiệu Mẫu thiết kế nhà phố hiện đại 03 tầng 8x18m cửa KIẾN TRÚC MAI VIỆT. Quý khách hàng có thể tham khảo các dịch vụ khác.
Dịch vụ xây dựng phần thô
Dịch vụ xây nhà trọn gói
Dịch vụ thiết kế kiến trúc
Dịch vụ sản xuất đồ gỗ nội thất

