-
Thông tin dự án thiết kế nhà phố hiện đại
- Thiết kế nhà phố hiện đại 4x20m trên khuôn viên đất 4x25m
- Chủ đầu tư: Chú Nam
- Địa điểm : Q.8, Tp.HCM -
Nội dung thiết kế nhà phố hiện đại
- Công trình được thiết kế 4x20m trên khuôn viên đất 4x25m với phong cách hiện đại, sử dụng nhiều mảng kính cho mặt tiền để đón ánh sáng buổi sáng cho toàn bộ các phòng phía trước


MẶT BẰNG BỐ TRÍ KIẾN TRÚC TRỆT
- Tầng trệt được bố trí với sân trước là khu vực nhà xe, phòng khách, bếp và sân sau 2m dành cho ông thoáng thoe quy định hiện hành

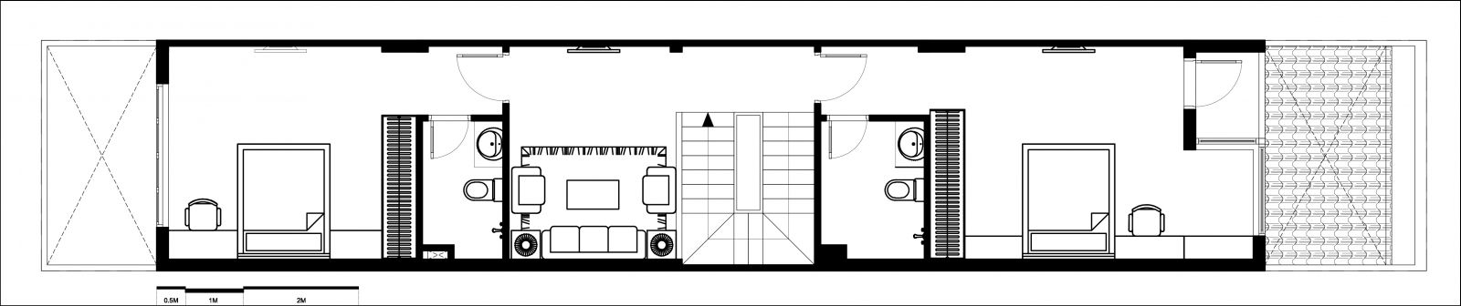
MẶT BẰNG BỐ TRÍ KIẾN TRÚC LẦU 01,02
- Lầu 02 và 02 được bố trí 02 phòng ngủ với 02 wc riêng cho mỗi phòng phòng, khu sinh hoạt cung dành cho không gian đệm

MẶT BẰNG BỐ TRÍ KIẾN TRÚC LẦU 03
- Lầu 03 được bố trí phòng thờ và sân thượng trước dành cho không gian giải trí, phòng ngủ khách và sân giặt phơi được bố trí phía sau nhà.
Hình ảnh thuộc bản quyền của www.maiviet.vn
Xem thêm mẫu nhà phố mặt tiền 4m khác
Thiết kế nhà phố 4 tầng mặt tiền 4m
Thiết kế nhà phố 1 trệt, 1 lững và 3 tầng lầu mặt tiền 4m
Mẫu nhà phố 4 tầng 4x15m
Mẫu nhà phố 3 tầng 4x18m

