-
Thông tin dự án
- Chủ đầu tư: A. Trọng
- Địa điểm : P. Hiệp Thành - Q.12 - Sài Gòn
- Công trình do Kiến Trúc Mai Việt thiết kế nội thất , thiết kế kiến trúc và thi công xây dựng hoàn thiện
- Khái toán phần thô và nhân công hoàn thiện 2.200.000đ và dự kiến thi công hoàn thành vào tháng 03.2023.
-
Hình ảnh thiết kế
.jpg)
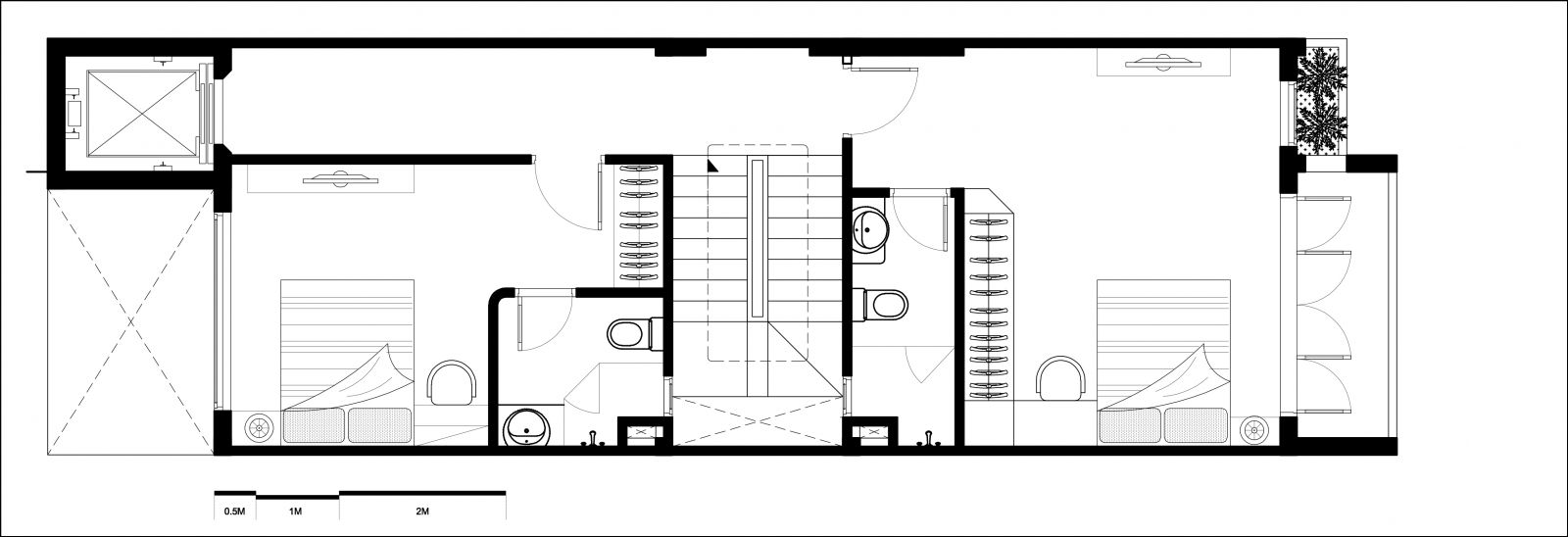
MẶT BẰNG BỐ TRÍ TẦNG TRỆT
.jpg)
.jpg)
.jpg)
.jpg)
.jpg)

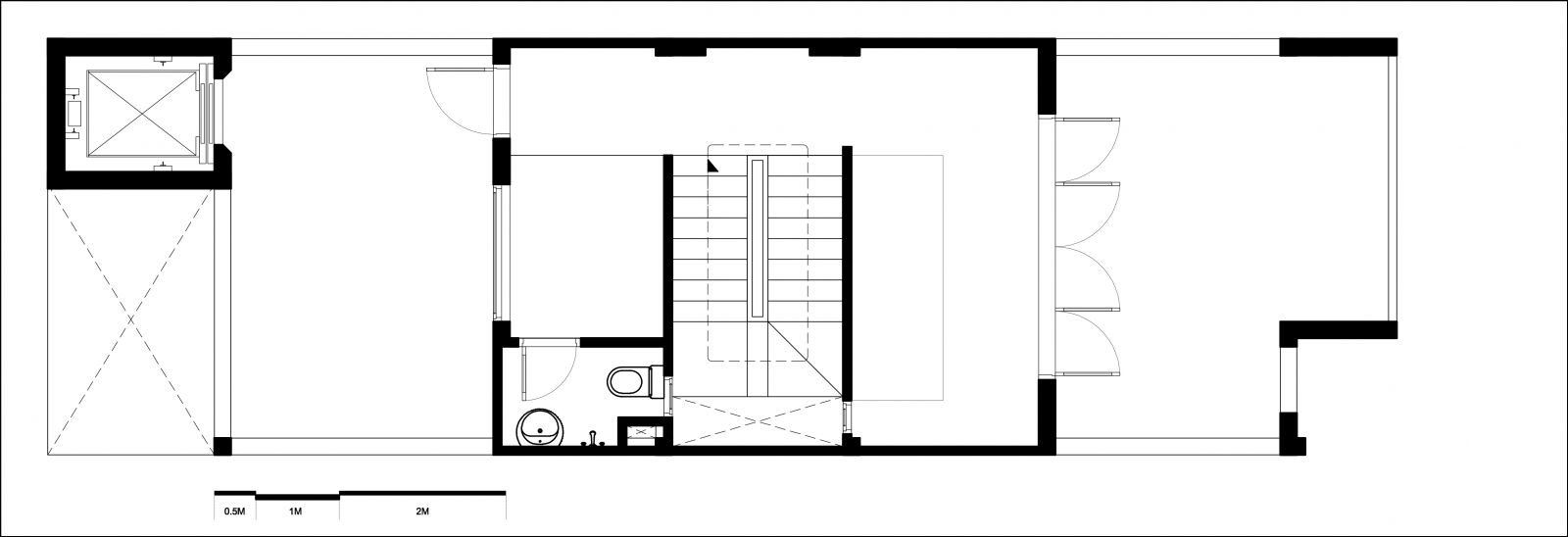
MẶT BẰNG BỐ TRÍ LẦU 01, 02
.jpg)
.jpg)
.jpg)
.jpg)
.jpg)
.jpg)
.jpg)
.jpg)
.jpg)
.jpg)
.jpg)
.jpg)

MẶT BẰNG BỐ TRÍ LẦU 03
.jpg)
Thông tin liên hệ
-
Hình ảnh thuộc bản quyền của www.maiviet.vn
Mọi chi tiết xin liên hệ :CÔNG TY CỔ PHẦN THIẾT KẾ NỘI THẤT VÀ XÂY DỰNG MAI VIỆT
Ðịa chỉ: 190/34 Bùi Văn Ngữ, Phường Hiệp Thành, Quận 12, Tp.HCM
Hotline: 0978 62 63 65
Vp: 028 66 53 55 45
Website: www.maiviet.vn - www.kinhnghiemxaynha.vn
Email: info@maiviet.vn - kientrucmaiviet@gmail.com

