Thông tin dự án thiết kế nhà phố 5x18m
- Mẫu thiết kế nhà phố 5x18m do Kiến trúc Mai Việt thiết kế và thi công tại quận 12, thành phố Hồ Chí Minh.
- Chủ đầu tư: C. Sơn Ca
- Địa điểm :Khu dân cư Hiệp Thành City, Q.12, Tp.HCM
- Công trình do Kiến Trúc Mai Việt thiết kế nội thất dự kiến thi công hoàn thành vào tháng 10.2019.
- Dự toán phần thô và nhân công hoàn thiện là 1.200.000 đ.
- Chủ đầu tư: C. Sơn Ca
- Địa điểm :Khu dân cư Hiệp Thành City, Q.12, Tp.HCM
- Công trình do Kiến Trúc Mai Việt thiết kế nội thất dự kiến thi công hoàn thành vào tháng 10.2019.
- Dự toán phần thô và nhân công hoàn thiện là 1.200.000 đ.
Video công trình
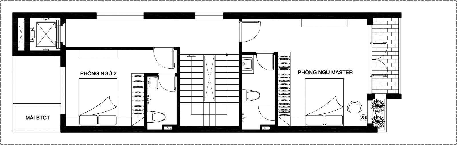
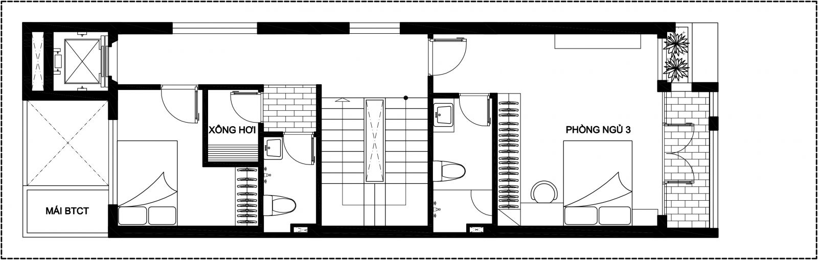
Hình ảnh Thiết kế nhà phố 5x18m

.jpg)
.jpg)
.jpg)
.jpg)
.jpg)
.jpg)
.jpg)
.jpg)
.jpg)
.jpg)
.jpg)
.jpg)
.jpg)
.jpg)
.jpg)
.jpg)

Xem thêm mẫu nhà phố mặt tiền 5m khácTHIẾT KẾ NHÀ PHỐ HIỆN ĐẠI 3 TẦNG 5X20M
MẪU THIẾT KẾ NHÀ PHỐ HIỆN ĐẠI MẶT TIỀN 5M
THIẾT KẾ NHÀ PHỐ CỔ ĐIỂN MẶT TIỀN 5M

