Thông tin dự án
- Mẫu thiết kế nội thất nhà phố do Kiến trúc Mai Việt thiết kế nội thất và thi công xây dựng tại Bình Chánh
- Chủ đầu tư: A Tuấn
- Địa điểm : H. Bình Chánh, Tp.HCM
- Công trình hoàn thành vào tháng 02/2023
- Địa điểm : H. Bình Chánh, Tp.HCM
- Công trình hoàn thành vào tháng 02/2023
Hình ảnh thiết kế công trình
.jpg)
.jpg)
Mặt bằng bố trí công năng tầng trệt.
.jpg)
.jpg)
.jpg)
.jpg)
.jpg)
.jpg)
.jpg)
Mặt bằng bố trí công năng lầu 01
.jpg)
.jpg)
.jpg)
.jpg)
.jpg)
.jpg)
.jpg)
.jpg)
.jpg)
.jpg)
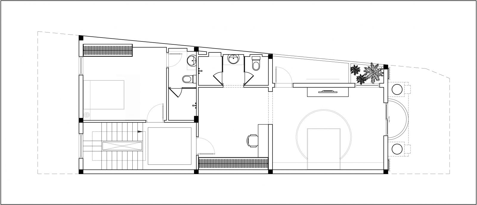
Mặt bằng bố trí công năng lầu 02
.jpg)
.jpg)
.jpg)
Thông tin liên hệ
- Hình ảnh thuộc bản quyền của www.maiviet.vn
Mọi chi tiết xin liên hệ :CÔNG TY CỔ PHẦN THIẾT KẾ NỘI THẤT VÀ XÂY DỰNG MAI VIỆT
Ðịa chỉ: 190/34 Bùi Văn Ngữ, Phường Hiệp Thành, Quận 12, Tp.HCM
Hotline: 0978 62 63 65
Vp: 028 66 53 55 45
Website: www.maiviet.vn - www.kinhnghiemxaynha.vn
Email: info@maiviet.vn - kientrucmaiviet@gmail.com
Ðịa chỉ: 190/34 Bùi Văn Ngữ, Phường Hiệp Thành, Quận 12, Tp.HCM
Hotline: 0978 62 63 65
Vp: 028 66 53 55 45
Website: www.maiviet.vn - www.kinhnghiemxaynha.vn
Email: info@maiviet.vn - kientrucmaiviet@gmail.com

