Nội dung thiết kế nhà phố hiện đại 5x20m
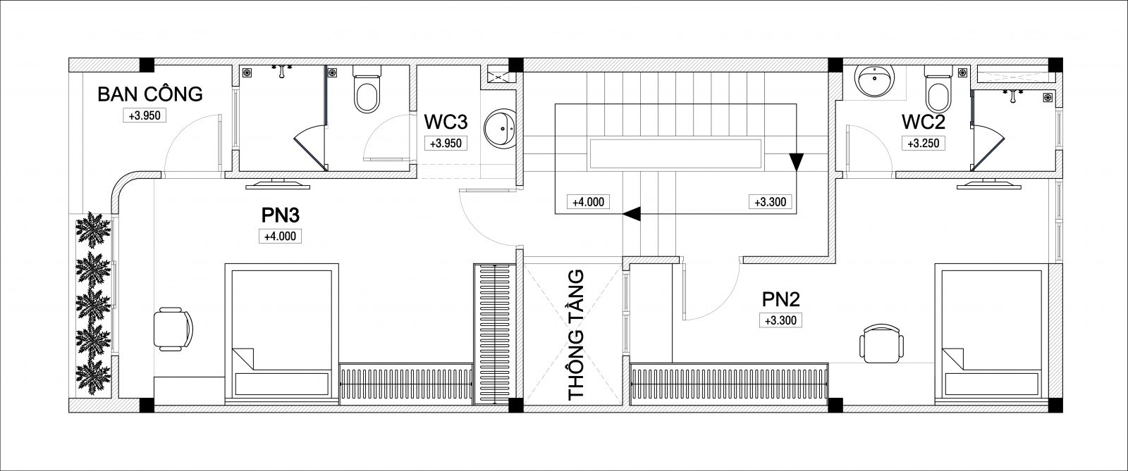
- Nhà phố được xây 5x13m trên khuôn viên đất 5x20m, với phần sân trước làm nhà để xe, phần nhà được bố trí phòng khách phòng bếp và 01 phòng ngủ dành cho Ông Bà.- Lầu 01 được bố trí 02 phòng ngủ trước, sau với 02 Wc riêng dành cho mỗi phòng.
- Lầu 02 được bố trí phòng thờ, phòng giặt phơi và 01 phòng ngủ dành cho con trai.
- Thiết kế nhà phố hiện đại 5x20m được Kiến trúc Mai Việt thiết kế xây dựng tại quận 12
- Chủ đầu tư: A. Nam
- Địa điểm : P. Thạnh Lộc Q.12, Tp.HCM
- Công trình có quy mô 1 trệt và 02 tầng lầu do KIẾN TRÚC MAI VIỆT thực hiện, công được thiết kế theo phong cách hiện đại với không gian kiến trúc lệch tầng, khoảng lùi sau và giữa nhà tạo thành nhiều khoảng trống đối lưu không khí. Tại quận 12 KIẾN TRÚC MAI VIỆT đã thiết kế và thi công xây dựng rất nhiều công trình.
- Khái toán phần thô 1.100.000.000đ và dự kiến thi công hoàn thành vào tháng 07.2023.
- Ngoài thiết kế và thi công xây dựng tại quận 12 chúng tôi còn cung cấp dịch vụ xin phép xây dựng và hoàn công nhà ở sau xây dựng
Hình ảnh thiết kế nhà phố hiện đại 5x20m


Mặt bằng bố trí kiến trúc tầng 01

Mặt bằng bố trí kiến trúc tầng 02

Mặt bằng bố trí kiến trúc tầng 03
Hình ảnh thi công nhà phố hiện đại 5x20m

Hình ảnh thuộc bản quyền của www.maiviet.vn
Xem thêm mẫu nhà phố mặt tiền 5m khác
Mẫu nhà phố 3 tầng mặt tiền 5m
Mẫu nhà phố 5x18m 1 tầng hầm, 1 trệt, 3 tầng lầu
Mẫu nhà phố phong cách cổ điển 5 tầng

