- Mẫu thiết kế nhà phố làm văn phòng kết hợp căn hộ cho thuê do Kiến trúc Mai Việt thiết kế kiến trúc và thi công xây dựng tại Phú Nhuận
- Chủ đầu tư: A. Quang
- Địa điểm : 17/03 Hồ Văn Huê, P.09, PN, Tp.HCM
- Công trình do Kiến Trúc Mai Việt thiết kế nội thất , thiết kế kiến trúc và thi công xây dựng phần thô
- Khái toán phần thô và nhân công hoàn thiện 3.100.000đ và dự kiến thi công hoàn thành vào tháng 12.2021.
- Chủ đầu tư: A. Quang
- Địa điểm : 17/03 Hồ Văn Huê, P.09, PN, Tp.HCM
- Công trình do Kiến Trúc Mai Việt thiết kế nội thất , thiết kế kiến trúc và thi công xây dựng phần thô
- Khái toán phần thô và nhân công hoàn thiện 3.100.000đ và dự kiến thi công hoàn thành vào tháng 12.2021.



Phối cảnh kiến trúc mặt tiền chính
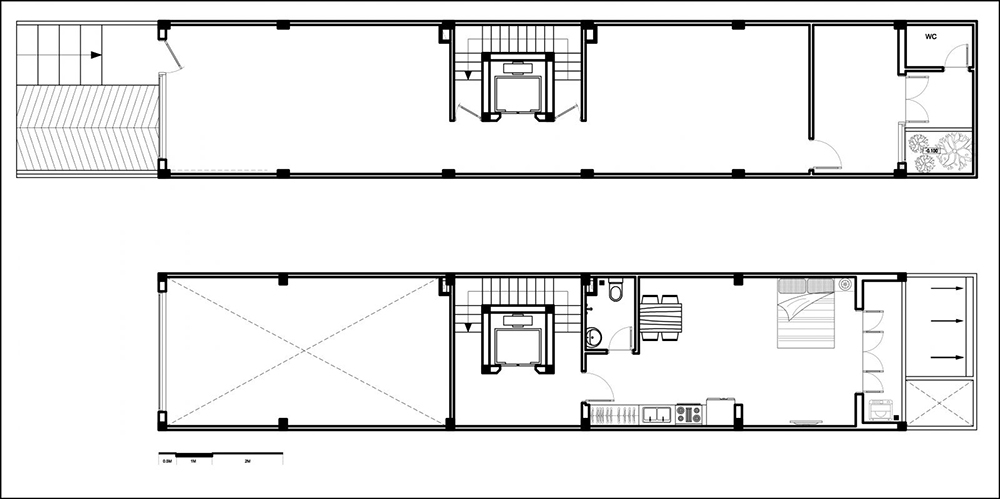
- Mặt bằng bố trí kiến trức tầng hầm - tầng 01


.jpg)
.jpg)
Khu bếp dành cho tầng 01, tầng cho thuê làm văn phòng.
- Mặt bằng bố trí kiến trúc tầng lửng
.jpg)
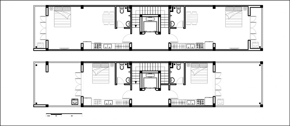
- Mặt bằng bố trí kiến trức tầng 2-3-4

Mặt bằng bố trí nội thất các tầng 2-3-4
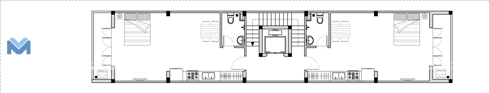
- Mặt bằng bố trí kiến trức tầng 5

Mặt bằng bố trí nội thất tầng 5
.jpg)
.jpg)
Thông tin liên hệ
Hình ảnh thuộc bản quyền của www.maiviet.vn
Mọi chi tiết xin liên hệ :CÔNG TY CỔ PHẦN THIẾT KẾ NỘI THẤT VÀ XÂY DỰNG MAI VIỆT
Ðịa chỉ: 190/34 Bùi Văn Ngữ, Phường Hiệp Thành, Quận 12, Tp.HCM
Hotline: 0978 62 63 65
Mọi chi tiết xin liên hệ :CÔNG TY CỔ PHẦN THIẾT KẾ NỘI THẤT VÀ XÂY DỰNG MAI VIỆT
Ðịa chỉ: 190/34 Bùi Văn Ngữ, Phường Hiệp Thành, Quận 12, Tp.HCM
Hotline: 0978 62 63 65

