Thông tin dự án thiết kế biệt thự cổ điển
- Chủ đầu tư: A. Hải
- Địa điểm : Thuận An - Bình Dương.
- Khái toán hoàn thiện công trình : 9.000.000.000đ
Video hình ảnh thiết kế công trinh.
Nội dung thiết kế biệt thự cổ điển
- Dự án biệt thự cổ điển tại Bình Dương được xây dựng với diện tích 10x20m2 trên khuôn viên đất 15x30m, công trình được thiết thế với phong cách cổ điển với nhiều hệ phào chỉ, hoa văn, phù điêu tạo lên nét quý phải cho toàn bộ công trình biệt thự cổ điển bình dương.Tầng 01 được thiết kế với khu phòng khách lớn phòng ăn liên thông khu bếp tạo cảm giav1 thông thoáng và rộng rãi, bố trí 01 phòng ngủ dành cho Ông Bà và khu Wc với không gian nam nữ riêng biệt.
Phong cách nội thất cổ điển kết hợp giữa gỗ, đá và hệ phào chỉ tạo nên nét sang trọng và tinh tế cho không gian nội thất tầng trệt.
.jpg)






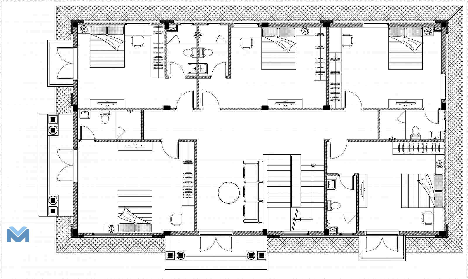
- Bố trí kiến trúc tầng 02
Tầng 02 được bố trí 05 phòng ngủ với 05 wc nội khu và 01 khu vực sinh hoạt chung
Toàn bộ đồ nội thất được làm bằng gỗ tự nhiên, phong cách nội thất các phòng chức năng cửa tầng 02 được thiết kế theoo phong cách bán cổ điển
.jpg)







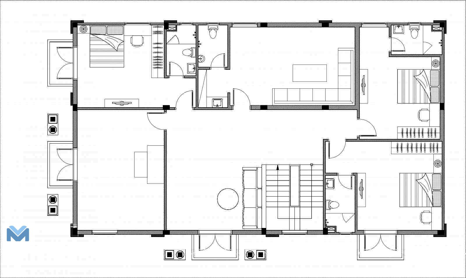
- Bố trí kiến trúc tầng 03
Tầng 03 được thiết kế với 03 phòng ngủ với 03 khu wc nội khu, 1 phòng giải trí và 1 không gian thờ.
.jpg)





Xem hình ảnh thi công công trình biệt thự cổ điển Bình Dương tại ĐÂY
Thông tin liên hệ
-
Hình ảnh thuộc bản quyền của www.maiviet.vn
-
Mọi chi tiết xin liên hệ :CÔNG TY CỔ PHẦN THIẾT KẾ NỘI THẤT VÀ XÂY DỰNG MAI VIỆT
- Ðịa chỉ: 190/34 Bùi Văn Ngữ, Phường Hiệp Thành, Quận 12, Tp.HCM
- Website: www.maiviet.vn - www.kinhnghiemxaynha.vn
- Email: info@maiviet.vn - kientrucmaiviet@gmail.com
-
Hotline: 0978 62 63 65
-
Zalo: 0988 54 50 40 Nguyễn Duy Quý
-
Vp: 028 66 53 55 45

