Giới thiệu công trình: Nhà phố hiện đại 4m x 14m – 2 tầng 1 tum
1. Thông tin chung:
- Chủ đầu tư: A Hưng- Địa điểm : P TTH, Q.12, Tp.HCM
- Công trình được KIẾN TRÚC MAI VIỆT thiết kế và thi công xây dựng trọn gói
-
Diện tích lô đất: 4m x 14m
-
Số tầng: 1 tầng + 1 tum
-
Số phòng ngủ: 3 phòng ngủ
Phong cách thiết kế: Hiện đại, tối giản, tối ưu ánh sáng và thông gió
- Mặt bằng bố trí tầng 01 ( trệt )
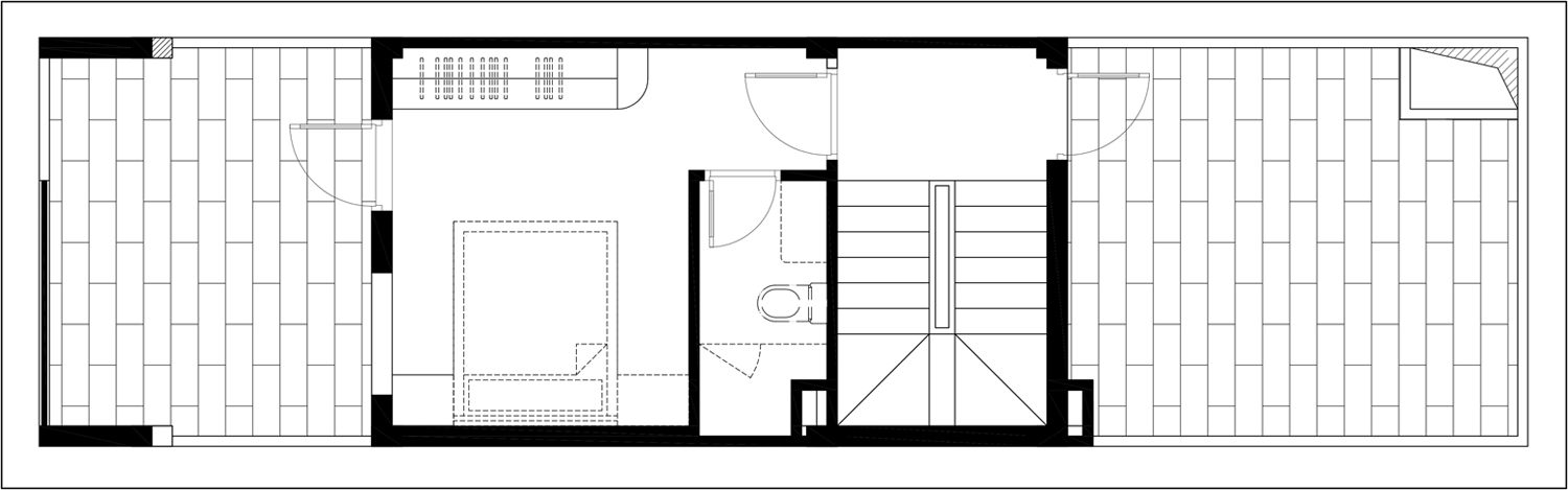
- Mặt bằng bố trí tầng 02 ( lầu 01 )
.jpg)
Mặt bằng bố trí tầng 02 ( lầu 1 )
- Mặt bằng bố trí tầng 03 ( tum )
- Phối cảnh kiến trúc


