Thông tin dự án tòa nhà văn phòng
- Chủ đầu tư: CTY LÂN PHƯỢNG ĐẠI CÁT
- Địa điểm :Càm Mỹ, Đồng Nai
- Công trình dự kiến hoàn thành vào tháng 7.2022
- Tổng chi phí đầu tư 25.000.000.000đ
- Địa điểm :Càm Mỹ, Đồng Nai
- Công trình dự kiến hoàn thành vào tháng 7.2022
- Tổng chi phí đầu tư 25.000.000.000đ
Nội dung thiết kế tòa nhà văn phòng
- Kiến Trúc Mai Việt tư vấn và thiết kế văn phòng và nhà xưởng tại Đồng Nai cho chủ đầu tư theo hướng khu văn phòng kết hợp trung bày sản phẩm.
Tầng 01, tầng lững và 02,03 là khu vực làm văn phòng và trung bày sản phẩm, tầng 04 là khu vực sinh sống cho gia đình với nhiều tiền ích như hồ bơi và sân vườn trên cao.
- Thời gian thi công cho toàn bộ công trình dự trù là 10 tháng và do KIẾN TRÚC MAI VIỆT thiết kế và thi công xây dựng.
Tầng 01, tầng lững và 02,03 là khu vực làm văn phòng và trung bày sản phẩm, tầng 04 là khu vực sinh sống cho gia đình với nhiều tiền ích như hồ bơi và sân vườn trên cao.
- Thời gian thi công cho toàn bộ công trình dự trù là 10 tháng và do KIẾN TRÚC MAI VIỆT thiết kế và thi công xây dựng.
.jpg)
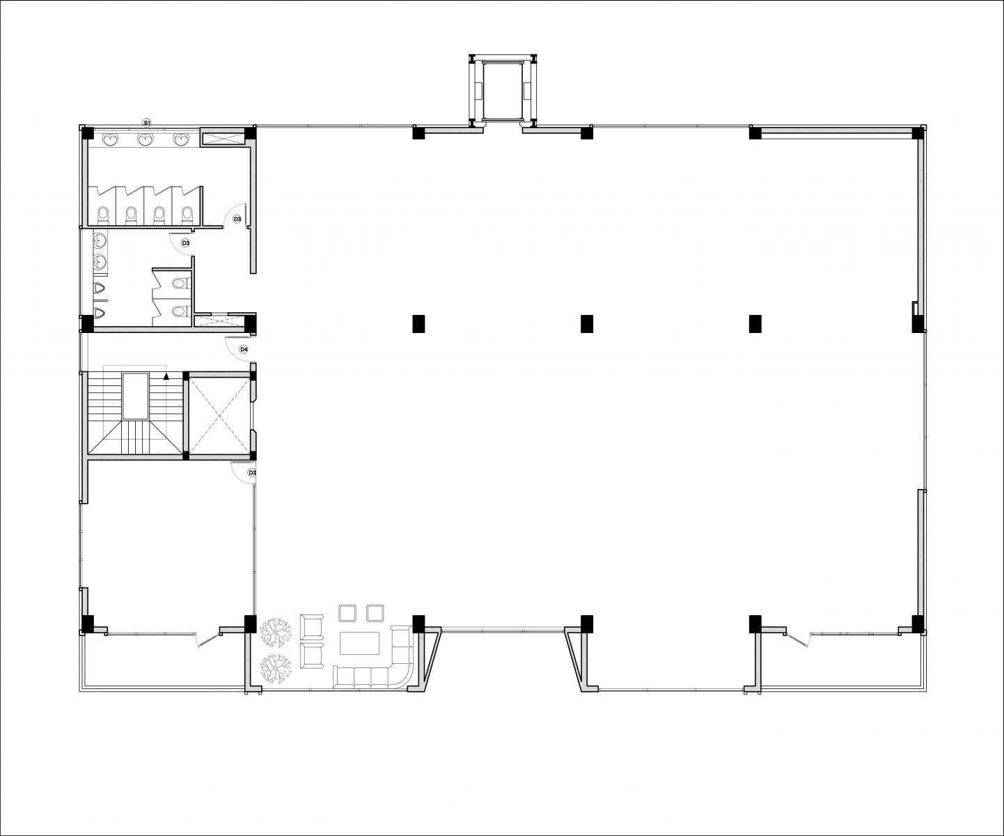
-Mặt bằng bố trú tầng 01

- Khu vực tiếp tân cho tầng 01
.jpg)
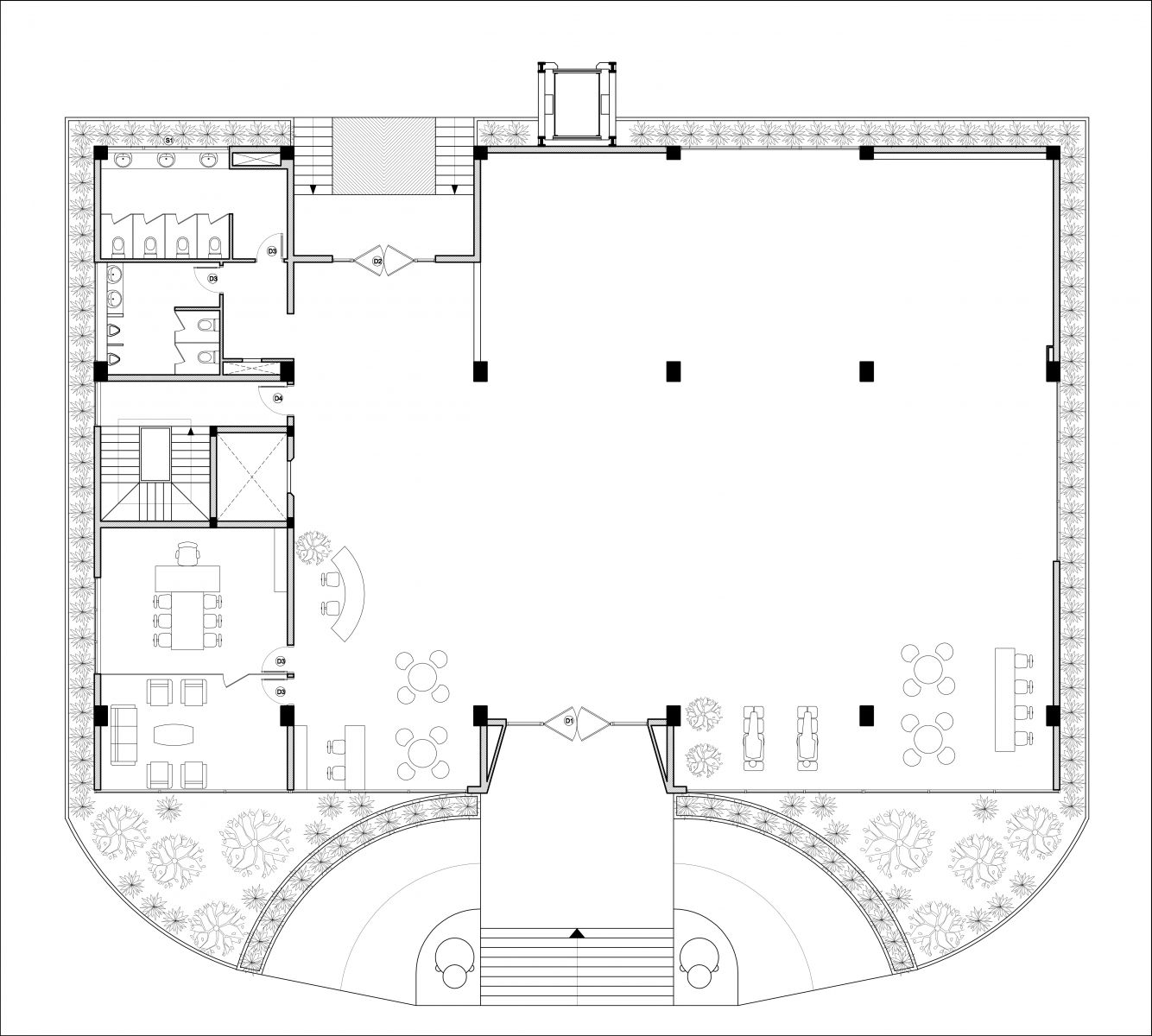
- Tầng lững


- Khu vệ sinh công cộng
.jpg)
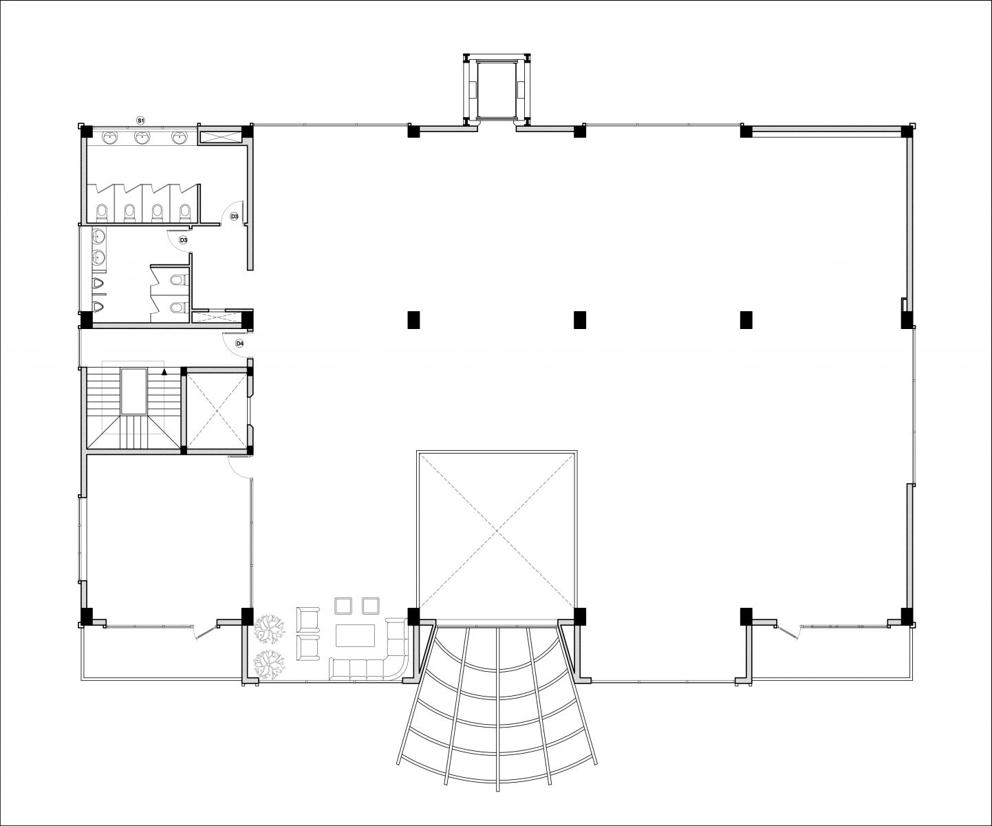
- Mặt bằng bố trí tầng 04 ( khu vực sinh nhà ở )

.jpg)

