Thông tin dự án thiết kế và thi công nhà biệt thự tại Hóc Môn
- Mẫu thiết kế biệt thự vườn 8x13 m trên khuôn viên đất 10x20 do Kiến trúc Mai Việt thiết kế kiến trúc và thi công xây dựng tại Hóc Môn
- Chủ đầu tư: C Xuân
- Địa điểm : Xã Tân Thới Nhì, Hóc Môn, Tp.HCM
- Khái toán phần thô và nhân công hoàn thiện 1.100.000đ, công trình hoàn thành vào tháng 02/2021
- Chủ đầu tư: C Xuân
- Địa điểm : Xã Tân Thới Nhì, Hóc Môn, Tp.HCM
- Khái toán phần thô và nhân công hoàn thiện 1.100.000đ, công trình hoàn thành vào tháng 02/2021
Nội dung thiết kế nhà biệt thự tại Hóc Môn
Công trình biệt thự hiện đại tại Hóc Môn được thiết kế và thi công 8x13m trên khuôn viên đất 10x20m, công trình có với quy mô 1 trệt và 02 tầng lầu

Phối cảnh kiến trúc ( Hình thiết kế 3D)
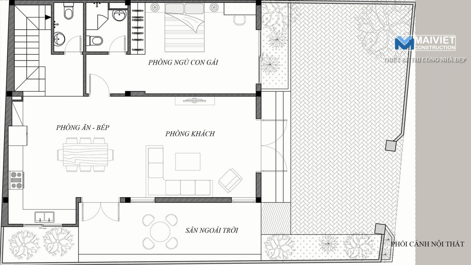
- Bố trí nội thất tầng 01
.jpg)
.jpg)
.jpg)
.jpg)
.jpg)
Nội thất tầng trệt ( HÌnh thiết kế 3D)
.jpg)
.jpg)
- Bố trí nội thất tầng 02
.jpg)
.jpg)
.jpg)
Nội thất phòng ngủ Master
.jpg)
.jpg)
Nội thất phòng ngủ Con gái
.jpg)
.jpg)
.jpg)
.jpg)
.jpg)
Nội thất phòng ngủ Master
.jpg)
.jpg)
Nội thất phòng ngủ Con gái
.jpg)
.jpg)
Thông tin liên hệ
- Hình ảnh thuộc bản quyền của www.maiviet.vn
- Mọi chi tiết xin liên hệ :CÔNG TY CỔ PHẦN THIẾT KẾ NỘI THẤT VÀ XÂY DỰNG MAI VIỆT
- Website: www.maiviet.vn - www.kinhnghiemxaynha.vn
- Email: info@maiviet.vn - kientrucmaiviet@gmail.com
- Hotline: 0978 62 63 65
- Zalo: 0988 54 50 40 Nguyễn Duy Quý
- Vp: 028 66 53 55 45

