-
Thông tin dự án
- KIẾN TRÚC MAI VIỆT thiết kế và thi công nhà phố tại Hóc Môn, nhà phố có quy mô 1 tầng trệt và 02 tầng lầu với mặt tiền 4m sâu 18m.
- Chủ đầu tư: C Phương
- Địa điểm : Song hành, Hóc Môn, Tp.HCM
- Công trình do Kiến Trúc Mai Việt thiết kế kiến trức và thi công xây dựng phần thô và nhân công hoàn thiện
- Khái toán phần thô và nhân công hoàn thiện 900.000.000đ, công trình được thi công trong thời gian 04 tháng.
- Chủ đầu tư: C Phương
- Địa điểm : Song hành, Hóc Môn, Tp.HCM
- Công trình do Kiến Trúc Mai Việt thiết kế kiến trức và thi công xây dựng phần thô và nhân công hoàn thiện
- Khái toán phần thô và nhân công hoàn thiện 900.000.000đ, công trình được thi công trong thời gian 04 tháng.
-
Hình ảnh thiết kế
.jpg)
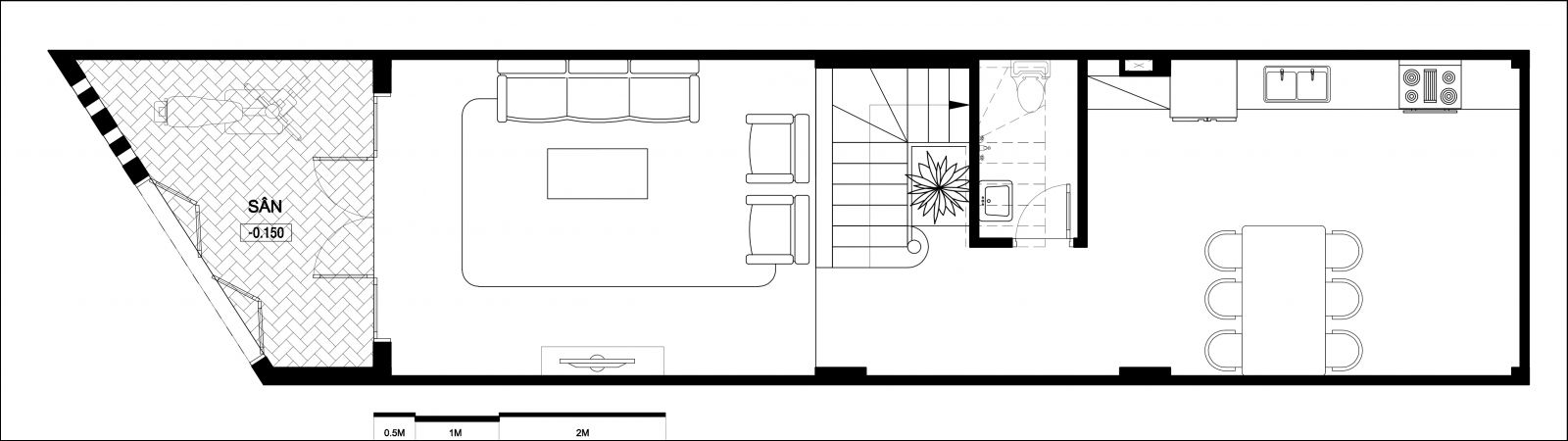
- MẶT BẰNG BỐ TRÍ TẦNG TRỆT
.jpg)
.jpg)
.jpg)
.jpg)
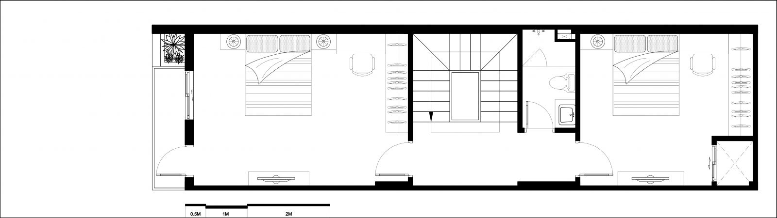
- MẶT BẰNG BỐ TRÍ LẦU 1
.jpg)

.jpg)
.jpg)
.jpg)
.jpg)
- MẶT BẰNG BỐ TRÍ LẦU 2
-
Hình ảnh thi công
.jpg)
.jpg)
.jpg)
-
Thông tin liên hệ
- Hình ảnh thuộc bản quyền của www.maiviet.vn
Mọi chi tiết xin liên hệ :CÔNG TY CỔ PHẦN THIẾT KẾ NỘI THẤT VÀ XÂY DỰNG MAI VIỆT
Ðịa chỉ: 190/34 Bùi Văn Ngữ, Phường Hiệp Thành, Quận 12, Tp.HCM
Hotline: 0978 62 63 65
Zalo: 0988 53 50 40 Nguyễn Duy Quý
Vp: 028 66 53 55 45
Website: www.maiviet.vn - www.kinhnghiemxaynha.vn
Email: info@maiviet.vn - kientrucmaiviet@gmail.com
Ðịa chỉ: 190/34 Bùi Văn Ngữ, Phường Hiệp Thành, Quận 12, Tp.HCM
Hotline: 0978 62 63 65
Zalo: 0988 53 50 40 Nguyễn Duy Quý
Vp: 028 66 53 55 45
Website: www.maiviet.vn - www.kinhnghiemxaynha.vn
Email: info@maiviet.vn - kientrucmaiviet@gmail.com

