Thông tin dự án thiết kế và thi công nhà xưởng tại Hóc Môn
- Chủ đầu tư: CTY TNHH TA 13
- Địa điểm :Đường Song Hành, Hóc Môn, Tp.HCM
Công trình dự kiến hoàn thành vào tháng 7.2016
Kiến Trúc Mai Việt tư vấn và thiết kế văn phòng và nhà xưởng tại Hóc Môn cho chủ đầu tư theo hướng nhà tiền chế, nhằm giảm thời gian thi công và chi phí.
Thời gian thi công cho toàn bộ công trình dự trù là 3 tháng với quy mô 4 tầng cho khu văn phòng và 2 tầng cho khu nhà xưởng.
- Địa điểm :Đường Song Hành, Hóc Môn, Tp.HCM
Công trình dự kiến hoàn thành vào tháng 7.2016
Kiến Trúc Mai Việt tư vấn và thiết kế văn phòng và nhà xưởng tại Hóc Môn cho chủ đầu tư theo hướng nhà tiền chế, nhằm giảm thời gian thi công và chi phí.
Thời gian thi công cho toàn bộ công trình dự trù là 3 tháng với quy mô 4 tầng cho khu văn phòng và 2 tầng cho khu nhà xưởng.
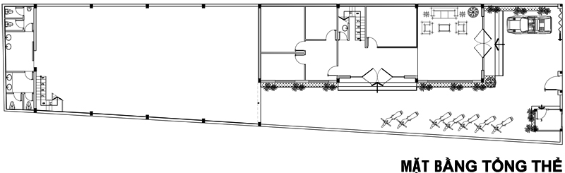
Hình ảnh thiết kế và thi công
.jpg)
.jpg)
.jpg)
Ngoại thất phương án thi công
.jpg)
Công tác thi công lắp dựng khung kèo théo tiền chế.
.jpg)
Công tác xây tường
.jpg)
Công tác hoàn thiện công trình.

