Thế nào là mẫu nhà cấp 4
- Theo những quan niệm truyền thống của mọi người thì nhà cấp bốn là hình thức nhà 1 trầng có hệ móng đơn giản, mái tôn hoặc mái ngói...Sự bền vũng không bằng các hình thức nhà khác nhưng vẫn đảm bảo cho sự bền vững và tiện nghi. Mẫu nhà cấp 4 đẹp là mẫu nhà có kết cấu đơn giản và có chi phí xây dựng thấp. Thiết kế nhà cấp 4 hiện nay chủ yếu được làm từ vật liệu gạch, xi măng cốt thép hoặc bằng gỗ. Quanh nhà được bao quanh bởi tường hoặc vách ngăn bằng gạch hoặc hàng rào cây...
- Phần móng chủ yếu sử dụng móng đơn ( móng chân vịt ) những vùng đất yếu có thể gia cố thêm cừ tràm...
- Phần mái nái nhà cấp 4 chủ được làm từ chất liệu ngói, tấm lợp vật liệu xi măng hoặc tôn … Dù được xây dựng từ những nguyên vật liệu không mắt tiền nhưng tuổi thọ trung bình của mẫu nhà này cũng được khoảng 20 năm.
Ưu điểm của mẫu nhà cấp 4
Nhà cấp 4 thường dành cho những gia chủ không chú trọng dành nhiều chi phí cho việc xây nhà, các mẫu nhà cấp 4 thường có các ưu điểm như sau
Thời gian xây dựng nhanh chóng
- Thời gian thiết kế và thi công nhà cấp 4 cũng thường rất nhanh chóng do thường có quy mô 1 tầng. Do yêu cầu về kiến trúc không quá phức tạp và đòi hỏi nhiều thời gian đổ mái như mẫu biệt thự hay mẫu nhà phố khác. Vì thế thời gian thi công ngôi nhà ngắn hắn và nhanh chóng có thể dọn vào ở được ngay sau khi hoàn thiện. Đây cũng là một trong những đặc điểm nổi bật khiến các mẫu thiết kế nhà cấp 4 được đông đảo gia chủ lựa chọn.
- Chi phí đầu tư thường thấp hơn các loại nhà khác vì giảm thiểu rất lớn ở phần chi phó dành có kết cấu khung sườn nhà.
Mẫu nhà cấp 4 mái Thái


Mẫu thiết kế nhà một tầng tại Huế




Mẫu nhà cấp 4 đẹp dành cho vùng nông thôn
Mẫu nhà cấp 4 mái Nhật
.jpg)
Hình ảnh thiết kế và thi công nhà cấp bốn tại Tiền Giang




Mẫu nhà cấp 4 hiện đại




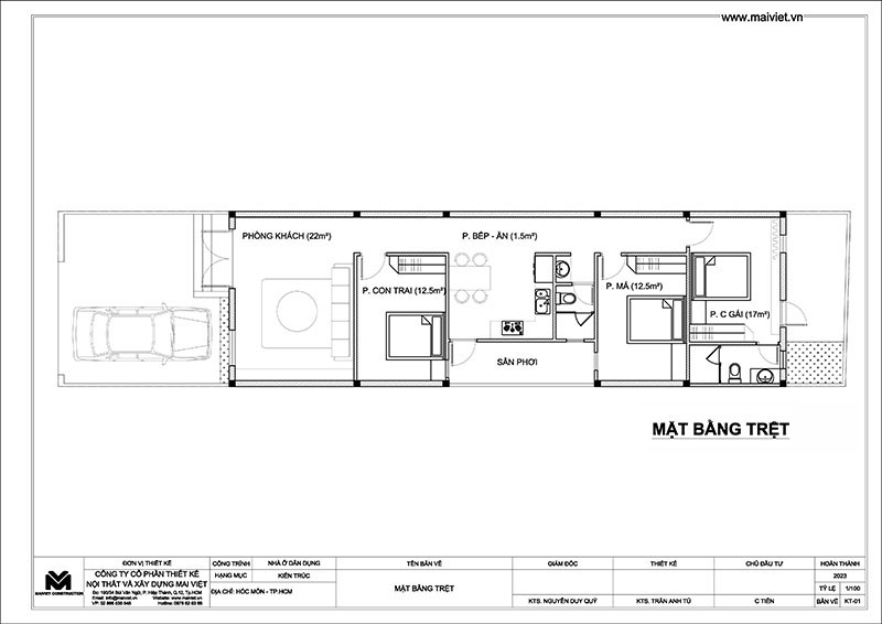
Nhà cấp 4 mặt tiền 6m



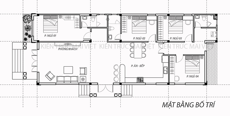
Măt bằng bố trí nhà cấp 4 trong thành phố điển hình
.jpg)
.jpg)
.jpg)




